Chuyên viên đã sẵn sàng hỗ trợ!
Tư vấn hoàn toàn miễn phí
Khu đô thị Vinhomes Riverside được lấy cảm hứng từ thành phố Venice thơ mộng của Italia. Hệ thống sông bao quanh, trải dọc khu đô thị và các căn hộ cao cấp, sang trọng. Thiết kế biệt thự 3 tầng phong cách tân cổ sẽ là lựa chọn thông minh để tôn lên đẳng cấp, vị thế của gia chủ khi an cư tại khu đô thị đắt đỏ này. Dưới đây là bản thiết kế ngôi nhà đã dành được sự nhất trí hoàn toàn từ gia đình anh Việt:

Sử dụng thức cột Ionic cổ điển châu Âu. Trụ tròn có bề ngang cân đối, kéo dài từ tầng 1 tới tầng 2. Hai trụ bao tròn này cách điệu thật tinh tế với 2 đế đỡ chân là khối cột đá vuông chắc chắn. Phía trên đỉnh cột nối liền với mái vòm cong che lấy ban công tầng 2.
Dáng điệu nữ tính, mảnh dẻ của thức cột Ionic làm tăng thêm sự điệu đà, quý phái của mẫu biệt thự 3 tầng. Bên cạnh đó, cột trụ tròn là loại có kết cấu vững chắc nhất nên nó càng đảm bảo tính bền chắc của công trình. Mái vòm nối thêm mang đậm dấu ấn tân cổ châu Âu. Mái cong tròn nối với hệ thống cột. Hệ thống đường chỉ, gờ phào trang trí thêm thắt theo niêm luật, trật tự. Điều này khiến mặt tiền cả tầng 1 và tầng 2 trông thật trang nhã và thu hút.
Ban công tầng 2 của thiết kế biệt thự tân cổ điển khá rộng rãi. Điểm nhấn ở đây là hệ thống các vòm sắt chắn cầu kì thay thế hàng con tiện đơn sơ kiểu cũ. Vòm hoa sắt được uốn cong mềm mại, điểm xuyết hoa văn đầy tinh tế.

Với một căn biệt thự 3 tầng tân cổ điển, tone trắng luôn là sự lựa chọn cổ điển mà không hề lỗi mốt. Gam trắng đầy trang nhã, quý phái thách thức mọi tone, gam màu khác. Nó cũng vạch rõ ranh giới đẳng cấp khác biệt với những căn hộ cùng kiểu. Khoác lên mình màu trắng tinh khôi này, căn biệt thự cũng được ví như vẻ đẹp của người thiếu nữ tuổi xuân thì, vô cùng cuốn hút và độc đáo.
Một sân thượng rộng giúp tạo không gian thoải mái cho gia chủ nghỉ ngơi, thư giãn. Tạo thành một khu vườn thu nhỏ nơi sân thượng thoáng đãng. Biệt thự như hài hòa với thiên nhiên đất trời hơn. Lan bê tông thiết kế từng dải song song một phần tăng thẩm mỹ cho sân bớt trống trải. Một phần mang công năng trồng , treo thêm hoa, cây leo tại đây.

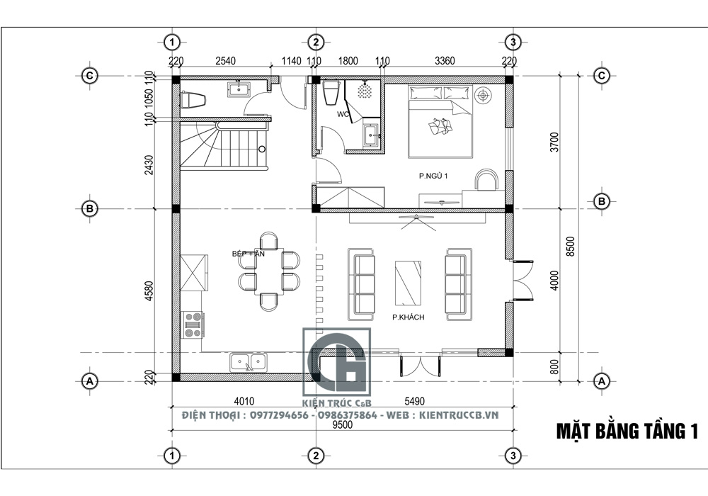
Tổng diện tích xây biệt thự khoảng 80m2 với mặt tiền 8,5m. Công năng các tầng được bố trí như sau:
Mặt bằng tầng 1: 01 Phòng khách, 01 phòng bếp + ăn, 01 phòng ngủ khép kín, sảnh thang.
Mặt bằng tầng 2: 02 phòng ngủ, phòng thay đồ
Mặt bằng tầng 3: Phòng thờ, phòng tập gym, sân chơi
Để nhận mẫu nhà đẹp và tư vấn thiết kế nhà miễn phí, bạn vui lòng điền thông tin theo mẫu dưới đây:
Xem thêm:
->>>>> Thiết kế nhà vườn tại Hà Nội
->>>>> Mẫu biệt thự 2 tầng phong cách Pháp
->>>>> Ấn tượng thiết kế biệt thự 3 tầng phong cách tân cổ tại Vinhomes Riverside
Ngoài thiết kế biệt thự tân cổ điển, thiết kế biệt thự hiện đại, Chúng tôi còn chuyên thiết kế nhà ống, thiết kế nhà phố, thiết kế khách sạn, nhà hàng, thiết kế nội thất biệt thự. Với hơn 10 năm kinh nghiệm trong ngành kiến trúc nội thất, Kiến Trúc C&B tự hào mang đến cho khách hàng những công trình chất lượng nhất, hài lòng gia chủ.
CÔNG TY TƯ VẤN KIẾN TRÚC NỘI THẤT C&B
Số 168 Nguyễn Xiển - Thanh Xuân - Hà Nội
Hotline: 0977294656 – 0986375864
Email: KIENTRUCCB@GMAIL.COM
Thông tin và nội dung bạn gửi cho chúng tôi càng cụ thể, nội dung tư vấn cho bạn càng tối ưu và chi tiết.