Chuyên viên đã sẵn sàng hỗ trợ!
Tư vấn hoàn toàn miễn phí
Hôm nay tiếp tục là chuỗi những mẫu biệt thự tân cổ điển phong cách hiện đại trong năm 2024.
Ngôi nhà không chỉ là nơi để ở mà còn là biểu tượng của sự thành công và thịnh vượng. Công trình này là một trong những tác phẩm tiêu biểu của Kiến trúc - Nội thất C&B, được thiết kế với sự tỉ mỉ và tinh tế trong từng chi tiết, đáp ứng mọi nhu cầu của gia chủ. Mặt tiền là hệ thống cột trụ lớn, các cửa sổ vòm cùng với những đường nét hoa văn tinh xảo tạo nên một kiến trúc ngoại thất ấn tượng. Sự kết hợp hài hòa giữa màu trắng chủ đạo và các điểm nhấn màu nâu trầm của cửa gỗ mang đến một không gian ấm cúng và sang trọng. Sân vườn rộng rãi, thoáng mát, tạo không gian thư giãn lý tưởng cho gia đình.
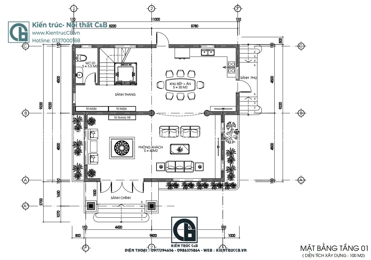
Với nhu cầu thiết kế các phòng riêng tiện nghi, đảm bảo sự riêng tư và thoải mái cho gia chủ, nhóm thiết kế của Kiến Trúc – Nội Thất C&B đã lên kế hoạch tỉ mỉ từng chi tiết. Mỗi phòng ngủ đều được trang bị nội thất cao cấp, bố trí hợp lý để tối ưu không gian và ánh sáng tự nhiên. Phòng khách và bếp được thiết kế mở, tạo cảm giác rộng rãi và liên thông nhưng vẫn giữ được sự ấm cúng và gần gũi. Ngoài ra, các khu vực sinh hoạt chung như phòng giải trí, phòng đọc sách và phòng làm việc cũng được bố trí thông minh để đáp ứng mọi nhu cầu của gia đình.





Trên đây là một trong những mẫu thiết kế biệt thự hiện đại 2 mặt tiền. Nếu bạn đang tìm kiếm một không gian sống lý tưởng cho gia đình, hãy liên hệ ngay với Kiến trúc - Nội thất C&B để được tư vấn và thiết kế miễn phí.
Các bạn có thể tham khảo thêm những mẫu biệt thự hiện đại mái Nhật qua các bài dưới sau đây:
>>> Nhẹ nhàng sang trọng trong mẫu biệt thự tân cổ điển 3 tầng mái Nhật
>>> Mẫu thiết kế biệt thự 2 tầng mái Nhật theo phong cách hiện đại (MSP: BH131001)
Thông tin và nội dung bạn gửi cho chúng tôi càng cụ thể, nội dung tư vấn cho bạn càng tối ưu và chi tiết.