Chuyên viên đã sẵn sàng hỗ trợ!
Tư vấn hoàn toàn miễn phí
Những mẫu biệt thự mái Thái theo phong cách tân cổ điển đang trở thành hình mẫu lý tưởng trong xu hướng thiết kế nhà hiện nay. Sự tinh tế, sang trọng của kiểu nhà này mang đến cho gia chủ sự đẳng cấp, quý phái. Cùng Kiến Trúc C&B tham khảo mẫu thiết kế biệt thự 3 tầng 1 tum mái Thái dưới đây.
Ngay từ cái nhìn đầu tiên với mặt tiền của thiết kế biệt thự, ai cũng sẽ cảm thấy choáng ngợp và bị "hớp hồn" bởi một ngôi biệt thự kiên cố, xa hoa, đồ sộ. Đó là bởi vì các mặt tiền của biệt thự được thiết kế mái Thái ấn tượng và nhất là phong cách tân cổ điển đẹp mắt.
Sự kết hợp hài hòa của yếu tố cổ điển và hiện đại cùng màu sắc vượt thời gian trong mẫu biệt thự 3 tầng 1 tum mái Thái này đã mang lại cho gia chủ một công trình nhà ở để đời, mang đậm dấu án cá nhân không thể lẫn đi đâu được. Các chi tiết trang trí đầu cột, thân cột và họa tiết hoa văn phù điêu cũng được tinh giản, chỉ giữ lại những gì tinh túy và bắt mắt nhất làm nổi bật mặt tiền của ngôi nhà.

Một trong những điều tạo nên ấn tượng cho ngôi biệt thự chính là hệ mái Thái lồng ghép màu vàng tươi kết hợp cùng các cửa sổ mái hình tam giác đẹp mắt. Kiểu mái phá cách này vừa tăng thêm sự đồ sộ, vững chãi cho công trình vừa tạo ra sự cân đối về mặt thẩm mỹ cho ngoại thất của ngôi nhà. Kiểu mái này cũng sử dụng khá phổ biến khi thiết kế biệt thự hiện đại hoặc biệt thự tân cổ điển hiện nay. (Xem thêm: Những mẫu thiết kế biệt thự mái Thái đẹp đang “làm mưa làm gió” năm nay)
Để hiểu hơn vì sao kiểu mái Thái này lại được sử dụng nhiều và cũng được nhiều gia chủ yêu thích, bạn có thể xem thêm trong bài Vì sao những thiết kế biệt thự mái Thái được nhiều người ưa chuộng.
Nếu không thích mái Thái, bạn có thể tham khảo các mẫu biệt thự mái Nhật đẹp như:
>>> Mẫu biệt thự 2 tầng mái Nhật kết hợp vườn treo (BT072002)
>>> Ấn tượng mẫu biệt thự 2 tầng mang phong cách Pháp
Để có một phương án tối ưu nhất cho biệt thự 3 tầng 1 tum này, đội ngũ kiến trúc sư của Kiến Trúc C&B đã mất khá nhiều thời gian nghiên cứu, tìm hiểu nhu cầu của gia chủ cũng như tính toán kỹ lưỡng về diện tích, công năng, phong thủy để có một bản vẽ mặt bằng phù hợp phong thủy biệt thự và đáp ứng yêu cầu của gia chủ.

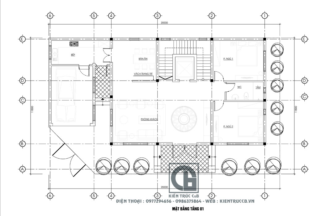
Công năng mặt bằng tầng 1
Tầng 1 được bố trí như sau: Khu bên phải là gara để xe, có cửa thông với bếp phía sau. Mặt bằng tầng 1 gồm sảnh chính, phòng khách và 02 phòng ngủ có WC chung. Việc tách riêng khu bếp và bàn ăn với công năng tầng 1 rất tiện lợi, vừa giúp tránh mùi đồ ăn, vừa rất sạch sẽ và giúp không gian nhà thêm rộng.

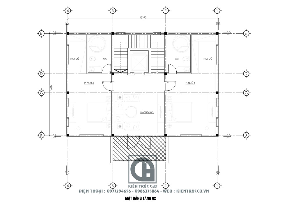
Công năng mặt bằng tầng 2
Mặt bằng tầng 2 gồm: Phòng sinh hoạt chung và 2 Phòng ngủ Master có kế hợp phòng thay đồ và WC khép kín.

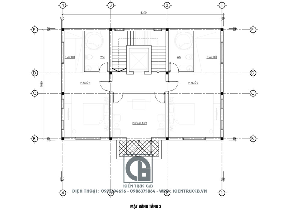
Công năng mặt bằng tầng 3
Mặt bằng tầng 3 gồm: Phòng thờ và 2 Phòng ngủ Master có kế hợp phòng thay đồ và WC khép kín.

Công năng mặt bằng tầng tum: Khu vực tầng tum được bố trí phòng đọc sách, phòng karaoke, phòng giặt phưi và 2 sân phơi bên cạnh. Vì diện tích sàn khá rộng nên khu vực cầu thang được làm chiếu nghỉ vuông góc đẹp mắt vừa tạo lối đi rộng rãi.
Trên đây là một trong những mẫu biệt thự mái Thái 3 tầng 1 tum đẹp được Kiến Trúc C&B thiết kế cho khách hàng năm 2020. Ngoài ra, chúng tôi còn chuyên thiết kế nhà ống, thiết kế nhà vườn đẹp, nhà phố, khách sạn, thiết kế nội thất, thiết kế lâu đài... tại Hà Nội và các tỉnh lân cận như Hưng Yên, Hải Dương, Bắc Ninh, Phú Thọ... Với hơn 10 năm kinh nghiệm trong ngành cùng đội ngũ kiến trúc sư nhiệt huyết, tận tâm, chúng tôi tự hào mang đến cho khách hàng những công trình đảm bảo chất lượng, hài lòng.
Để được tư vấn thiết kế nhà ở và tham khảo các mẫu nhà đẹp, bạn vui lòng gọi tới Hotline, gửi tin nhắn qua Fanpage Kiến Trúc Nội Thất C&B, Zalo, Email hoặc tới trực tiếp văn phòng của chúng tôi để được hỗ trợ.
Thông tin và nội dung bạn gửi cho chúng tôi càng cụ thể, nội dung tư vấn cho bạn càng tối ưu và chi tiết.