Chuyên viên đã sẵn sàng hỗ trợ!
Tư vấn hoàn toàn miễn phí
Mẫu thiết kế biệt thự mái Thái 3 tầng mang phong cách tân cổ điển ấn tượng, rất hợp xu hướng thiết kế nhà hiện nay. Cùng Kiến Trúc C&B tham khảo mặt bằng công năng và vẻ đẹp kiến trúc ngoại thất của ngôi nhà.
Ngay từ cái nhìn đầu tiên, bạn sẽ cảm nhận được sự sang trọng, thời thượng toát lên qua vẻ đẹp ngoại thất cũng như mặt tiền của mẫu biệt thự đẹp này. Với mặt tiền gần 9m, ngôi nhà được thiết kế thành 2 khối vững chãi.
Phần tiền sảnh được bố trí 2 trụ cột hình vuông với các chi tiết trang trí đầu cột mang phong cách cổ điển đặc trưng, những họa tiết hoa văn vô cùng tinh xảo, tỉ mỉ, thể hiện được tính thẩm mỹ tuyệt đối, tăng thêm sự bề thế cho ngôi nhà và tạo được điểm nhấn ngay từ bên ngoài. Xung quanh ngôi nhà là những hệ cột giả đắp nổi vuông thành góc cạnh làm cho tổng thể ngôi nhà rất kiên cố, mạnh mẽ.
Mặt tiền của mẫu biệt thự 3 tầng này còn gây được sự chú ý với hệ ban công mái sắt dạng vòm khá đẹp mắt, hệ cửa sổ cũng được kết hợp vuông, vòm rất hài hòa - đây cũng là cách bố trí đặc trưng của phong cách kiến trúc tân cổ điển.
Hệ mái Thái màu vàng tươi được sử dụng cho thiết kế biệt thự 3 tầng tân cổ điển này giúp tôn lên tối đa nét đẹp hoàn hảo của ngoại thất. Việc lựa chọn màu sắc tương phản giữa màu vàng của mái Thái và màu trắng của ngôi nhà càng làm cho vẻ đẹp của biệt thự trở nên nổi bật, sang trọng, đi cùng năm tháng. (Tham khảo thêm các loại mái nhà sử dụng khi thiết kế biệt thự Tại đây).
Bên cạnh đó, những chiếc cửa sổ vuông tròn cũng được bố trí cân đối, màu đen điểm xuyết cũng tạo điểm nhấn cho ngôi nhà.
Xem thêm: Tổng hợp các mẫu thiết kế biệt thự 3 tầng đẹp và ấn tượng nhất 2020

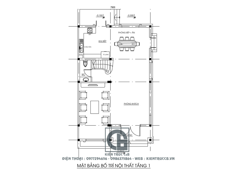
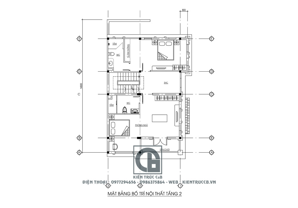
Với diện tích mỗi sàn khoảng 120m, công năng mỗi tầng được bố trí như sau:
Mặt bằng tầng 1: Phòng khách, phòng bếp + ăn, WC
Mặt bằng tầng 2: 02 phòng ngủ với WC khép kín.
Mặt bằng tầng 3: 02 phòng ngủ với WC khép kín + Sân chơi

Thiết kế nội thất phòng khách trong mẫu biệt thự mái Thái này có diện tích khá rộng, ngoài khu vực để bàn ghế sofa, tủ tivi gia chủ còn khoảng không khá rộng để tiếp khách và làm không gian sinh hoạt chung. Phòng khách được bố trí ngay ở tiền sảnh đi vào, tiếp theo là khu vực cầu thang. Cuối nhà là khu phòng ăn và bếp. Việc bố trí phòng bếp khuất phía cuối nhà vừa giúp tránh bay mùi lại rất tiện lợi trong sinh hoạt gia đình.
Việc bố trí WC ở gầm cầu thang rất hợp lý vừa tiết kiệm diện tích lại giúp che khuất khu vực này nên rất tiện lợi.

Với diện tích khá rộng, hơn 100m2/sàn nên các phòng ngủ đều được thiết kế với đầy đủ các khu chức năng như phòng tắm, phòng thay đồ, không ran rộng, thoáng mang đến cảm thác thư giãn, thoải mái cho gia chủ.

Khu vực sân chơi bố trí trên tâng 3 vừa giúp gia chủ làm không gian thưởng trà, trồng cây cảnh hoặc phơi phóng đều hợp lý.
Trên đây là một trong những mẫu biệt thự 3 tầng đẹp và ấn tượng nhất được thiết kế theo phong cách tân cổ điển mái Thái mà Kiến Trúc C&B mang tới cho khách hàng. Nếu bạn cũng là người đam mê những mẫu nhà biệt thự tân cổ điển, hãy tham khảo thêm nhiều mẫu khác trong bài: Top những mẫu thiết kế biệt thự lâu đài tân cổ điển ấn tượng nhất Việt Nam 2020
Ngoài thiết kế biệt thự, chúng tôi còn chuyên thiết kế những mẫu nhà ống 2 tầng, 3, 4, 5, 6 tầng đẹp, thiết kế nhà vườn, thiết kế lâu đài, thiết kế khách sạn... Để nhận mẫu nhà đẹp và tư vấn thiết kế nhà miễn phí, bạn vui lòng tới Hotline, gửi thông tin tư vấn qua Email, gửi tin nhắn qua Zalo, Fanpage Facebook Kiến Trúc Nội Thất C&B hoặc tới trực tiếp văn phòng của chúng tôi. Bên cạnh đó, bạn có thể để lại nội dung tư vấn theo mẫu dưới đây:
Thông tin và nội dung bạn gửi cho chúng tôi càng cụ thể, nội dung tư vấn cho bạn càng tối ưu và chi tiết.