Chuyên viên đã sẵn sàng hỗ trợ!
Tư vấn hoàn toàn miễn phí
Xu hướng xây dựng nhà ở kết hợp văn phòng cho thuê đang trở lên rất thịnh hành. Bạn sở hữu một khu đất rộng ở vị trí trung tâm, việc tích hợp thiết kế khu vực sinh hoạt gia đình và nơi cho thuê là nhu cầu tất yếu. Một thiết kế biệt thự 5 tầng mang cách tân cổ điển, hơi hướng châu Âu sẽ là sự lựa chọn hoàn hảo đáp ứng được nhu cầu này.

Ngôi biệt thự của gia đình chị Ánh tọa lạc ngay trên ngã tư đắt đỏ, trung tâm thành phố Thái Bình. Thiết kế của nó gồm 5 tầng. Trong đó, 3 tầng dưới của tòa nhà dùng để cho thuê văn phòng; 2 tầng trên dùng để phục vụ sinh hoạt của gia đình gia chủ. Chính vì vậy, thiết kế của 2 phần nhà này căn bản có sự khác nhau về công năng. Để hài hòa nó quả không phải đơn giản. Với sự khéo léo, giàu kinh nghiệm của các kiến trúc sư C&B đã cho ra mẫu thiết kế mang phong cách tân cổ dung hòa được các khúc mắc trên.

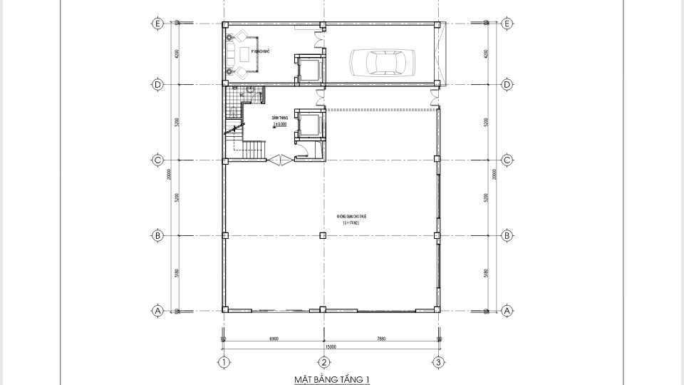
Mặt bằng tầng 1 có kết cấu đơn giản, gồm: 1 phòng ngủ nhỏ, 1 khu sảnh thang và 1 khu cho thuê rộng rãi.
Ưu điểm 2 mặt tiền giúp tận dụng mọi diện tích cho các đơn vị cho thuê trưng bày và giới thiệu sản phẩm. Vậy nên, tầng 1 được trang trí với hệ thống cửa kính sáng lớn. Hai cửa lớn bước vào cũng được thiết kế bằng hệ thống kính cường lực trong suốt bao trọn từ tầng 1 – tầng 2. Điều này, giúp không gian trong nhà thêm rộng rãi và sáng sủa hơn với cảm quan từ ngoài vào.
Trụ cột cửa chính là thức cột Ionic cổ điển châu Âu. Đôi cột và bao cột tròn mảnh dẻ, trang nhã. Thức cột Doric với đặng trưng, giúp tiết chế sự đồ sộ của căn biệt thự 5 tầng bề thế. Ngôi nhà trở nên quý phái hơn với phong cách tân cổ điển đậm chất lãng mạn.

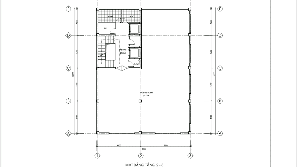
Hai tầng này có mặt bằng công năng tương tự nhau. Mỗi tầng bao gồm: 1 sảnh thang, 1 nhà vệ sinh- kho, khu vực cho thuê.
Hệ thống cửa sổ phân bố nhiều ở 2 tầng này. Sự phân bố đều cửa sổ lớn sẽ giúp phòng làm việc có nhiều ánh sáng tự nhiên hơn. Đây cũng là nguồn năng lượng tốt, cần thiết cho hoạt động doanh nghiệp thêm hiệu quả. Ánh sáng tự nhiên cũng là yếu tố quan trọng trong phong thủy phòng làm việc nói chung.
Ban công được bố trí 2 mặt ở tầng 3. Đây là điểm nhấn ấn tượng với sự kết hợp của lối cửa sổ vòm cong, thanh chắn ban công là lan sắt nghệ thuật. Các lan sắt ban công được thiết kế cầu kì với những họa tiết trang nhã mà tinh xảo. Nơi đây, thích hợp để những chậu hoa nhỏ xinh xắn tô điểm vẻ đẹp của căn biệt thự 5 tầng lộng lẫy này.

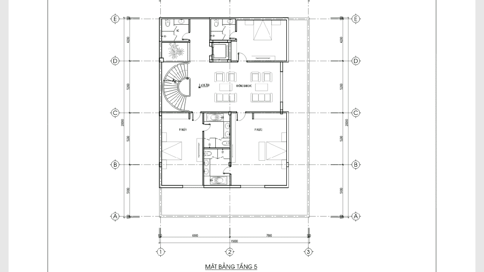
Hai tầng này là không gian sinh hoạt của gia đình gia chủ. Diện tích mặt sàn thu hẹp hơn so với 3 tầng dưới, điều này, tạo không gian ấm cúng sinh hoạt gia đình. Phần diện tích chênh lệch mặt sàn trở thành khu vườn nhỏ bao quanh tầng nhà. Ở đây, quả là địa điểm thích hợp để đặt những chậu cây cảnh, giàn hoa hay khu tiểu cảnh non bộ…
Hệ thống cửa sổ có kích thước nhỏ hơn nhưng được phân bố đều ở 2 tầng này. Ban công rộng hơn và lan sắt uốn cong đầy nghệ thuật theo đường ban công hình cung tròn đó.

Chất tân cổ được khắc họa đậm nét trong cách sử dụng trang trí các bức đắp thạch cao cầu kì, tinh tế. Hệ thống phào chỉ mỗi vách cột, cửa sổ đều được chăm chút kỹ lưỡng. Chi tiết hoa lá được thêm vào hết sức hợp mắt mà không hề rối. Tất cả góp phần đem lại phong cách tân cổ đúng niêm luật nhất cho căn biệt thự 5 tầng bề thế.
Bạn muốn tìm hiểu thêm về kiến trúc và nội thất, vui lòng truy cập:
->>>>> Thiết kế nhà vườn đẹp
->>>>> Mẫu biệt thự 2 tầng phong cách Pháp
->>>>> Ấn tượng thiết kế biệt thự 3 tầng phong cách tân cổ tại Vinhomes Riverside
CÔNG TY TƯ VẤN KIẾN TRÚC NỘI THẤT C&B
Số 168 Nguyễn Xiển - Thanh Xuân - Hà Nội
Hotline: 0977294656 – 0986375864.
Email: KIENTRUCCB@GMAIL.COM.
Xem thêm Video về mẫu nhà trên kênh: Youtube Kiến trúc C&B
Cập nhật mẫu nhà mới liên tục tại: Pinterest Kiến trúc C&B
Thông tin và nội dung bạn gửi cho chúng tôi càng cụ thể, nội dung tư vấn cho bạn càng tối ưu và chi tiết.