Chuyên viên đã sẵn sàng hỗ trợ!
Tư vấn hoàn toàn miễn phí
BIỆT THỰ TÂN CỔ ĐIỂN 2 TẦNG - VẺ ĐẸP XA HOA THỜI THƯỢNG
Biệt thự tân cổ điển 2 tầng là sự kết hợp hài hòa giữa nét sang trọng, đẳng cấp của phương Tây cùng sự tinh tế mang hơi thở Á Đông, mang đến không gian sống đẳng cấp, xa hoa cho giới thành đạt.
Thật tuyệt vời khi được đồng hành cùng gia đình chú Long - Lai Châu kiến tạo nên một không gian sống đẳng cấp và sang trọng như thế này!


Biệt thự tân cổ điển 2 tầng theo kiến trúc mái Nhật sẽ giản lược những họa tiết rườm rà, tránh cảm giác nặng nề, bí bách. Tuy nhiên, những chi tiết mang tính biểu tượng của phong cách tân cổ điển như cột trụ tròn, mái vòm… vẫn được giữ lại. Chính vì vậy, phong cách thiết kế mái Nhật sẽ “khoác” lên căn biệt thự một “tấm áo” vừa sang trọng, cao cấp lại vô cùng tinh tế, thanh thoát và nhẹ nhàng.
Bên cạnh đó, độ dốc và độ vây của mái Nhật ở mức cao, tạo điều kiện thuận lợi trong quá trình thoát nước mưa.

Biệt thự tân cổ điển 2 tầng là sự lựa chọn phổ biến cho các gia đình có nhu cầu không gian sống rộng rãi hơn, với thiết kế sang trọng, đẳng cấp.



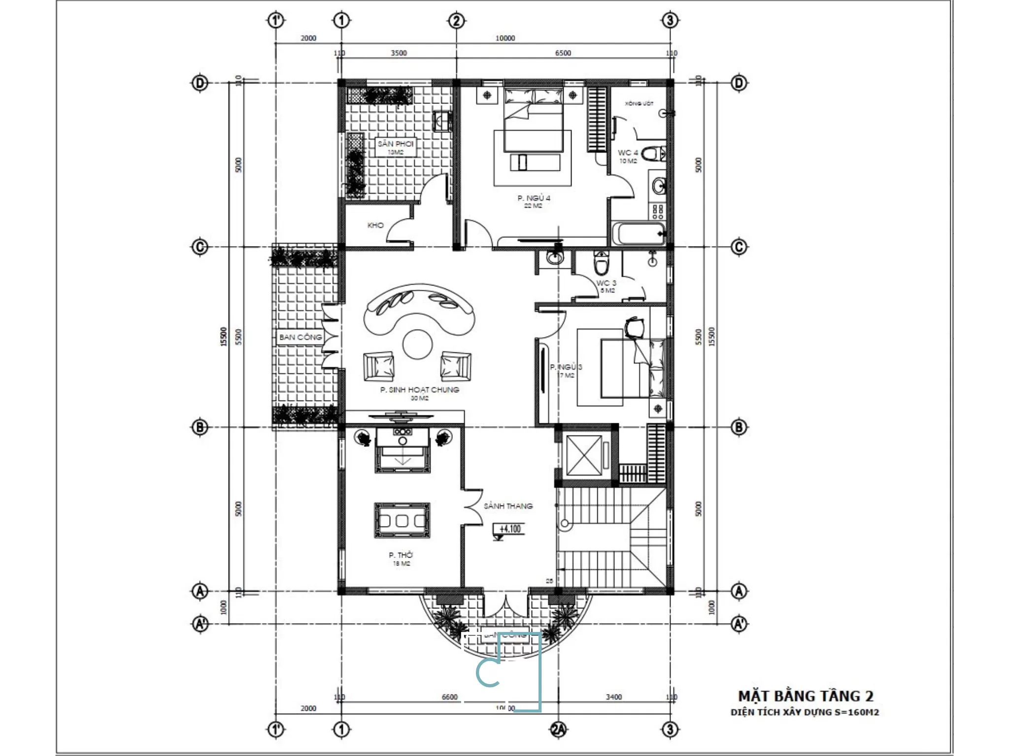
Biệt thự được bố trí đầy đủ các phòng chức năng như phòng khách, phòng ăn, phòng bếp, phòng ngủ, phòng sinh hoạt chung, phòng kho... đáp ứng đầy đủ nhu cầu sinh hoạt của gia đình. Đặc biệt, chúng tôi đã dành nhiều diện tích cho không gian xanh, tạo nên một không gian sống trong lành và thư thái.
Biệt thự tân cổ điển là một lựa chọn hoàn hảo cho những gia đình yêu thích phong cách kiến trúc kết hợp giữa cổ điển và hiện đại. Với vẻ đẹp sang trọng, đẳng cấp và không gian sống tiện nghi, biệt thự tân cổ điển xứng đáng là một tổ ấm lý tưởng cho gia đình bạn.
Chúng tôi luôn mong muốn được đồng hành cùng quý khách hàng kiến tạo nên những không gian sống hoàn hảo. Nếu bạn đang có nhu cầu thiết kế và thi công nhà ở, hãy liên hệ với chúng tôi để được tư vấn và hỗ trợ tốt nhất.
Các bạn có thể tham khảo thêm một số mẫu biệt thự mái Nhật qua các bài dưới sau đây:
>>> Nhẹ nhàng sang trọng trong mẫu biệt thự tân cổ điển 3 tầng mái Nhật
>>> Mẫu thiết kế biệt thự 2 tầng mái Nhật theo phong cách hiện đại (MSP: BH131001)
Liên hệ ngay:
BIỆT THỰ TÂN CỔ ĐIỂN 2 TẦNG - VẺ ĐẸP XA HOA THỜI THƯỢNG
Biệt thự tân cổ điển 2 tầng là sự kết hợp hài hòa giữa nét sang trọng, đẳng cấp của phương Tây cùng sự tinh tế mang hơi thở Á Đông, mang đến không gian sống đẳng cấp, xa hoa cho giới thành đạt.
Thật tuyệt vời khi được đồng hành cùng gia đình chú Long - Lai Châu kiến tạo nên một không gian sống đẳng cấp và sang trọng như thế này!


Biệt thự tân cổ điển 2 tầng theo kiến trúc mái Nhật sẽ giản lược những họa tiết rườm rà, tránh cảm giác nặng nề, bí bách. Tuy nhiên, những chi tiết mang tính biểu tượng của phong cách tân cổ điển như cột trụ tròn, mái vòm… vẫn được giữ lại. Chính vì vậy, phong cách thiết kế mái Nhật sẽ “khoác” lên căn biệt thự một “tấm áo” vừa sang trọng, cao cấp lại vô cùng tinh tế, thanh thoát và nhẹ nhàng.
Bên cạnh đó, độ dốc và độ vây của mái Nhật ở mức cao, tạo điều kiện thuận lợi trong quá trình thoát nước mưa.

Biệt thự tân cổ điển 2 tầng là sự lựa chọn phổ biến cho các gia đình có nhu cầu không gian sống rộng rãi hơn, với thiết kế sang trọng, đẳng cấp.



Biệt thự được bố trí đầy đủ các phòng chức năng như phòng khách, phòng ăn, phòng bếp, phòng ngủ, phòng sinh hoạt chung, phòng kho... đáp ứng đầy đủ nhu cầu sinh hoạt của gia đình. Đặc biệt, chúng tôi đã dành nhiều diện tích cho không gian xanh, tạo nên một không gian sống trong lành và thư thái.
Biệt thự tân cổ điển là một lựa chọn hoàn hảo cho những gia đình yêu thích phong cách kiến trúc kết hợp giữa cổ điển và hiện đại. Với vẻ đẹp sang trọng, đẳng cấp và không gian sống tiện nghi, biệt thự tân cổ điển xứng đáng là một tổ ấm lý tưởng cho gia đình bạn.
Chúng tôi luôn mong muốn được đồng hành cùng quý khách hàng kiến tạo nên những không gian sống hoàn hảo. Nếu bạn đang có nhu cầu thiết kế và thi công nhà ở, hãy liên hệ với chúng tôi để được tư vấn và hỗ trợ tốt nhất.
Các bạn có thể tham khảo thêm một số mẫu biệt thự mái Nhật qua các bài dưới sau đây:
>>> Nhẹ nhàng sang trọng trong mẫu biệt thự tân cổ điển 3 tầng mái Nhật
>>> Mẫu thiết kế biệt thự 2 tầng mái Nhật theo phong cách hiện đại (MSP: BH131001)
Liên hệ ngay:
Thông tin và nội dung bạn gửi cho chúng tôi càng cụ thể, nội dung tư vấn cho bạn càng tối ưu và chi tiết.