Chuyên viên đã sẵn sàng hỗ trợ!
Tư vấn hoàn toàn miễn phí
Mẫu biệt thự 2 tầng tân cổ điển mái Nhật mang nét đẹp chuẩn mực, sang trọng và tinh tế đến từng chi tiết, được gia chủ vô cùng ưng ý. Cùng Kiến Trúc C&B chiêm ngưỡng vẻ đẹp quý phái của ngôi nhà nhé.
Có thể nói ngay từ khi nhìn vào mẫu biệt thự đẹp này, bạn sẽ có một cảm giác vô cùng ấn tượng và choáng ngợp với vẻ đẹp tinh tế và cuốn của ngôi nhà. Biệt thự được thiết kế theo phong cách tân cổ điển nhẹ nhàng, quý phái.
Không quá cầu kỳ hay hoa mĩ trong đường nét kiến trúc, không quá nhồi nhét những chi tiết hoa văn hay phù điêu ở mặt tiền nên ngôi nhà mang đến cảm giác vô cùng thoải mái, dễ chịu cho người nhìn. Vẻ đẹp của nó đến từ sự kết hợp hài hòa của nhiều yếu tố. Trong đó nổi bật là việc sử dụng các rãnh xẻ, đường gờ thanh mảnh ở các phần tường ngoại thất, hệ cột trụ vuông, trơn láng, đơn giản. Rất nhiều các mẫu biệt thự 3 tầng đẹp được Kiến Trúc C&B thiết kế cũng được sử dụng nguyên tắc phối kết hợp này, bạn có thể tham khảo thêm trong bài viết: Tổng hợp những mẫu thiết kế biệt thự đẹp 2 tầng, 3 tầng

Phối cảnh mặt tiền biệt thự 2 tầng
Đặc biệt, khối đế của ngôi nhà cũng như các chân cột ban công tầng 2 được ốp gạch rối mảnh to màu ghi xám, tương phản nhưng lại rất hợp với màu sơn trắng của ngôi nhà. Nó không chỉ tăng tính thẩm mỹ của mặt tiền mà còn tăng sự vững chắc của khối đế.
Phần sảnh chính và sảnh phụ được thiết kế mái che kết hợp Phần mái đua ra ở tầng 1 cũng giúp tổng thể kiến trúc thêm cân đối, hài hòa và đẹp mắt. Tầng 2 được gia chủ dành khá nhiều không gian cho việc thiết kế sân vườn, làm vườn treo. Đây chắc chắn sẽ là không gian vô cùng lý tưởng để cả gia đình thưởng trà, ngắm cảnh hoặc trồng hoa. Hiện nay, thiết kế biệt thự kết hợp vườn treo là xu hướng thiết kế nhà được nhiều gia chủ ưa chuộng. Bạn có thể tham khảo thêm các mẫu biệt thự đẹp kết hợp vườn treo Tại đây.
Thiết kế biệt thự 2 tầng sử dụng lan can sắt hoa văn khá đẹp mắt ở khu vực tầng 2. Kiểu ban công này vừa đẹp, vừa giúp tiết kiệm chi phí hiệu quả cho gia chủ.
Một trong những yếu tố ảnh hưởng tới sự cuốn hút của mặt tiền biệt thự chính là việc sử dụng và bố trí cửa chính, cửa phụ. Với mẫu biệt thự này, kiến trúc sư của C&B đã bố trí cửa chính làm từ chất liệu gỗ với màu nâu cánh gián để tạo điểm nhấn. Hệ cửa sổ còn lại sử dụng cửa kính, khung màu tối và được bố trí đều xung quanh nhà, giúp lấy ánh sáng tối đa cho bên trong và mang lại sự san trọng cho kiến trúc mặt ngoài.
Việc sử dụng chất liệu kính làm cửa thường thấy trong các mẫu thiết kế biệt thự hiện đại. Nếu bạn muốn thiết kế nhà mình theo phong cách hiện đại có thể tham khảo thêm các mẫu biệt thự hiện đại sau:
>>> Mẫu thiết kế biệt thự 3 tầng phong cách hiện đại, năng động
>>> Mẫu thiết kế biệt thự hiện đại 3 tầng đẹp (MSP: BT082008)
Khi xây biệt thự thì một trong những điều mà nhiều gia chủ quan tâm chính là sử dụng kiểu mái nào cho ngôi nhà của mình. Có khá nhiều các kiểu mái như mái Thái, mái Nhật, mái Bằng, mái lệch... Tùy theo nhu cầu sử dụng, sở thích của gia chủ những như phong cách của ngôi nhà mà có thể lựa chọn kiểu mái cho phù hợp (Tham khảo: Những kiểu mái nhà sử dụng khi thiết kế kiến trúc biệt thự)

Phối cảnh mặt bên tổng thể
Mẫu biệt thự 2 tầng này sử dụng kiểu mái Nhật rất phổ biến hiện nay. Với độ dốc vừa phải cũng kiểu dáng lạ mắt, ấn tượng. Kiến trúc sư đã sử dụng màu ghi xám để không bị lạc tông màu với màu sơn ngoại thất. Đây cũng là màu sắc thời thượng, rất ít khi bị lỗi thời.
Xem thêm mẫu biệt thự mái Nhật: >>> Mẫu biệt thự 3 tầng phong cách hiện đại (MSP: BT092001)
Với những mẫu nhà ống có diện tích nhỏ hẹp, nhất là mặt tiền hẹp thì việc bố trí mặt bằng công năng có thể là một bài toán khó đòi hỏi trình độ và kinh nghiệm của Kiến trúc sư. Tuy nhiên, khi thiết kế biệt thự, diện tích thường là từ 90m2 trở nên, việc bố trí công năng cũng cũng không phải là vấn đề quá lớn. Quan trọng là nó phải đáp ứng nhu cầu sử dụng của gia chủ, đảm bảo phong thủy.
Mẫu nhà biệt thự của gia đình anh Hà được xây dựng với quy mô khoảng 90m2/sàn trên tổng diện tích đất hơn 300m2. Ngoài xây nhà, khu đất của gia đình anh còn được quy hoạch làm sân vườn, gara ô tô tạo nên một không gian sống rất lý tưởng.

Mặt bằng tổng thể khu đất
Sau khi tìm hiểu nhu cầu của gia chủ, kiến trúc C&B đã lên phương án mặt bằng cho các tầng như sau:
Mặt bằng tầng 1: Sảnh chính, phòng khách, phòng bếp + ăn, 02 phòng ngủ, WC chung.
Mặt bằng tầng 2: Phòng thờ, 03 phòng ngủ, sân giặt phơi

Phương án mặt bằng tầng 1
Phương án mặt bằng tầng 1: Biệt thự được thiết kế 2 khối. Bước vào nhà là khu vực tiền sảnh với mái che ở khối bên phải. Đi vào là phòng khách có diện tích khoảng 20m2, kế tiếp sa vách ngăn phòng khách là khu vực cầu thang, sâu vào bên trong là khu bếp và phòng ăn. Hai phòng ngủ được bố trí cạnh nhau, cửa đối diện cầu thang với diện tích mỗi phòng khoảng 15m2.

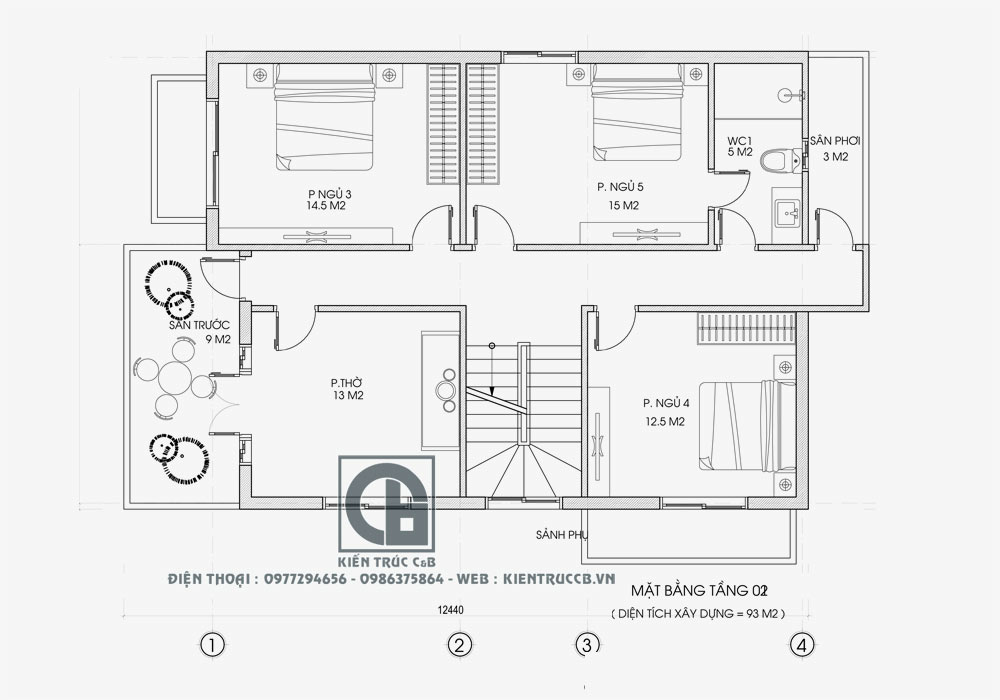
Phương án mặt bằng tầng 2
Khu vực tầng 2 bao gồm phòng thờ có diện tích 13m2, 2 phòng ngủ gối lên 2 phòng ngủ ở tầng 1. Ngoài ra còn 01 phòng ngủ nhỏ diện tích khoảng 12,5m2, sân giặt phơi 3m2 và sân trước với diện tích 9m2 kết hợp vườn treo.
Trên đây là một trong những mẫu biệt thự 2 tầng đẹp được Kiến Trúc C&B dành rất nhiều tâm huyết và công sức cũng như kết hợp ăn ý cùng gia chủ. Để tham khảo thêm nhiều mẫu thiết kế nhà đẹp khác của chúng tôi, mời bạn ghé website, kênh Youtube, truy cập Fanpage Kiến Trúc Nội Thất C&B hoặc liên hệ với chúng tôi qua Hotline, zalo. Với kinh nghiệm hơn 10 năm thiết kế nhà biệt thự, thiết kế nhà vườn, thiết kế nhà ống tại Hà Nội và các tỉnh lân cận như Hải Dương, Hải Phòng, Hưng Yên, Phú Thọ, Bắc Ninh..., chúng tôi tin sẽ mang đến cho bạn một dịch vụ chất lượng và một mẫu nhà đẹp mang dấu ấn riêng của bạn.
Thông tin và nội dung bạn gửi cho chúng tôi càng cụ thể, nội dung tư vấn cho bạn càng tối ưu và chi tiết.