Chuyên viên đã sẵn sàng hỗ trợ!
Tư vấn hoàn toàn miễn phí
Mẫu biệt thự đẹp 2 tầng mái Nhật mang phong cách hiện đại, có pha chút đường nét kiến trúc tân cổ điển cùng màu sắc giản dị, mộc mạc tạo nên sự sang trọng, ấn tượng khiến gia chủ rất hài lòng.
Sử dụng mái Nhật khi thiết kế biệt thự là lựa chọn phổ biến của nhiêu gia chủ khi thiết kế nhà hiện nay. Kiểu mái này cũng có nét tương đồng với mái Thái tuy nhiên, độ dốc thấp hơn, đồng thời có nhiều đường gân, nhìn khá chắc chắn và đẹp mắt. Mái cũng có nhiều màu sắc, có thể biến tấu theo nhiều phong cách và hình dạng khác nhau phù hợp với từng ngôi nhà và sở thích của gia chủ. Bạn có thể tham khảo thêm nhiều kiểu mái khách khi xây biệt thự Tại đây.

Phối cảnh tổng thể biệt thự
Mẫu biệt thự 2 tầng này sử dụng hệ mái Nhật với màu ghi xanh xám rất phù hợp với xu hướng hiện nay, nó còn kết hợp rất ăn ý và hài hòa với màu sắc của phần cột sảnh chính cũng như tường ngoại thất tầng 1. Sự tương phản và tương đồng liên hoàn về màu sắc ngoại thất từ tầng 1 lên mái giúp cho tổng quan kiến trúc ngôi nhà khá đẹp mắt, dễ nhìn.

Biệt thự nhìn từ hướng chính cổng
Đặc biệt, ngôi nhà thiết kế mái Nhật với phần chân mái đua ra khá nhiều, có tác dụng như một mái che chắn ở cửa sổ hoặc ban công cũng rất hiệu quả.
Về mặt kiến trúc, thiết kế biệt thự 2 tầng được lấy cảm hứng chủ đạo từ phong cách hiện đại. Hầu như có rất ít các đường gờ, phào hay hoa văn trang trí mặt tiền, tất cả đều làm tường phẳng theo xu hướng tối giản nhất định vừa tiết kiệm chi phí, công sức lại làm cho người nhìn không bị rối mắt.
Phối cảnh biệt thự từ trên cao
Khu vực tầng 1 được thiết kế tiền sảnh với hệ trụ cột hình chữ nhật với gạch ốp màu đen - tone màu nguyên thủy rất độc đáo, tạo điểm nhấn cho mặt tiền. Toàn bộ phần tường trống của tầng 1 cũng được ốp gạch màu ghi xám tone màu nguyên thủy bê tông - đây là xu hướng được sử dụng nhiều khi thiết kế nhà hàng, quán cà phê hiện nay.

Để tạo điểm nhấn cuốn hút và sự khác biệt thì tầng 1 được ốp mảng gạch màu vàng, tone màu tương phản với ngoại thất. Điểm thu hút này được nhấn vào khu vực cửa sổ ban công, vườn treo tầng 2. Đây cũng là không gian lý tưởng để gia chủ thư giãn, ngắm cảnh, thưởng trà vào mỗi buổi sáng. Gia chủ có thể làm vườn treo, trồng cây cảnh hoặc làm sân phơi. Kiến Trúc C&B hiện cũng có rất nhiều mẫu biệt thự đẹp 2 tầng kết hợp vườn treo bạn có thể tham khảo thêm:
>>> Mẫu biệt thự 2 tầng tân cổ điển mái Nhật (MSP: BT112001)
>>> Tổng hợp những mẫu thiết kế biệt thự đẹp 2 tầng, 3 tầng

Chủ nhân của ngôi nhà cũng là người rất yêu thích thiên nhiên, muốn có một môi trường sống gần gũi, giao hòa với thiên nhiên do đó kiến trúc sư đã tận dụng khá nhiều không gian để trồng cây cảnh, làm vườn treo...
Được thiết kế theo phong cách hiện đại nên toàn bộ cửa chính và cửa sổ của ngôi nhà sử dụng kính mờ kết hợp khung màu đen không bị chói lóa nhưng đồng thời cũng giúp không gian bên trong trở nên thoáng và nhiều ánh sáng tự nhiên hơn. Nếu bạn cũng thích các mẫu biệt thự hiện đại, có thể xem thêm các mẫu nhà đẹp mà chúng tôi thiết kế:
>>> Mẫu thiết kế biệt thự 3 tầng phong cách hiện đại, năng động
>>> Mẫu thiết kế biệt thự hiện đại 3 tầng đẹp (MSP: BT082008)

Ngôi nhà nhìn từ mặt bên
Biệt thự được xây dựng trên diện tích khoảng 100m2/sàn với công năng các tầng được bố trí như sau:

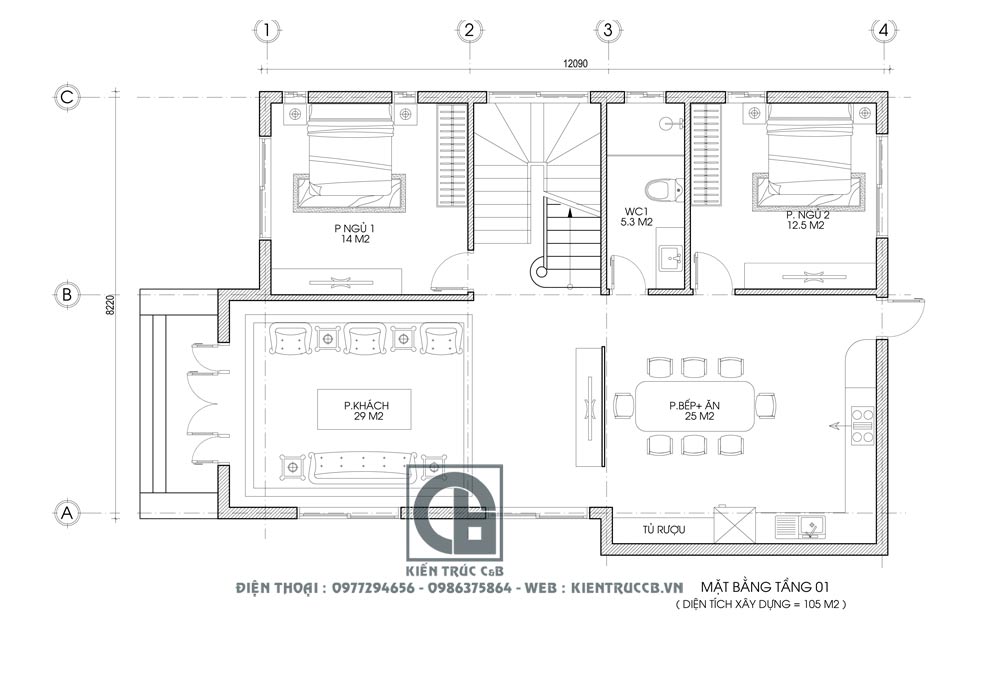
Phương án mặt bằng tầng 1
Mặt bằng tầng 1: Phòng khách 29m2, phòng bếp + ăn 25m2, 02 phòng ngủ có diện tích 14m2 và 12,5m2, WC chung.
Tổng thể nhà được chia thành 2 khối. Trong đó, Phương án mặt bằng tầng 1 được thiết kế theo nhu cầu phổ biến thường thấy của các gia chủ hiện nay. Ở khối bên phải, ngay tiền sảnh đi vào là phòng khách, thông với phòng khách là vách ngăn với phòng bếp và bàn ăn. Khối bên trái sẽ là 2 phòng ngủ được bố trí ở 2 bên cầu thang rất khoa học và hợp lý.

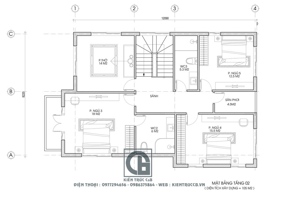
Phương án mặt bằng tầng 2
Mặt bằng tầng 2: Gối lên phòng khách là phòng ngủ Master có diện tích khoảng 24m2, phía cuối là 02 phòng ngủ WC chung ở hai bên. Phòng thờ được bố trí đối diện với phòng ngủ Master.
Trên đây là một trong những mẫu biệt thự 2 tầng phổ biến mà Kiến Trúc C&B muốn giới thiệu tới khách hàng. Ngoài thiết kế biệt thự, chúng tôi còn chuyên tư vấn thiết kế nhà ống đẹp, thiết kế nhà vườn, khách sạn, nhà hàng, thiết kế lâu đài....
Để nhận mẫòngmiễn phí, bạn vui lòng gọi điện tới Hotline, gửi nội dung tư vấn qua Email, gửi tin nhắn qua Zalo, Fanpage Kiến Trúc Nội Thất C&B, truy cập Youtube hoặc tới trực tiếp văn phòng của chúng tôi. Với đội ngũ Kiến trúc sư giàu kinh nghiệm, nhiệt huyết, tận tâm, chúng tôi tin sẽ làm hài lòng mọi khách hàng. Hãy để chúng tôi có cơ hội được đồng hành cùng bạn trên con đường chinh phục ngôi nhà mơ ước.
Thông tin và nội dung bạn gửi cho chúng tôi càng cụ thể, nội dung tư vấn cho bạn càng tối ưu và chi tiết.
