Chuyên viên đã sẵn sàng hỗ trợ!
Tư vấn hoàn toàn miễn phí
Nếu bạn đang tìm kiếm một phong cách thiết kế mới mẻ, tươi mới cho ngôi nhà của mình, phong cách Địa Trung Hải chính là một trong những sự lựa chọn hoàn hảo. Với sự hòa quyện tuyệt vời giữa ánh sáng tự nhiên, màu sắc tươi sáng và sự gần gũi với thiên nhiên cùng những gam màu biển cả như xanh dương, trắng tinh khôi và vàng nắng tạo nên cảm giác thoáng đãng, dễ chịu cho ngôi nhà của bạn.
Phong cách Địa Trung Hải không chỉ chú trọng vào việc sử dụng vật liệu tự nhiên như gỗ, đá, gạch terracotta, mà còn tạo ra không gian mở, gần gũi với thiên nhiên. Những chi tiết trang trí như cửa sổ gỗ, rèm vải mềm mại, hay những chậu cây xanh tươi đều góp phần tạo nên một không gian sống thoải mái, thư giãn.

Với tông màu trắng tinh khôi, xanh biển dịu dàng, và những ô cửa vòm lãng mạn, ngôi nhà phố này là nơi bạn tìm thấy sự bình yên và thoải mái như đang nghỉ dưỡng bên bờ biển.
.png)

Nhà phong cách Địa Trung Hải là xu hướng nổi bật trong kiến trúc hiện đại, mang đến không gian sống sang trọng và thư thái. Với sự kết hợp giữa vẻ đẹp cổ điển và tiện nghi hiện đại, thiết kế này vừa đẹp mắt vừa hữu dụng sự thông thoáng, tận dụng tối đa ánh sáng tự nhiên, tiết kiệm năng lượng, và các vật liệu thân thiện với môi trường, tạo không gian sống bền vững, thoải mái.
.png)
.png)


Đây không chỉ là ngôi nhà, mà còn là biểu tượng của sự thanh lịch và phong cách sống thời thượng. Nếu bạn đang tìm kiếm một không gian sống lãng mạn, tinh tế và đậm chất nghệ thuật, C&B sẽ mang đến những thiết kế nhà Địa Trung Hải đầy cảm hứng, phù hợp với mong muốn của bạn!
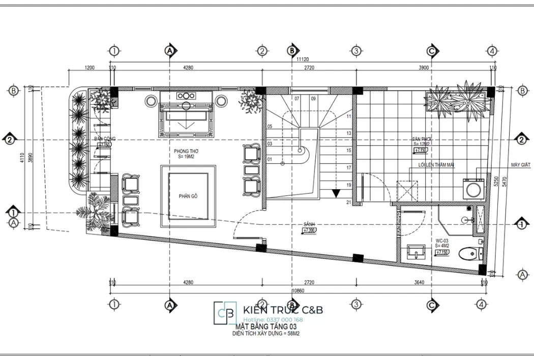
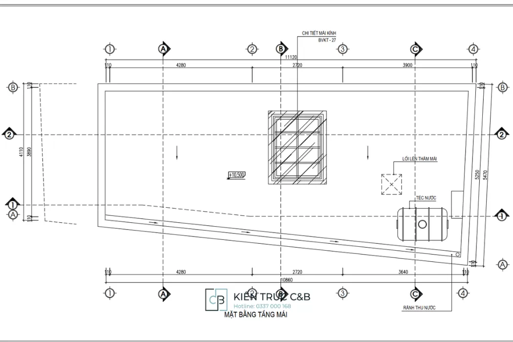
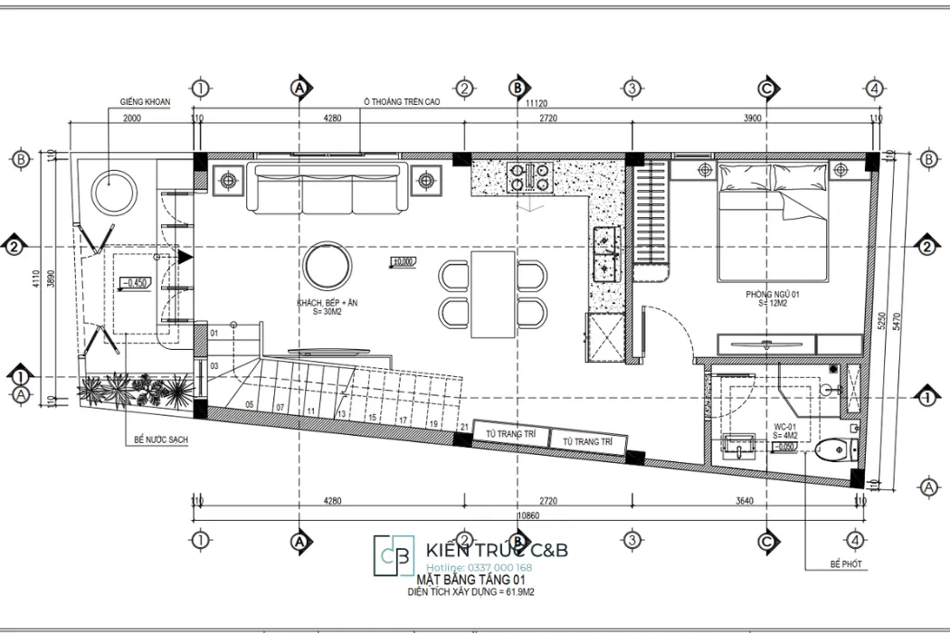
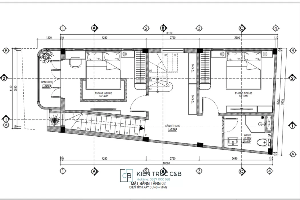
Dự án: Nhà ở gia đình
Diện tích: 62m2
Địa điểm: Thường Tín, Hà Nội
Chủ đầu tư: Anh Phúc
Hãy để phong cách Địa Trung Hải thổi một làn gió mới vào ngôi nhà của bạn, mang đến không gian sống tươi mới và đầy cảm hứng! Liên hệ ngay cho C&B để hiểu rõ hơn về phong cách này nhé!
Để xem thêm các mẫu nhà phố với nhiều phong cách khác, mời bạn nhấn vào link sau: https://kientruccb.vn/thiet-ke-nha-pho-pj559.html
_________________________________
CÔNG TY CỔ PHẦN TƯ VẤN KIẾN TRÚC NỘI THẤT C&B
Hotline: 0337 000 168
Địa chỉ: Số 02, Đường 10, Phân khu Sunrise K, Khu đô thị The Manor Central Park, Quận Hoàng Mai, Hà Nội
Website: https://kientruccb.vn
Youtube: https://www.youtube.com/c/Ki%E1%BA%BFntr%C3%BAcN%E1%BB%99ith%E1%BA%A5tCB
Facebook: https://web.facebook.com/KienTrucCB
Nếu bạn đang tìm kiếm một phong cách thiết kế mới mẻ, tươi mới cho ngôi nhà của mình, phong cách Địa Trung Hải chính là một trong những sự lựa chọn hoàn hảo. Với sự hòa quyện tuyệt vời giữa ánh sáng tự nhiên, màu sắc tươi sáng và sự gần gũi với thiên nhiên cùng những gam màu biển cả như xanh dương, trắng tinh khôi và vàng nắng tạo nên cảm giác thoáng đãng, dễ chịu cho ngôi nhà của bạn.
Phong cách Địa Trung Hải không chỉ chú trọng vào việc sử dụng vật liệu tự nhiên như gỗ, đá, gạch terracotta, mà còn tạo ra không gian mở, gần gũi với thiên nhiên. Những chi tiết trang trí như cửa sổ gỗ, rèm vải mềm mại, hay những chậu cây xanh tươi đều góp phần tạo nên một không gian sống thoải mái, thư giãn.

Với tông màu trắng tinh khôi, xanh biển dịu dàng, và những ô cửa vòm lãng mạn, ngôi nhà phố này là nơi bạn tìm thấy sự bình yên và thoải mái như đang nghỉ dưỡng bên bờ biển.
.png.webp)

Nhà phong cách Địa Trung Hải là xu hướng nổi bật trong kiến trúc hiện đại, mang đến không gian sống sang trọng và thư thái. Với sự kết hợp giữa vẻ đẹp cổ điển và tiện nghi hiện đại, thiết kế này vừa đẹp mắt vừa hữu dụng sự thông thoáng, tận dụng tối đa ánh sáng tự nhiên, tiết kiệm năng lượng, và các vật liệu thân thiện với môi trường, tạo không gian sống bền vững, thoải mái.
.png.webp)
.png.webp)


Đây không chỉ là ngôi nhà, mà còn là biểu tượng của sự thanh lịch và phong cách sống thời thượng. Nếu bạn đang tìm kiếm một không gian sống lãng mạn, tinh tế và đậm chất nghệ thuật, C&B sẽ mang đến những thiết kế nhà Địa Trung Hải đầy cảm hứng, phù hợp với mong muốn của bạn!
Dự án: Nhà ở gia đình
Diện tích: 62m2
Địa điểm: Thường Tín, Hà Nội
Chủ đầu tư: Anh Phúc
Hãy để phong cách Địa Trung Hải thổi một làn gió mới vào ngôi nhà của bạn, mang đến không gian sống tươi mới và đầy cảm hứng! Liên hệ ngay cho C&B để hiểu rõ hơn về phong cách này nhé!
Để xem thêm các mẫu nhà phố với nhiều phong cách khác, mời bạn nhấn vào link sau: https://kientruccb.vn/thiet-ke-nha-pho-pj559.html
_________________________________
CÔNG TY CỔ PHẦN TƯ VẤN KIẾN TRÚC NỘI THẤT C&B
Hotline: 0337 000 168
Địa chỉ: Số 02, Đường 10, Phân khu Sunrise K, Khu đô thị The Manor Central Park, Quận Hoàng Mai, Hà Nội
Website: https://kientruccb.vn
Youtube: https://www.youtube.com/c/Ki%E1%BA%BFntr%C3%BAcN%E1%BB%99ith%E1%BA%A5tCB
Facebook: https://web.facebook.com/KienTrucCB
Thông tin và nội dung bạn gửi cho chúng tôi càng cụ thể, nội dung tư vấn cho bạn càng tối ưu và chi tiết.