Chuyên viên đã sẵn sàng hỗ trợ!
Tư vấn hoàn toàn miễn phí
Mẫu thiết kế biệt thự 3 tầng 1 tum của Chủ đầu tư Anh Nghĩa (Thạch Thất - Hà Nội) mang phong cách tân cổ điển ấn tượng. Từng chi tiết trang trí hoa văn đến mái hộp, thức cột đều toát lên vẻ sang trọng và quý phái, thể hiện sự giàu có, đẳng cấp cũng như "gu" thẩm mỹ tinh tế của gia chủ. Cùng Kiến Trúc C&B tham khảo kỹ hơn vẻ đẹp và công năng của ngôi nhà qua bài viết dưới đây.
Nói đến các mẫu thiết kế biệt thự tân cổ điển, ai cũng sẽ hình dung ra những chi tiết hoa văn, phào chỉ, họa tiết trang trí thật tinh xảo, đẹp mắt. Bên cạnh đó, khi được kết hợp cùng với thức cột đối xứng, tính cân đối trong thiết kế biệt thự sẽ tạo nên một vẻ đẹp trường tồn cùng thời gian.

Mẫu biệt thự 3 tầng của anh Nghĩa được lấy cảm hứng từ phong cách kiến trúc tân cổ điển kiểu Pháp với những nét đặc trưng như: Hệ cột giả đắp nổi xung quanh nhà với những đường gờ phào trang trí được tối giản theo kiểu tân cổ, các bức phù điêu mặt tiền được đắp vẽ hoa văn đẹp mắt, hệ lan can ban công sắt vòm uốn lượn hay thức cột tròn đối xứng được đặt trên ban công tầng 3.
Bên cạnh đó còn một điểm ấn tượng tạo nên sự độc đáo của ngôi nhà và là điểm nhấn thu hút chính cho căn biệt thự chính là hệ mái hộp theo phong cách Pháp cổ kính. Kết hợp cùng các cửa sổ mái vòm rất đẹp mắt. Khi đó, người nhìn sẽ có cảm giác ngôi nhà trở nên đồ sộ, nguy nga và bề thế hơn. Kiểu mái hộp cũng được sử dụng rất thường xuyên khi thiết kế lâu đài, thiết kế biệt thự 3 tầng, biệt thự 3 tầng, thiết kế khách sạn... Bạn có thể tham khảo thêm các mẫu biệt thự đẹp khác theo phong cách này như:
>>> Thiết kế biệt thự tân cổ điển 3 tầng (MSP: BT092002)
>>> Mẫu biệt thự 3 tầng tân cổ điển (MSP: BT122001)

Với lợi thế 3 mặt tiền, kiến trúc sư của Kiến Trúc C&B đã cố gắng tạo lên giá trị đẳng cấp cho ngôi nhà bằng cách bố trí rất nhiều cửa sổ để lấy ánh sáng và không khí cho không gian bên trong. Mặt sau của ngôi nhà cũng được bố trí ban công khá rộng để gia chủ có thể ngắm cảnh. Và khi nhìn vào mặt sau, người ra sẽ có cảm giác như đây chính là mặt tiền.
Tầng 1 của biệt thự cũng được tạo điểm nhấn đặc biệt bằng cách ốp gạch ceramic đá hoa cương màu vàng rất sang trọng, mang phong cách hoàng gia, thể hiện sự giàu có, quý tộc của gia chủ. Toàn bộ ngôi nhà sử dụng tone màu vàng trắng rất đẹp, sáng, không bị lỗi thời.
Để lên được phương án công năng phù hợp với nhu cầu của gia chủ, đội ngũ Kiến trúc sư của Kiến Trúc C&B đã trao đổi kỹ lưỡng, tìm hiểu nhu cầu cũng như tư vấn dựa vào khả năng tài chính, nhu cầu sử dụng và diện tích đất.
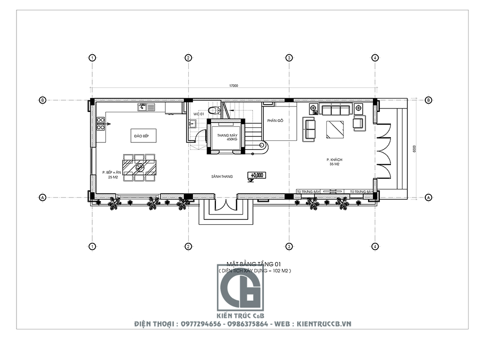
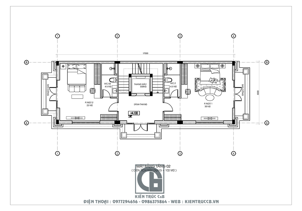
Tổng diện tích mỗi sàn của biệt thự là khoảng 100m2, trong đó công năng các tầng được bố trí như sau:

Mặt bằng tầng 1:Tầng 1 Được chia làm 3 khu vực công năng bao gồm phòng khách, phòng bếp ăn và khu vực sảnh thang, thang máy, cầu thang bộ. Với diện tích 100m2 thì tầng 1 được bố trí rất rộng rãi, đủ sinh hoạt cho cả gia đình trong các dịp lễ, tết. Tầng 1 dùng chung 1WC ở gầm cầu thang.

Mặt bằng tầng 2: Tầng 2 gồm 2 phòng ngủ Master có diện tích 25 và 30m2, khu vực còn lại là sảnh thang đi lại.
Mặt bằng tầng 3: Tầng 3 cũng được bố trí 2 phòng ngủ, tuy nhiên, diện tích lớn hơn và gia chủ quyết định bố trí WC chung bên ngoài để lấy không gian rộng cho bên trong phòng.

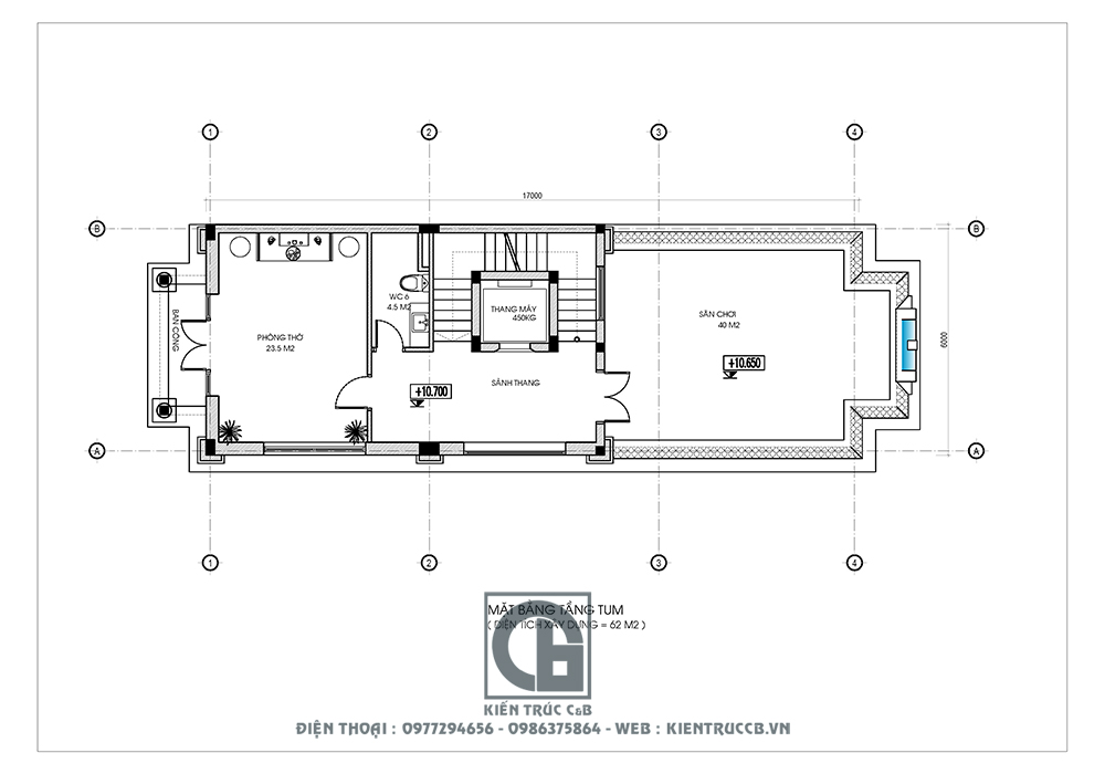
Khu vực tầng tum: Tầng tum được bố trí phòng thờ có diện tích 25m2, phía trước là sân chơi với diện tích khá rộng, gia chủ có thể bố trí cây cảnh, đặt bàn trà cũng rất hợp lý.

Bản vẽ mặt đứng của biệt thự

Sau khi bàn giao hồ sơ thi công, gia chủ đã tiến hành tìm nhà thầu thi công để thi công mẫu biệt thự 3 tầng 1 tum này. Dưới đây là hình ảnh hiện trạng nhà a Nghĩa. Chúng ta cùng chờ đón trong thời gian tiếp theo, mẫu biệt thự hoành tráng sẽ được hoàn thiện như thế nào trên mảnh đất này nhé.


Bên cạnh các mẫu thiết kế biệt thự tân cổ điển, Kiến Trúc C&B còn rất nhiều các mẫu thiết kế biệt thự 3 tầng hiện đại, bạn có thể tham khảo thêm như: Mẫu thiết kế biệt thự 3 tầng phong cách hiện đại, năng động
Để được tư vấn thiết kế nhà miễn phí hoặc tham khảo các mẫu nhà đẹp, hãy liên hệ với Kiến Trúc C&B qua Hotline, Email, Fanpage Kiến Trúc Nội Thất C&B Hoặc tới trực tiếp văn phòng của chúng tôi. Sự hiện diện của bạn chính là động lực để chúng tôi hoàn thiện mình, phục vụ khách hàng, mang tới cho khách hàng những trải nghiệm dịch vụ tốt nhất.
Thông tin và nội dung bạn gửi cho chúng tôi càng cụ thể, nội dung tư vấn cho bạn càng tối ưu và chi tiết.