Chuyên viên đã sẵn sàng hỗ trợ!
Tư vấn hoàn toàn miễn phí
Mẫu thiết kế biệt thự 3 tầng của chủ đầu tư anh Tiến được thiết kế theo phong cách hiện đại, năng động, phóng khoáng với dạng khối hộp cùng mái Thái chữ T cách điệu đẹp mắt.
Cùng Kiến Trúc C&B dạo qua một vòng mẫu biệt thự hiện đại khá ấn tượng này nhé:

Tổng diện tích của biệt thự hiện đại 3 tầng gồm 160m2 với thiết kế gồm 3 tầng, trong đó các tầng sẽ được bố trí như sau:

Mặt bằng tầng 1: Gồm gara để xe ô tô, phòng khách, phòng ăn, phòng bếp + bar, phòng ngủ nhỏ cho người giúp việc hoặc khách, kho, đồ vệ sinh, khu vực thang bộ.

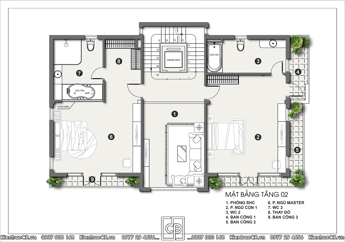
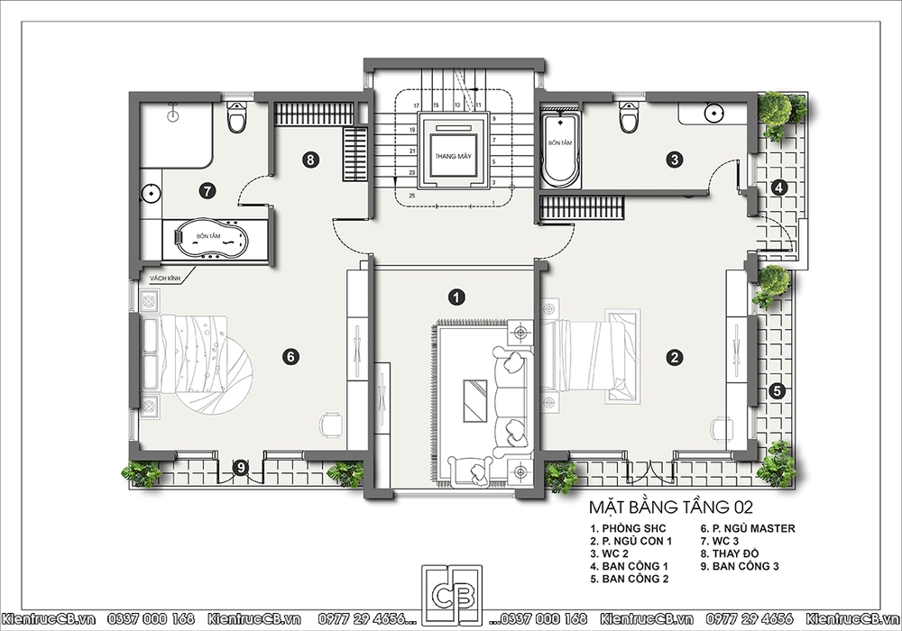
Mặt bằng tầng 2: 01 phòng ngủ Master, 01 phòng sinh hoạt chung, 01 phòng ngủ chính, WC nhỏ và sảnh thang bộ.

Mặt bằng tầng 3: Phòng thờ, 01 phòng ngủ khép kín, phòng đa năng, 02 sân phơi đồ

Phương án mặt bằng của mẫu thiết kế biệt thự hiện đại này tương đối thoáng, gia chủ dành nhiều diện tích cho phòng ngủ, phòng khách, phòng sinh hoạt chung. Và toàn bộ 3 tầng chỉ có 04 phòng ngủ, phù hợp với gia đình có 3 thế hệ nên mang lại cảm giác rộng rãi, thoáng mát khi các thành viên trong gia đình sinh sống.
Ngày nay, thiết kế biệt thự 3 tầng đang là xu hướng thiết kế biệt thự hiện đại được nhiều người ưa chuộng bởi các lý do như chi phí thiết kế và thi công biệt thự không quá cao, tận dụng được không gian sống, hợp xu hướng và thể hiện được vẻ đẹp năng động, hiện đại, trẻ trung.
Để nhận mẫu nhà đẹp hoặc gửi yêu cầu tư vấn thiết kế nhà, bạn vui lòng điền thông tin trong form tư vấn.
Bạn có thể tham khảo thêm các mẫu biệt thự hiện đại đẹp được Kiến Trúc C&B thiết kế:
>>> Thiết kế biệt thự hiện đại 2 tầng mái Thái – Chương Mỹ, Hà Nội
>>> Thiết kế biệt thự hiện đại 3 tầng mái Thái trẻ trung, năng động
Mẫu biệt thự của gia đình anh Tiến được thiết kế dạng hộp, khối theo phong cách hiện đại. Các tầng đều có hệ ban công đua ra để lấy ánh sáng, không khí cũng tư có diện tích để trồng cây cảnh. Cửa kính được tận dụng tối đa ở các phòng và có diện tích rộng mang ánh sáng và sự sang trọng cho ngôi nhà - đó cũng là nét đặc trưng thường thấy khi xây biệt thự hiện đại.
Biệt thự hiện đại 3 tầng này sử dụng hệ mái Thái cách điệu hình chữ T với màu ghi xanh xám nhẹ nhàng, thanh lịch. Đây cũng là màu sắc chủ đạo của toàn bộ nội ngoại thất biết thự mang đến sự đồng nhất.
Các mẫu biệt thự hiện đại ngày nay thường có khá nhiều không gian ở ban công, lô gia cũng như sân thượng để vui chơi, làm vườn nướng cũng như như trồng cây cảnh... Nó không chỉ mang lại không gian xanh mát cho toàn bộ ngôi nhà mà còn tạo ra tính phong thủy khi thiết kế biệt thự, mang lại nhiều tài lộc, vượng khí và vận may cho gia chủ.
Với mẫu biệt thự 3 tầng này, ngoài 2 sân thượng khá lớn ở tầng 3, thì các tầng đều có ban công đua ra để đặt cây cảnh, xung quanh ngôi nhà cũng được bố trí các luống hoa tạo nên một không gian với nhiều màu sắc và thoáng mát.
Đặc biệt, phía sau biệt thự được thiết kế bể bơi hình giọt nước rất đẹp mắt, có khoảng không đặt giường tắm nắng và bàn cà phê. Đây sẽ là không gian để gia chủ thư giãn, nghỉ ngơi, vận động cơ thể sau mỗi ngày làm việc vất vả.
Biệt thự xây 2 cổng chính và cổng phụ đều có mái che, một cổng dành cho ô tô và 1 cổng dành cho việc đi lại, ra vào tiện lợi hơn. Đây cũng là thiết kế mới mà Kiến Trúc C&B muốn sử dụng cho các mẫu thiết kế biệt thự hiện đại của khách hàng.




Đây là một trong những mẫu thiết kế biệt thự đơn lập được thiết kế bởi Kiến Trúc C&B (Nếu bạn chưa phân biệt được biệt thự đơn lập và song lập, có thể tham khảo thêm Tại đây)
Ngoài mục đích để ở, mẫu biệt thự này cũng thích hợp với việc cho thuê để nghỉ dưỡng trong các resort. Vào các dịp cuối tuần hoặc nghỉ lễ, cả gia đình có thể thuê biệt thự để nghỉ ngơi và sum họp với nhau.
Hiện nay thiết kế biệt thự kết hợp cho thuê hoặc thiết kế nhà phố kinh doanh cũng khá phổ biến, vừa giúp gia chủ có thể ở, vừa giúp tăng thêm thu nhập hấp dẫn. Bạn có thể tham khảo thêm các mẫu nhà phố đẹp kết hợp cho thuê của chúng tôi tại link sau: /top-10-mau-thiet-ke-nha-pho-kinh-doanh-an-tuong-nam-2023/
Trên đây là một trong những mẫu thiết kế biệt thự 3 tầng đẹp theo phong cách hiện đại. Để nhận các mẫu nhà đẹp khác như thiết kế nhà phố, thiết kế lâu đài, thiết kế biệt thự tân cổ điển, thiết kế khách sạn, bạn có thể liên hệ trực tiếp với chúng tôi qua các kênh thông tin sau đây:
Thông tin và nội dung bạn gửi cho chúng tôi càng cụ thể, nội dung tư vấn cho bạn càng tối ưu và chi tiết.