x
KHẢO SÁT VÀ TƯ VẤN MIỄN PHÍ
KHẢO SÁT VÀ TƯ VẤN MIỄN PHÍ

Hãy để lại thông tin dưới đây để nhận được khảo sát trực tiếp và tư vấn miễn phí từ 

Kiến trúc - Nội thất C&B

Hay phone_cal

Biệt Thự Tân Cổ Điển 3 Tầng Mái Nhật

0
52
Tổng quan
Chủ đầu tư
Chị Huyền
Địa điểm
La Phù
Số tầng
3 tầng
Đơn vị thực hiện
Cty kiến trúc nội thất C&B
Ưu điểm ngôi nhà

 

 Biệt Thự Tân Cổ Điển 3 Tầng Mái Nhật – Không Gian Sống Đẳng Cấp & Tinh Tế

      Mẫu biệt thự tân cổ điển 3 tầng mái Nhật là sự giao thoa hoàn hảo giữa vẻ đẹp cổ điển sang trọng và tinh thần sống hiện đại. Tông trắng chủ đạo kết hợp hệ cột lớn đăng đối, ban công sắt mỹ thuật uốn lượn tạo nên một tổng thể vừa bề thế vừa thanh lịch.

Không chỉ gây ấn tượng về mặt thẩm mỹ, công trình còn được tối ưu công năng, đáp ứng trọn vẹn nhu cầu sinh hoạt của gia đình nhiều thế hệ.

Điểm nhấn kiến trúc nổi bật

  • Phong cách tân cổ điển chuẩn châu Âu: Hệ cột trụ vững chắc, phào chỉ tinh xảo tạo nên vẻ đẹp bề thế, đẳng cấp.
  • Ban công sắt mỹ thuật: Hoa văn uốn lượn mềm mại, tăng tính nghệ thuật và chiều sâu cho mặt tiền.
  • Mái Nhật thanh thoát: Thiết kế mái dốc nhẹ, giúp chống nóng, thoát nước tốt và nâng tầm thẩm mỹ tổng thể.
  • Cửa gỗ kết hợp kính cao cấp: Vừa đảm bảo độ bền, vừa tận dụng tối đa ánh sáng tự nhiên.
  • Không gian xanh hài hòa: Cây cảnh và tiểu cảnh được bố trí hợp lý, mang lại cảm giác thư giãn, gần gũi thiên nhiên.

 

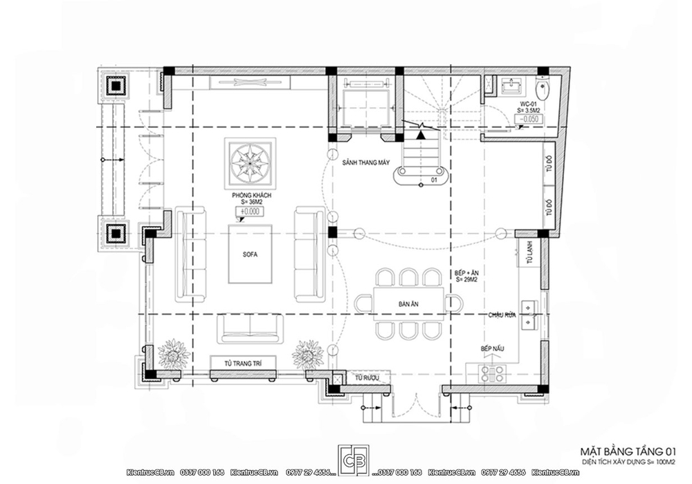
Phân tích công năng chi tiết từng tầng

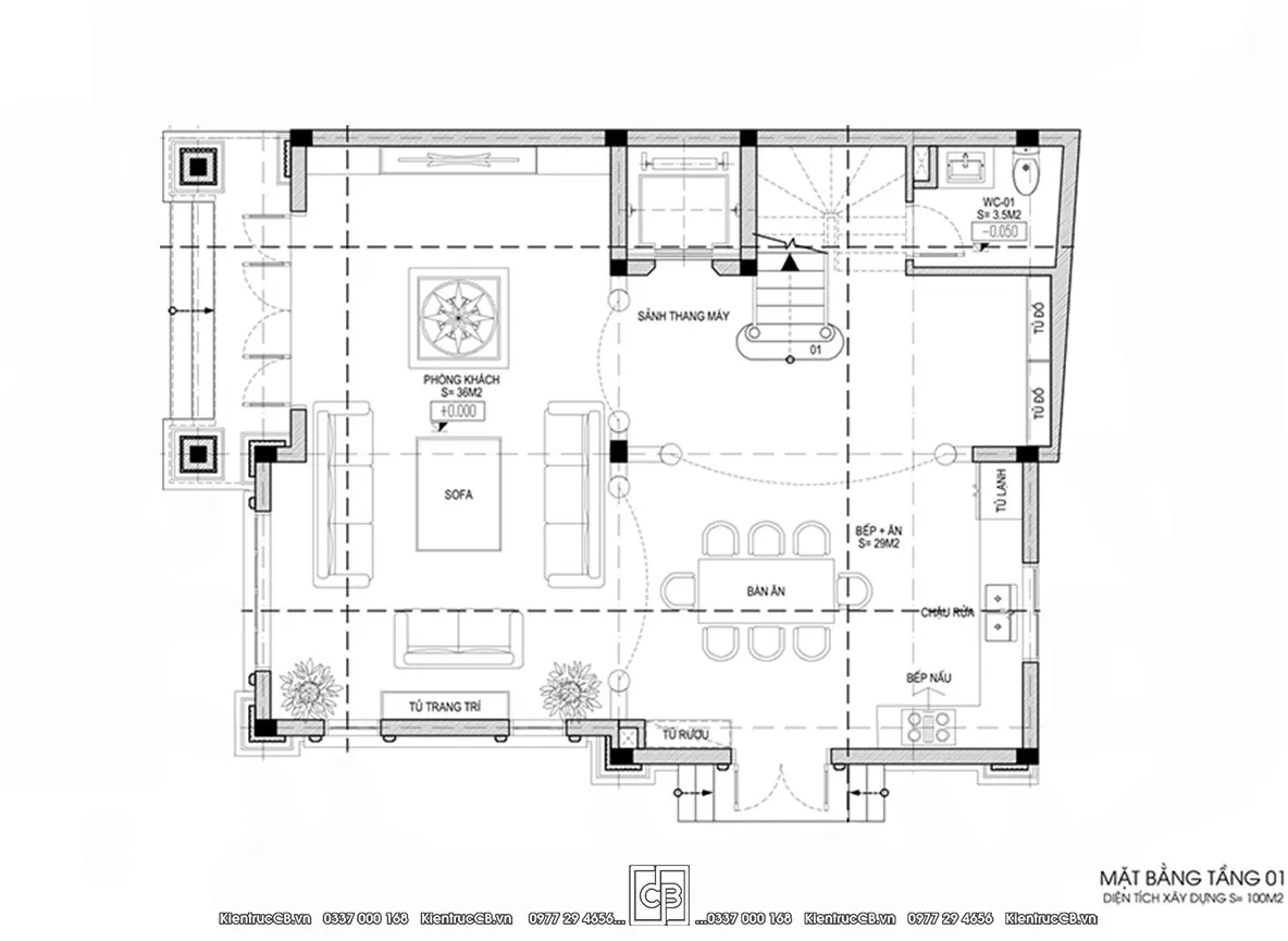
Tầng 1 – Không gian sinh hoạt chung tiện nghi

Tầng 1 được bố trí theo hướng mở, tạo sự liên kết mạch lạc giữa các khu vực:

  • Phòng khách (~36m²): Nằm ngay trung tâm, rộng rãi, sang trọng – là nơi tiếp khách và thể hiện gu thẩm mỹ của gia chủ.
  • Khu bếp + phòng ăn (~29m²): Thiết kế liên thông, tối ưu diện tích và tăng sự kết nối giữa các thành viên.
  • 1 phòng ngủ: Phù hợp cho người lớn tuổi hoặc khách, đảm bảo sự riêng tư và tiện lợi.
  • WC chung: Bố trí kín đáo, thuận tiện sử dụng.
  • Sảnh và giao thông: Kết nối mượt mà giữa các không gian, đảm bảo lưu thông thông thoáng.

=> Tổng thể tầng 1 ưu tiên sự thoáng – tiện – kết nối, tạo nền tảng cho sinh hoạt gia đình.

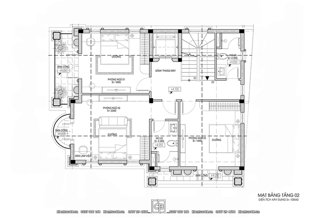
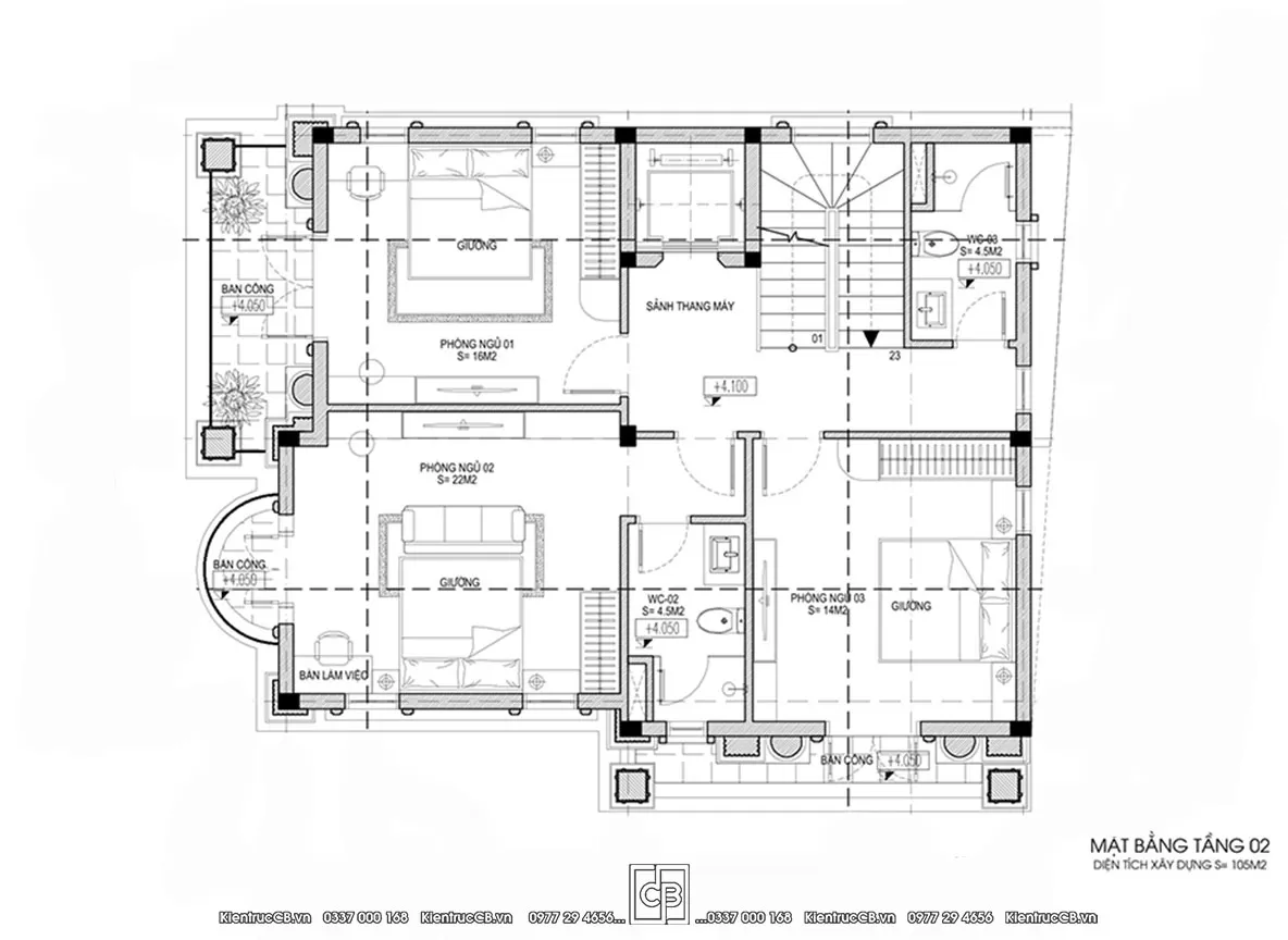
Tầng 2 – Không gian nghỉ ngơi riêng tư

Tầng 2 tập trung vào sự yên tĩnh và thoải mái cho các thành viên:

  • Phòng ngủ master (~22m²): Diện tích lớn, có cửa sổ và ban công riêng, đón ánh sáng tự nhiên.
  • Phòng ngủ 2 (~16m²): Bố trí hợp lý, phù hợp cho con cái hoặc khách.
  • Phòng ngủ 3 (~14m²): Tối ưu diện tích nhưng vẫn đảm bảo thông thoáng.
  • Khu sinh hoạt chung: Là không gian kết nối, thư giãn giữa các thành viên.
  • 2 WC: Phân bổ hợp lý, đảm bảo tiện nghi cho toàn tầng.
  • Ban công: Tăng trải nghiệm sống, tạo điểm thư giãn nhẹ nhàng.

=> Tầng 2 mang lại cảm giác riêng tư – ấm cúng – đầy đủ tiện nghi.

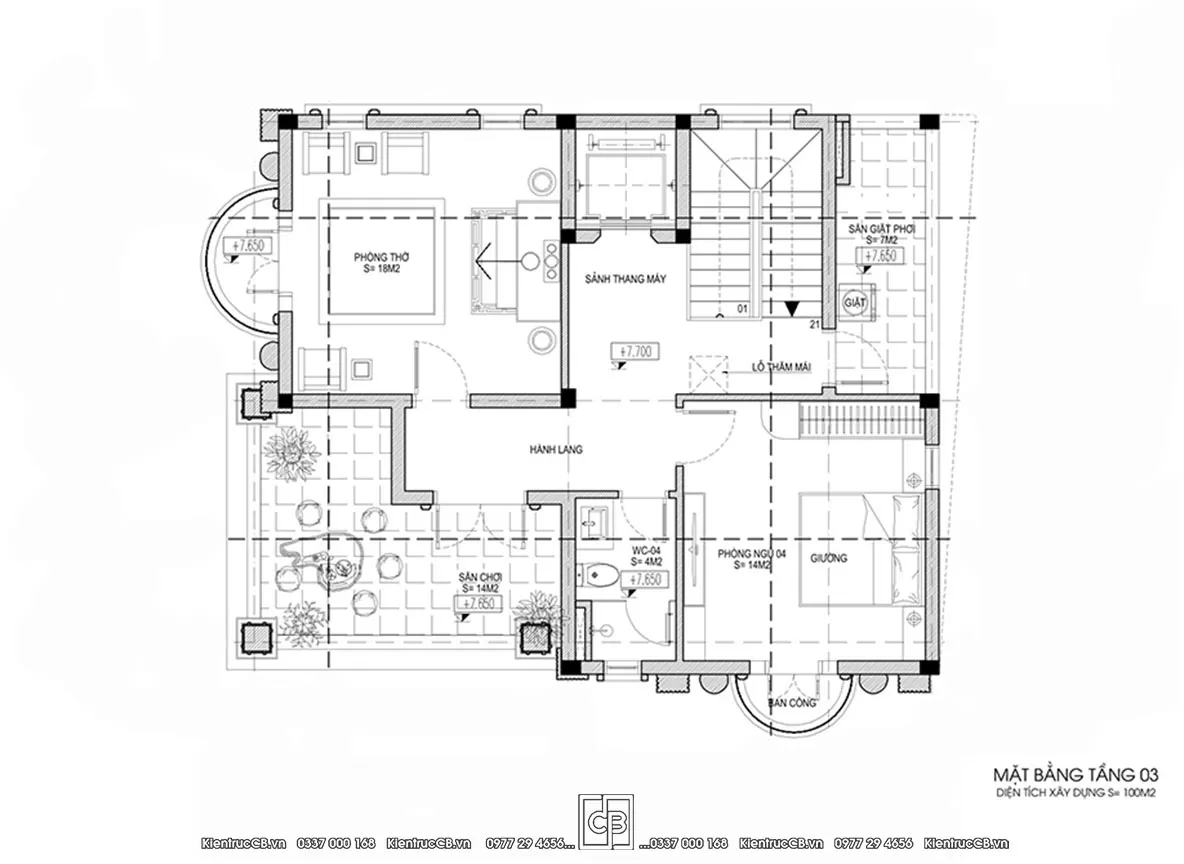
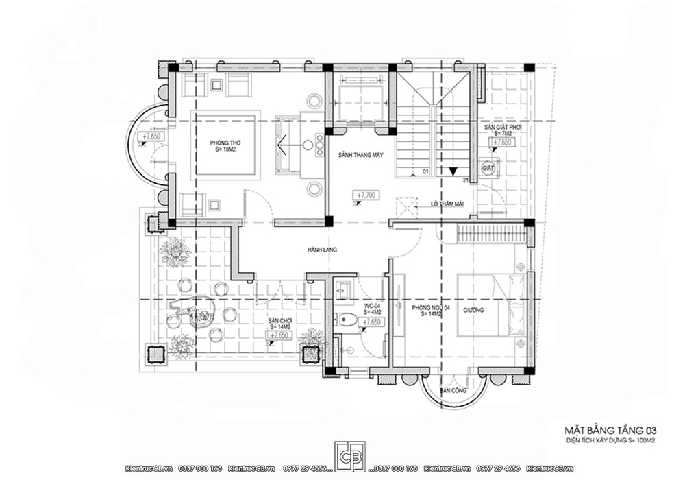
Tầng 3 – Không gian tâm linh & thư giãn

Tầng trên cùng được thiết kế linh hoạt, vừa trang nghiêm vừa thoải mái:

  • Phòng thờ (~18m²): Đặt ở vị trí cao nhất, yên tĩnh, thể hiện sự tôn kính và trang nghiêm.
  • Phòng ngủ phụ (~14m²): Có thể dùng cho khách hoặc người thân.
  • Sân chơi rộng (~14m²): Không gian thư giãn, uống trà, tổ chức tiệc nhỏ ngoài trời.
  • Khu giặt phơi riêng biệt: Tách biệt khu sinh hoạt, đảm bảo thẩm mỹ.
  • Hành lang & thông tầng: Giúp lưu thông không khí, tăng độ thoáng cho toàn bộ ngôi nhà.

=> Tầng 3 là sự kết hợp giữa tâm linh – thư giãn – tiện ích, nâng tầm chất lượng sống.

Giá trị mà thiết kế mang lại

  • Khẳng định đẳng cấp và gu thẩm mỹ của gia chủ
  • Công năng tối ưu cho gia đình đông thành viên
  • Không gian sống xanh, thoáng đãng
  • Giá trị bền vững theo thời gian, không lỗi mốt

Mẫu biệt thự tân cổ điển 3 tầng mái Nhật không chỉ là nơi ở mà còn là biểu tượng của phong cách sống tinh tế và thành đạt. Từ kiến trúc đến công năng đều được chăm chút kỹ lưỡng, mang đến trải nghiệm sống hoàn hảo cho gia chủ.

HÃY GỌI CHO CHÚNG TÔI ĐỂ LÊN Ý TƯỞNG CHO NGÔI NHÀ BẠN NHÉ !

- HOTLINE: 0977 29 4656 - 0337 000 168

- WEB: https://kientruccb.vn/

- FACEBOOK:https://web.facebook.com/KienTrucCB?locale=vi_VN 

THAM KHẢO THÊM 1 SỐ MẪU BIÊT THỰ TÂN CỔ NHẸ NHÀNG - SANG TRỌNG:

https://kientruccb.vn/biet-thu-tan-co-dep-dien-tich-250m2-bt092104-dpj11430.html

https://kientruccb.vn/mau-thiet-ke-biet-thu-3-tang-tan-co-dien-an-tuong-thanh-lich-dpj11767.html

 

 

 

Kiến trúc C&B - Tinh tế đến từng chi tiết
1
Thiết kế sáng tạo, chuyên nghiệp
Uy tín, trách nhiệm, đảm bảo khách hàng hài lòng 100%
2
Kinh nghiệm lâu năm
Đội ngũ kiến trúc sư chuyên nghiệp, nhiệt tình, sáng tạo
3
Hồ sơ đầy đủ
Bản vẽ rõ ràng và đầy đủ các hạng mục, dễ thi công
Đánh giá - Bình luận
0 bình luận, đánh giá về Biệt Thự Tân Cổ Điển 3 Tầng Mái Nhật
Nhấn vào đây để đánh giá
Thông tin người gửi
Liên hệ tư vấn
Liên hệ tư vấn

Chuyên viên đã sẵn sàng hỗ trợ!

Tư vấn hoàn toàn miễn phí

Gửi yêu cầu tư vấn miễn phí
Tìm kiếm nhanh
Nội dung cần tư vấn

Thông tin và nội dung bạn gửi cho chúng tôi càng cụ thể, nội dung tư vấn cho bạn càng tối ưu và chi tiết.

Đính kèm
Chưa chọn tệp nào
Chúng tôi có thể hỗ trợ bạn!
0.28706 sec| 1240.516 kb