Chuyên viên đã sẵn sàng hỗ trợ!
Tư vấn hoàn toàn miễn phí
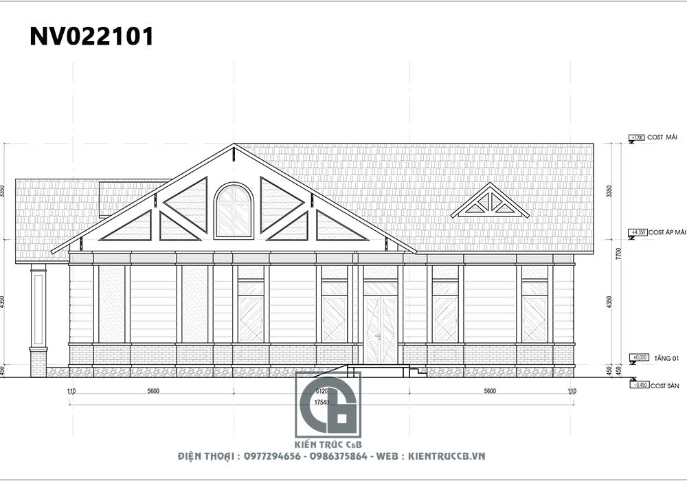
Mẫu thiết kế nhà vườn 1 tầng tân cổ điển 200m2 (MSP: NV022101) của gia đình anh Mạnh được Kiến Trúc Sư của Kiến Trúc C&B hoàn thành trước dịp Tết Nguyên Đán 2021 trong sự hân hoan và hài lòng của gia chủ.
Ngày nay, nhu cầu thiết kế nhà vườn đẹp 1 tầng đang trở thành xu hướng thiết kế nhà thịnh hành hiện nay, phù hợp với những gia chủ có đất rộng ở nông thôn và mong muốn có một ngôi nhà đầy đủ tiện nghi với một không gian sống thực sự thoải mái và thanh tịnh.
Gia đình anh Mạnh hiểu và nắm bắt được xu hướng đó nên đã tìm đến Kiến Trúc C&B để thiết kế một mẫu nhà 1 tầng theo kiến trúc tân cổ điển cho ông bà ở quê an dưỡng tuổi già.

Mẫu nhà đẹp a Mạnh thích là kiểu biệt thự mái Thái 1 tầng với những đường nét kiến trúc đơn giản nhưng rất tinh tế và sang trọng. Bao phủ ngôi nhà là màu sơn trắng pha xanh da trời nhạt rất thanh tao, hiện đại và không hề bị lỗi thời. Kết hợp cùng những chi tiết gờ phào trang trí ở cột cũng như những chiếc cửa sổ mái đẹp mắt, ngôi nhà càng trở nên khác biệt, đẹp một cách giản dị mà vẫn để lại dấu ấn khó quên.

Phần khối đế của ngôi nhà được ốp gạch thẻ màu nâu đen giúp tổng thể ngôi nhà thêm vững chãi, sang trọng và cũng giúp kiến trúc ngôi nhà thêm thanh thoát hơn, sang trọng hơn.
Phần mái ngói thiết kế kiểu mái Thái có độ dốc lý tưởng, có tác dụng chắn nắng, mưa cũng như làm mát hiệu quả cho không gian bên trong. Sảnh mặt tiền và phần mái bên hông nhà còn được trang trí thêm các conso màu nâu để tạo điểm nhấn đẹp mắt.
Kiến Trúc C&B hiện có rất nhiều mẫu thiêt kế nhà vườn 1 tầng đẹp, bạn có thể tham khảo thêm trong bài: Tổng hợp các mẫu thiết kế nhà vườn đẹp khiến chủ nhà thích mê
Với diện tích thiết kế 200m2, gia đình anh Mạnh muốn không gian bên trong gồm 4 phòng ngủ, phòng khách, phòng bếp, phòng thờ, khu vực sân phơi, để xe... Các không gian cần phải bố trí hợp lý, tiện lợi sinh hoạt vì gia đình có người cao tuổi. Hiểu được điều này Kiến Trúc Sư C&B đã lên phương án bố trí công năng như sau:

Mặt bằng công năng bên trong
Sảnh chính ngôi nhà đi vào là phòng khách chính diện với diện tích khoảng 50m2, bên tay phải là không gian thờ cúng, có cửa riêng với diện tích 15m2, bên trái là một phòng ngủ khép kín diện tích 15m2. Đi sâu vào giữa là khu vực phòng ăn và phòng bếp. Đối diện phòng bếp là chính giữa phòng khách và một phòng ngủ. Cuối khu nhà được bố trí thêm 2 phòng ngủ kết hợp với khu vực WC, giặt phơi ở cuối nhà.
Để không gian bên trong thoáng, kiến trúc sư bố trí khá nhiều cửa sổ, cửa sảnh phụ cũng như các cửa sổ mái để lấy ánh sáng cho không gian bên trong. Với các mẫu nhà vườn 1 tầng mà Kiến Trúc C&B thiết kế, không gian bên trong luôn được tối ưu, bố trí các phòng chức năng phù hợp với nhu cầu của gia chủ, đảm bảo sinh hoạt. Bạn có thể tham khảo thêm công năng trong thiết kế nhà 1 tầng 160m2 này: Thiết kế nhà vườn 1 tầng mái Thái – không gian nghỉ dưỡng lý tưởng

Mặt đứng chính diện ngôi nhà

Mặt đứng bên
Trên đây là mẫu thiết kế nhà vườn 200m2 được đội ngũ kiến trúc C&B thiết kế đơn giản, phù hợp với nhu cầu của gia chủ, chi phí hợp lí phù hợp với mọi đối tượng khách hàng. Nếu bạn cũng đang dự định thiết kế biệt thự vườn 1 tầng, hãy liên hệ với chúng tôi qua Hotline, Email, gửi tin nhắn qua zalo, Fanpage Kiến Trúc Nội Thất C&B hoặc tới trực tiếp văn phòng của chúng tôi. Với kinh nghiệm hơn 10 năm trong ngành thiết kế biệt thự, thiết kế nhà ống, khách sạn, nhà vườn, thiết kế lâu đài... cùng đội ngũ kiến trúc sư giàu chuyên môn, tận tình, chúng tôi tin tưởng sẽ mang tới cho khách hàng những mẫu thiết kế nhà đẹp và ấn tượng nhất, thể hiện dấu ấn riêng của gia chủ.
Thông tin và nội dung bạn gửi cho chúng tôi càng cụ thể, nội dung tư vấn cho bạn càng tối ưu và chi tiết.