Chuyên viên đã sẵn sàng hỗ trợ!
Tư vấn hoàn toàn miễn phí
Mẫu thiết kế nhà vườn 2 tầng mái Nhật kết hợp hoàn hảo cùng tiểu cảnh sân vườn, khá đơn giản nhưng rất đẹp mắt, mang lại cảm giác gần gũi và thân thuộc cho các thành viên khi sống tại đây. Cùng Kiến Trúc C&B tìm hiểu kỹ hơn về ngôi nhà nhé.

Mẫu nhà vườn 2 tầng của chủ đầu tư cô Lan được kiến trúc sư của Kiến Trúc C&B thiết kế với phong cách hiện đại nhưng mang những đường nét kiến trúc cổ xưa rất thân thiện, gần gũi. Vì cũng đã khá nhiều tuổi nên gia đình cô Lan mong muốn có một ngôi nhà với khuôn viên sân vườn rộng rãi để có thể tận hưởng không khí trong lành của thiên nhiên, cây cảnh.

Vì thế, diện tích thiết kế nhà vườn chỉ có hơn 80m2, còn lại gần 200m2 là dành cho sân vườn, tiểu cảnh. Các không gian sân vườn bao gồm sân chơi/gara ô tô, hồ sen nhân tạo, lầu vọng cảnh, khu vực sân vườn trồng rau, trồng cây cổ thụ... Gia chủ hoàn toàn có không gian để thư giãn, nghỉ dưỡng, có không gian để thỏa mãn sở thích trồng rau, làm vườn hay câu cá. Đặc biệt là khi gia đình có việc như giỗ tết, con cháu cũng có thể quây quần bên nhau cùng vui chơi rất lý tưởng. Nếu bạn cũng thích những mẫu nhà vườn đẹp, có thể tham khảo thêm trong bài: Tổng hợp các mẫu thiết kế nhà vườn đẹp – xu hướng kiến trúc 2020

Nhà vườn 2 tầng được thiết kế với hệ mái Nhật màu đỏ truyền thống kết hợp ăn í và hài hòa với màu trắng của sơn ngoại thất. Khu vực tầng 1 được thiết kế cách điệu với các conso trang trí cùng mái giả ở cửa sảnh chính và cửa sổ tạo cảm giác thân thuộc, gần gũi. (Xem thêm mẫu nhà vườn mái Nhật Tại đây).
Toàn bộ cửa chính và cửa sổ của biệt thự vườn được làm từ chất liệu gỗ kết hợp với kính tạo điểm nhấn đẹp mắt. Tầng 2 được thiết kế thêm logia khá rộng và thoáng, đừng từ trong nhà gia chủ cũng có thể ngắm khung cản thiên nhiên thơ mộng bên ngoài.

Hiện nay những mẫu thiết kế nhà vườn đẹp 2 tầng rất được ưa chuộng và nhiều gia chủ lựa chọn bởi không gian thoáng, rộng, phong cách hoài cổ mang đến cho gia chủ một không gian sống lý tưởng. Nếu bạn cũng dự định xây nhà vườn, có thể tham khảo nhiều mẫu nhà đẹp tại link sau: /du-an/nha-vuon/
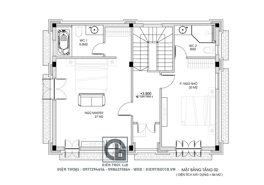
Với diện tích mỗi sàn khoảng 84m2, mẫu nhà vườn của gia đình cô Lan được bố trí công năng như sau:
Mặt bằng tầng 1: Phòng khách + phòng bếp có diện tích 64m, phòng ngủ cho người giúp việc 7m2, Wc nằm dưới gầm cầu thang có diện tích 3m2.
Mặt bằng tầng 2: 02 phòng ngủ khép kín.

Mặt bằng tầng 1 được dành trọn không gian cho khu vực phòng khách và phòng bếp + phòng ăn. Ngoài ra để tiết kiệm diện tích thì WC được bố trí ở dưới gầm cầu thang cũng rất hợp lý.

Tầng 2 bố trí 2 phòng ngủ với 1 phòng ngủ Master rộng. Cả 2 phòng đều bố trí WC khép kín rất tiện lợi trong sinh hoạt.

Bản vẽ mặt đứng bên của ngôi nhà

Mặt đứng sảnh chính của ngôi nhà
Xu hướng thiết kế nhà trong tương lai là những mẫu nhà đẹp đơn giản, kết hợp hài hòa cùng không gian sân vườn để gia chủ có một không gian yên tĩnh, thanh bình nghỉ dưỡng cũng như quây quần bên gia đình vào những dịp cuối tuần. (Tham khảo thêm: Vì sao mẫu nhà vườn 1 tầng đang được nhiều người ưa chuộng?)
Xem thêm: Mẫu biệt thự vườn đẹp 1 tầng
Tiến độ thi công nhà vườn đẹp 2 tầng tháng 12/2020:

Hiện trạng khuôn viên xây dựng của gia đình cô Lan

Khu vực hồ nhân tạo đã được tạo hình trước trong khuôn viên sân vườn

Phần móng nhà đang được thợ thi công đan sắt, chuẩn bị đổ móng

Gia chủ đã tiến hành xây tường bao xung quanh ngôi nhà trước khi xây dựng bên trong

Góc nhìn từ trong ra ngoài

KTS thiết kế móng băng cho mẫu nhà vườn đẹp này.

Kiến Trúc C&B với hơn 10 năm kinh nghiệm thiết kế biệt thự, thiết kế nhà ống, thiết kế lâu đài, thiết kế khách sạn, thiết kế nhà ở..., chúng tôi sở hữu đội ngũ kiến trúc sư nhiệt tình, giàu kinh nghiệm, chu đáo và tận tâm với khách hàng. Suốt 10 năm qua, chúng tôi mang đến cho khách hàng hàng trăm công trình nhà ở đẹp, chất lượng nhận được sự tin tưởng và hài lòng của khách hàng.
Đến với chúng tôi, khách hàng không chỉ được tư vấn thiết kế nhà với chi phí tối ưu nhất mà còn được tư vấn phong thủy, hỗ trợ giám sát thi công và giải đáp mọi thắc mắc trong suốt quá trình thi công hoàn thiện ngôi nhà. Hãy liên hệ ngay với Kiến Trúc C&B qua hotline, email, zalo, Fanpage Kiến Trúc Nội Thất C&B để được cập nhật những mẫu nhà đẹp nhất và tư vấn thiết kế nhà miễn phí.
Thông tin và nội dung bạn gửi cho chúng tôi càng cụ thể, nội dung tư vấn cho bạn càng tối ưu và chi tiết.