Chuyên viên đã sẵn sàng hỗ trợ!
Tư vấn hoàn toàn miễn phí
Mẫu thiết kế biệt thự 3 tầng phong cách tân cổ điển dưới đây nhận được sự hài lòng và ưng ý của gia chủ cũng như lời khen của rất nhiều khách hàng của Kiến Trúc C&B. Sự sang trọng, quý phái toát lên ngay từ những đường nét kiến trúc bên ngoài.

Để có một ngôi nhà đẹp thì ngoài những đường nét kiến trúc của ngoại thất, mái cũng là một phần quan trọng tạo nên dáng vẻ uy nghi hay sự sang trọng của ngôi nhà. Mẫu biệt thự 3 tầng này đã chinh phục được rất nhiều khách hàng khó tính của chúng tôi bởi hệ mái hộp cổ điển mang phong cách Pháp cổ kính. Nếu bạn cũng thích kiểu mái này, hãy tham khảo thêm các mẫu biệt thự đẹp như:
>>> Thiết kế biệt thự tân cổ điển mái hộp kiểu Pháp nguy nga và cổ kính
>>> Thiết kế biệt thự tân cổ điển đẹp lung linh với mái hộp 4 tầng
Ngay từ khi chạm phải mặt tiền biệt thự, bạn sẽ bị thu hút bởi khu vực tiền sảnh rất ấn tượng. Nó đến từ màu vàng mang phong cách hoàng gia của mảng tường được ốp gạch ceramic vân đá. Đồng thời hệ cột kiểu Ionic dáng cổ điển sừng sững ngay trước mặt. Những chi tiết hoa văn trang trí ở phù điêu, đầu cột cũng như các đường gờ phào đều thể hiện tự tinh tế, tỉ mỉ và khéo léo của người kỹ sư.

Chưa hết, lên tầng 2 cũng có hệ cột tròn cân xứng kéo dài hết tầng 3. Kiểu dáng thanh mảnh kết hợp cùng mái vòm mềm mại, uyển chuyển tạo nên nét đẹp hài hòa và cổ kính cho ngôi nhà. Toàn bộ cửa sổ của biệt thự cũng được bố trí cân đối và hài hòa. Riêng mặt tiền, cửa sổ kết hợp vuông và vòm với ban công lan sắt khá ấn tượng. Khi nhìn vào đó, người nhìn sẽ luôn có cảm giác thật mãn nhãn và dễ chịu.

Phối cảnh phương án 2 để gia chủ lựa chọn
Thiết kế biệt thự tân cổ điển mang lại vẻ đẹp lâu dài, không bị lỗi thời, nó cũng là xu hướng được nhiều chủ đầu tư lựa chọn hiện nay. Tuy nhiên, nếu bạn thích phong cách hiện đại, có thể tham khảo mẫu: Mẫu thiết kế biệt thự 3 tầng phong cách hiện đại, năng độnghoặc các mẫu biệt thự 3 tầng đẹp khác Tại đây.

Phối cảnh tổng thể của biệt thự
Biệt thự được thiết kế gồm 3 tầng chính và 1 tầng tum.
Mặt bằng Tầng 1: Phòng khách 43m2, phòng bếp + ăn 40m2, sảnh thang máy và thang bộ, WC
Mặt bằng Tầng 2: 02 phòng ngủ khép kín với phòng thay đồ, phòng tắm.
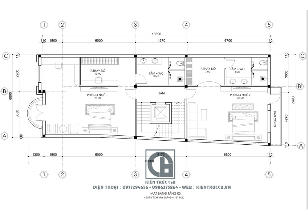
Mặt bằng Tầng 3: 02 phòng ngủ khép kín với phòng thay đồ, phòng tắm.
Mặt bằng Tầng tum: Phòng thờ, phòng giặt phơi, sân chơi.
Mặt bằng công năng tầng 1

Mặt bằng công năng tầng 2

Mặt bằng công năng tầng 3

Mặt bằng công năng tầng 4
Trên đây là mẫu biệt thự đẹp được Kiến Trúc C&B thiết kế theo phong cách tân cổ điển. Ngoài thiết kế biệt thự, chúng tôi còn chuyên thiết kế nhà ống, thiết kế nhà vườn đẹp, thiết kế khách sạn, thiết kế nhà phố, thiết kế nội thất biệt thự, chung cư... Với đội ngũ kiến trúc sư có hơn 10 năm kinh nghiệm trong ngành, chúng tôi tin tưởng sẽ đem đến cho khách hàng những ngôi nhà đẹp, mang đậm dấu ấn riêng của từng gia chủ.
Để nhận mẫu nhà đẹp và tư vấn thiết kế nhà miễn phí, bạn vui lòng để lại số điện thoại, gọi tới Hotline, gửi tin nhắn qua zalo, Fanpage Kiến Trúc Nội Thất C&B hoặc tới trực tiếp văn phòng của chúng tôi.
Thông tin và nội dung bạn gửi cho chúng tôi càng cụ thể, nội dung tư vấn cho bạn càng tối ưu và chi tiết.
