Chuyên viên đã sẵn sàng hỗ trợ!
Tư vấn hoàn toàn miễn phí
Mẫu thiết kế biệt thự 3 tầng của CĐT anh Phương mang phong cách tân cổ điển ấn tượng, sang trọng và quý phái, mang phong cách hoàng gia. Cùng Kiến Trúc C&B chiêm ngưỡng vẻ đẹp kiến trúc và công năng của ngôi nhà này bạn nhé.
Thiết kế nhà theo phong cách tân cổ điển là lựa chọn hoàn hảo với những gia chủ có "gu" thẩm mỹ, có khả năng tài chính cũng như mong muốn thể hiện được quyền lực, địa vị của mình. Chính sự cầu kỳ và chỉn chu trong thiết kế đã phần nào toát lên được sự sang trọng và bề thế của ngôi nhà cũng như tính thẩm mỹ tuyệt đối trong kiến trúc biệt thự.

Mẫu thiết kế biệt thự 3 tầng của CĐT anh Phương tại Ninh Bình được thiết kế theo phong cách tân cổ điển ấn tượng và độc đáo. Ngay từ cái nhìn đầu tiên, chủ nhà và cả những vị khách khó tính cũng đều gật gù ngưỡng mộ bởi nét đẹp vô cùng sang trọng. Những chi tiết hoa văn trang trí đều rất tinh xảo, mang nét đặc trưng của phong cách kiến trúc tân cổ.
Tính đối xứng hài hòa cũng được thể hiện rất rõ nét qua ngoại thất. Nếu bạn cũng là người yêu thích những mẫu nhà đẹp theo phong cách này có thể xem thêm các mẫu biệt thự tân cổ điển Tại đây. Nếu bạn là người yêu thích các mẫu biệt thự hiện đại, có thể tham khảo thêm Mẫu thiết kế biệt thự 3 tầng phong cách hiện đại, năng động.
Kiến Trúc sư của Kiến Trúc C&B đã đưa ra 2 phương án phối cảnh 3D để gia chủ lựa chọn. Tuy nhiên hai phương án này cũng chỉ khác nhau ở phần cửa sổ mái và mái của sảnh.

Tiền sảnh của mẫu biệt thự 3 tầng được thiết kế cân xứng ở 2 mặt tiền. Để tạo sự khác biệt và điểm nhấn, một sảnh thiết kế mái bằng làm ban công cho tầng trên, một sảnh thiết kế mái Thái với cửa sổ mái tròn rất đẹp mắt.
Hệ trụ cột sảnh được thiết kế vuông, chắn chắn với các chi tiết trang trí đầu cột mang đặc trưng phong cách tân cổ kết hợp cùng đèn trang trí mang tới sự vững chãi, lung linh cho ngôi nhà. Xung quanh ngôi nhà cũng được bố trí các hệ cột vuông với đường gờ, phào chỉ, hoa văn tinh tế, tỉ mỉ làm toát lên vẻ đẹp kiêu sa, quyền quý của ngôi nhà. Kiến trúc C&B cũng có rất nhiều thiết kế biệt thự đẹp theo phong cách này, bạn có thể tham khảo thêm như: Thiết kế biệt thự tân cổ điển đẹp lung linh với mái hộp 4 tầng
Hệ cửa sổ được làm bằng khung gỗ, cửa kính để lấy ánh sáng tối đa cho bên trong và kết hợp ăn ý với màu sơn trắng của ngoại thất. Cửa sổ cũng được bố trí cân đối và hài hòa với cửa hình chữ nhật ở tầng 1, 2, cửa ban công và cửa sổ mái vòm ở tầng 3. Đây là niêm luật cần phải tuân theo khi thiết kế biệt thự tân cổ điển mà bất cứ kiến trúc sư nào cũng cần phải nắm được.
Hiện nay, thiết kế biệt thự mái Thái được nhiều gia chủ ưa chuộng, kiểu mái Thái cũng được sử dụng khi thiết kế nhà ống hiện đại, thiết kế nhà vườn đẹp... Nếu bạn cũng dự định thiết kế nhà sử dụng mái Thái có thể tham khảo thêm những mẫu nhà đẹp dưới đây:
>>> Thiết kế biệt thự mái Thái 2 tầng 1 tum – CĐT Anh Dương -Hưng Yên
>>> Ngất ngây mẫu biệt thự tân cổ 3 tầng mái Thái
>>> Mẫu thiết kế nhà vườn 1 tầng đẹp như tranh – Chương Mỹ, Hà Nội
Mẫu biệt thự này sử dụng kiểu mái Thái vuông góc màu ghi xanh rất hiện đại, trẻ trung mà không hề bị lỗi thời. Hơn nữa, hệ mái Thái còn được lồng ghép phá cách rất ấn tượng, đẹp mắt.
Khu vực tầng 3 của biệt thự còn được thiết kế sân vườn để gia chủ đặt bàn trà, làm vườn treo hoặc trồng rau, phơi đồ cũng rất hợp lý.
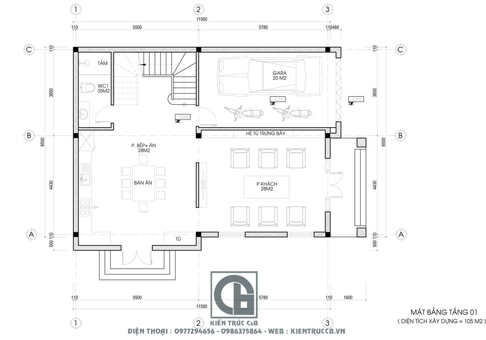
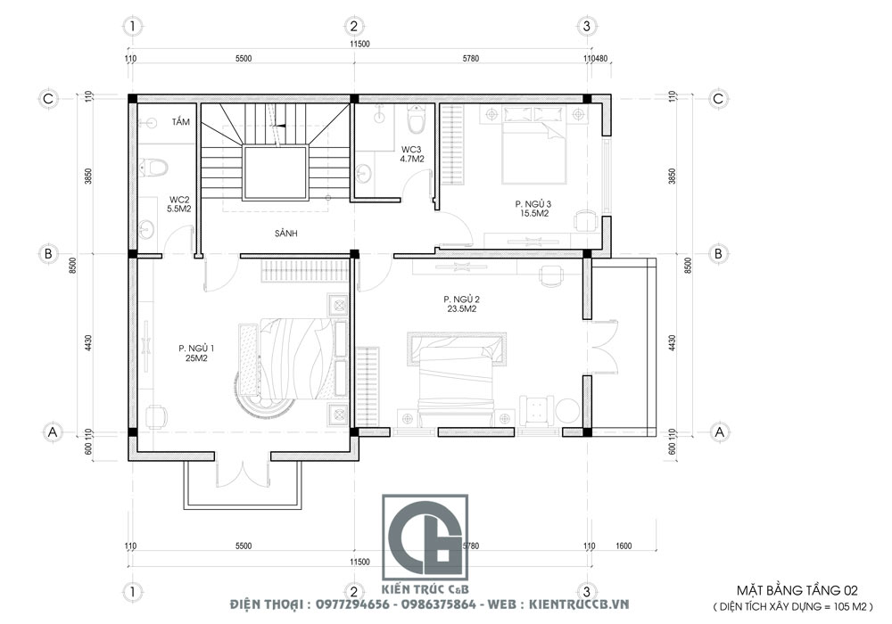
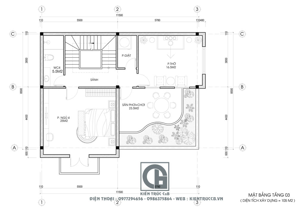
Tổng thể diện tích của ngôi nhà khoảng 200m2, trong đó diện tích lòng nhà khoảng 105m2/sàn. Với diện tích như vậy, công năng các tầng được bố trí như sau:
Mặt bằng tầng 1: Gara ô tô có diện tích khoảng 20m2, Phòng khách 28m2, Phòng bếp + ăn 28m2
Mặt bằng tầng 2: 01 phòng ngủ Master, 02 phòng ngủ WC chung.
Mặt bằng tầng 3: Phòng thờ 16m2, Phòng ngủ 25m2, phòng giặt phơi, sân chơi.

Mặt bằng tổng thể ngôi nhà




Trên đây là một trong những mẫu biệt thự 3 tầng đẹp mà đội ngũ Kiến Trúc Sư của Kiến Trúc C&B đã dành rất nhiều tâm huyết và công sức để sáng tạo lên. Nếu bạn cũng đang dự định thiết kế biệt thự hãy liên hệ ngay với Kiến Trúc C&B để nhận mẫu nhà đẹp và tư vấn thiết kế nhà miễn phí.
Chúng tôi sở hữu đội ngũ kiến trúc sư nhiệt tình, tận tâm và chu đáo, hơn 10 năm kinh nghiệm trong ngành kiến trúc - nội thất, chúng tôi hân hạnh mang đến cho khách hàng rất nhiều công trình chất lượng, mang đậm dấu ấn và phong cách của từng gia chủ.
Tiến độ thi công ngôi nhà tháng 10/2020:




Tiến độ thi công ngôi nhà tháng 4 năm 2021:

Tiến độ thi công đầu tháng 4/2021
Mẫu biệt thự 3 tầng tân cổ điển nhà Anh Phương đã dần đi vào hoàn thiện cơ bản về ốp, trát cả bên trong lẫn bên ngoài và đang chuyển dần sang bước sơn ngoại thất cho ngôi nhà. Chúng ta cũng thấy được các nét hoa văn của mẫu biệt thự được gia chủ tuân theo như mẫu 3D của bản vẽ.
Tiến độ mẫu biệt thự tân cổ điển vào những ngày cuối tháng 6 năm 2021.

Mẫu biệt thự 3 tầng theo phong cách tân cổ điển nhà anh Phương đã hoàn thiện và có thể vào sử dụng được rồi. Chúng ta có thể thấy ngôi nhà hoàn thiện giống đến hơn 90% so với bản phối cảnh 3D. Vẻ đẹp sang trọng trọng, tinh tế với tone màu trắng trong thiết kế biệt thự tân cổ điển.
Nếu các bạn quan tâm đến các mẫu biệt thự tân cổ điện hoặc các mẫu nhà đẹp khác hãy liên hệ với chúng tôi qua Hotline, gửi qua Email, nhắn tin qua Zalo hoặc nhắn tin vào fanpage Kiến Trúc Nội Thất C&B để được đội ngũ nhân viên hơn 10 năm kinh nghiệm tư vấn miễn phí cho bạn. Hoặc các bạn có thể điền thông tin vào form tư vấn. để được tư vấn thiết kế nhanh nhất.
Thông tin và nội dung bạn gửi cho chúng tôi càng cụ thể, nội dung tư vấn cho bạn càng tối ưu và chi tiết.