Chuyên viên đã sẵn sàng hỗ trợ!
Tư vấn hoàn toàn miễn phí
Thiết kế biệt thự mái Thái 2 tầng đang trở thành xu hướng thiết kế nhà được nhiều người yêu thích. Nó mang đến vẻ đẹp giản dị, tinh tế mà vẫn đảm bảo công năng hiệu quả cho ngôi nhà.
Cùng Kiến Trúc C&B tham khảo mẫu thiết kế biệt thự 2 tầng 1 tum của chủ đầu tư anh Dương, công trình được xây dựng tại Hưng Yên.
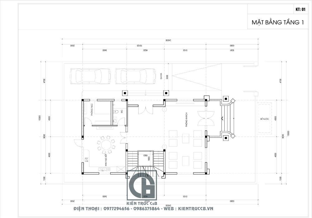
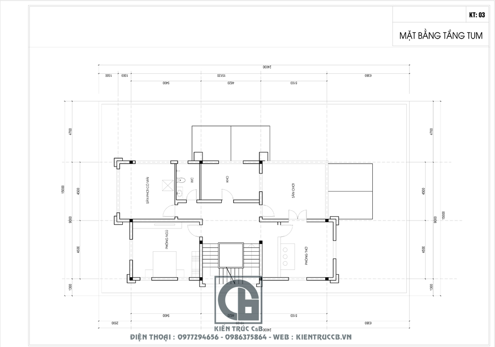
Tổng diện tích khu đất khoảng gần 300m2, trong đó diện tích xây biệt thự là 225m2. Thiết kế biệt thự gồm 2 tầng chính và 1 tầng tum. Mặt bằng các tầng được bố trí cụ thể như sau:
Mặt bằng tầng 1: Tầng 1 bao gồm tiền sảnh, đi vào là phòng khách, sảnh giữa, phòng bếp + ăn, phòng ngủ nhỏ cho người giúp việc.
Mặt bằng tầng 2: Phòng ngủ VIP, phòng ngủ Master, phòng ngủ phụ, phòng học
Mặt bằng tầng 3: Phòng ngủ phụ, phòng thờ, sân phơi đồ có mái che, sân chơi, kho chứa đồ.
Trước sảnh phụ còn có khoảng không lớn để làm gara ô tô.
Như vậy mẫu biệt thự 2 tầng 1 tum gồm có 04 phòng ngủ chính và 1 phòng ngủ cho người giúp việc, 01 phòng khách, 01 phòng bếp, còn lại là các phòng chức năng khác. Phương án mặt bằng này phù hợp với gia đình 03 thế hệ gồm ông bà, bố mẹ và 02 con.
Tham khảo thêm mặt bằng trong các mẫu thiết kế biệt thự 3 tầng dưới đây:
>>> Thiết kế biệt thự 2 tầng 1 tum phong cách tân cổ điển đẹp lãng mạn
>>> Mẫu biệt thự 3 tầng có sân vườn – Chủ đầu tư: Bà Lan (Phú Thọ)



Thiết kế biệt thự theo phong cách tân cổ điển đang được nhiều người ưa chuộng hiện nay bởi vẻ đẹp của nó luôn đi cùng xu hướng của thời đại mới, không dễ bị lỗi thời. Kiểu thiết kế này loại bỏ được bớt những chi tiết trang trí quá rườm rà, giữ lại được những nét đẹp tinh tế, sang trọng làm hài lòng được rất nhiều gia chủ khó tính.
Là một trong những mẫu thiết kế biệt thự cao cấp được Kiến Trúc C&B sáng tạo nên mang phong cách tân cổ điển nhẹ nhàng nhưng tinh tế, đẹp mắt.
Thức cột: Để tạo sự nguy nga, bề thế và đồ sộ cho biệt thự, kiến trúc sư đã tạo ra 2 mặt tiền với thiết kế cân xứng gồm 2 tiền sảnh chính và phụ. Hệ cột trụ vuông được thiết kế cân đối, hài hòa với các chi tiết trang trí hoa văn cổ điển đắp nổi thể hiện tính nghệ thuật cao. Lên tầng 2, hệ cột ở sảnh chính được thay bằng trụ tròn tạo dáng mảnh dẻ, thanh thoát hơn cho biệt thự.
Hệ cửa sổ: Đặc biệt ở tầng 1 được thiết kế 2 cửa sổ vuông làm từ kính với khung gỗ. Trên bậu cửa sổ thiết kế thêm mái che vừa tăng vẻ đẹp sang trọng vừa giúp chắn nắng mưa hiệu quả cho cửa sổ bên trong. Tầng 2 thiết kế cửa sổ vuông, bố trí đều ở xung quanh ngoại thất, lên tầng 3 là cửa sổ vòm. Bố cục này khá phổ biến và thường thấy trong các thiết kế biệt thự tân cổ điển hiện nay.
Hệ mái Thái: Biệt thự sử dụng mái Thái hình chữ L với màu đỏ vàng tươi ấn tượng. Đó cũng chính là điểm nhấn tạo sự thu hút và chú ý với người nhìn. Điểm xuyết thêm những chiếc cửa sổ mái sẽ giúp lấy ánh sáng tối đa cho không gian biệt thự và góp phần tạo nên nét đẹp kiến trúc hài hòa. (Xem thêm các mẫu biệt thự 3 tầng sử dụng mái Thái Tại đây.)
Kiểu mái Thái cũng được sử dụng khá phổ biết khi thiết kế nhà vườn, thiết kế biệt thự vườn, thiết kế nhà ống đẹp.... hiện nay.
Bạn có thể tham khảo thêm nhiều mẫu nhà đẹp:
>>> Tổng hợp mẫu thiết kế nhà vườn đẹp khiến chủ nhà "thích mê"
>>> 10 mẫu thiết kế nhà ống ấn tượng nhất

Toàn bộ biệt thự được bao quanh bằng hệ hàng rào sắt hoa văn uốn lượn đẹp mắt. Thay vì sử dụng tường rào bằng gạch, gia chủ lựa chọn chất liệu sắt và bố trí thưa để vừa khoe nét đẹp kiến trúc ngoại thất, vừa tạo không gian thoáng đãng.
Có một điều mà khi nhìn vào tổng thể bạn sẽ dễ nhận ra đó là các trụ cột ở tường rào thiết kế giống với trụ cột ở sảnh chính để tạo nên sự đồng bộ, thống nhất cho ngôi nhà. Thiết kế cổng chính có màu vàng sáng mang phong cách hoàng gia quý phái, trang trọng.
Ngoài ra, bên trong khuôn viên của biệt thự còn có nhiều khoảng để gia chủ có thể trồng cây cảnh, bồn hoa, mang đến phong thủy và không khí trong lành, mát mẻ cho ngôi nhà.
Trên đây chỉ là một trong những mẫu thiết kế biệt thự đẹp được thiết kế bởi Kiến Trúc C&B. Ngoài biệt thự, chúng tôi còn chuyên thiết kế lâu đài, thiết kế nhà phố, thiết kế khách sạn, thiết kế văn phòng... Chúng tôi sở hữu đội ngũ kiến trúc sư giàu kinh nghiệm, chuyên nghiệp, tận tình, luôn nỗ lực không ngừng đem đến cho khách hàng những mẫu nhà đẹp, độc đáo nhất, mang dấu ấn riêng.
Hãy liên hệ với chúng tôi qua Hotline, zalo, fanpage Kiến Trúc Nội Thất C&B, Gmail hoặc tới trực tiếp văn phòng của Kiến Trúc C&B để nhận mẫu thiết kế nhà đẹp và tư vấn miễn phí.
Thông tin và nội dung bạn gửi cho chúng tôi càng cụ thể, nội dung tư vấn cho bạn càng tối ưu và chi tiết.