Chuyên viên đã sẵn sàng hỗ trợ!
Tư vấn hoàn toàn miễn phí
Trụ sở công ty hiện đại không chỉ là nơi làm việc, mà còn thể hiện bộ mặt thương hiệu và tầm vóc doanh nghiệp. Công trình dưới đây được thiết kế với phối cảnh 3D sang trọng và hệ thống mặt bằng công năng khoa học, đáp ứng cả nhu cầu quản lý, làm việc, tiếp khách lẫn sinh hoạt của nhân viên.
.jpg.webp)
Hiện đại (Modern Contemporary):
Công trình mang phong cách kiến trúc hiện đại, thể hiện qua đường nét hình khối rõ ràng, mảng kính lớn, không có nhiều chi tiết trang trí cầu kỳ mà tập trung vào hình học và vật liệu.
Hình khối & Bố cục
Công trình đối xứng, tạo cảm giác vững chãi và cân bằng.
Trung tâm có một khối nhô cao (như tháp chính) để làm điểm nhấn cho logo và tên công ty.
Hai cánh bên cân đối, nhưng có sự cách điệu với các mảng kính nghiêng, tạo cảm giác động.
Vật liệu & Màu sắc
Chủ yếu dùng đá granite xám → sang trọng, bền bỉ, phù hợp tính chất trụ sở công ty.
Kính khung nhôm diện tích lớn → tăng ánh sáng tự nhiên, thể hiện tính minh bạch và hiện đại.
Hệ thống lam trang trí ở khối giữa → tạo điểm nhấn và che nắng một phần.
Mặt tiền & Không gian
Bậc thang lớn dẫn lên sảnh chính → mang tính biểu tượng, tạo cảm giác tôn nghiêm, uy quyền.
Không gian xung quanh thoáng, lùi so với đường → tạo sự bề thế cho tòa nhà.
Phong thủy & Công năng
Trục chính rõ ràng: bậc thang – sảnh – khối trung tâm → phù hợp quan niệm phong thủy Á Đông về “minh đường rộng rãi”.
Hai đường dốc xuống tầng hầm cho xe → tiện lợi, tách biệt giao thông chính và phụ.
Trong thiết kế kiến trúc hiện đại, việc bố trí mặt bằng công năng trụ sở công ty đóng vai trò then chốt, giúp tối ưu không gian làm việc và khẳng định hình ảnh doanh nghiệp. Phối cảnh 3D trụ sở không chỉ gây ấn tượng bởi ngoại thất bề thế, sang trọng mà còn được tổ chức công năng khoa học, hợp lý theo từng tầng. Từ khối văn phòng, khu vực làm việc chuyên môn, không gian lãnh đạo cho đến phòng hội nghị, tiếp khách – tất cả đều được sắp xếp hài hòa, đáp ứng trọn vẹn nhu cầu vận hành và phát triển lâu dài.

Công trình chính được đặt ở trung tâm khu đất, lùi về phía sau, tạo khoảng sân rộng phía trước cho bãi xe, tiểu cảnh, và lối tiếp cận.
Các hạng mục phụ trợ: nhà bơm nước sinh hoạt, bãi đỗ xe, vườn cây cảnh được bố trí xung quanh, đảm bảo sự hài hòa giữa cảnh quan – giao thông – công năng.
Lối ra vào chính nằm phía Nam (giáp đường phụ) và kết nối trực tiếp với sảnh lớn.

Sảnh chung: đóng vai trò trung tâm, kết nối các khu vực chức năng.
Phòng vật tư: phục vụ lưu trữ và quản lý thiết bị, hàng hóa.
Nhà ăn công nhân & nhà bếp: đảm bảo nhu cầu ăn uống, nghỉ ngơi của cán bộ, công nhân viên.
WC: bố trí hợp lý, thuận tiện cho sử dụng.
???? Đây là tầng phục vụ hậu cần, sinh hoạt và đảm bảo hoạt động thường nhật của toàn bộ nhân sự.

Đại sảnh: rộng rãi, sang trọng, tạo ấn tượng khi đón tiếp khách hàng, đối tác.
Phòng thiết kế, phòng tổ chức, phòng kinh doanh: tập trung các bộ phận chuyên môn quan trọng.
Không gian trưng bày: giới thiệu sản phẩm, mẫu vật, tạo sự chuyên nghiệp trong nhận diện thương hiệu.
Phòng kế toán, phòng bán hàng + kho: đảm bảo tính vận hành khép kín.
???? Đây là tầng làm việc chính, kết hợp khối văn phòng và không gian giới thiệu thương hiệu.

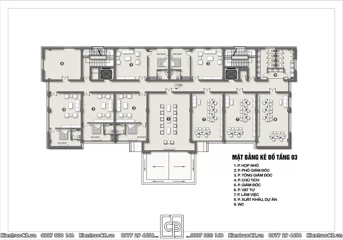
Phòng chủ tịch, phòng giám đốc, phòng tổng giám đốc, phó giám đốc: bố trí khoa học, có tính riêng tư và sang trọng.
Phòng họp nhỏ: phục vụ các buổi họp chiến lược nội bộ.
Phòng xuất khẩu – dự án, phòng vật tư, phòng làm việc: đáp ứng nhu cầu quản lý, điều hành dự án.
???? Đây là không gian dành cho ban lãnh đạo và quản lý cấp cao, thể hiện sự uy nghiêm và chuyên nghiệp.
.jpg.webp)
Phòng họp lớn: trung tâm của tầng, sức chứa lớn, phù hợp cho các buổi hội nghị, ký kết hợp đồng.
Phòng ăn lãnh đạo & phòng ngủ khách VIP: phục vụ nhu cầu tiếp đón, nghỉ ngơi đối tác.
Phòng nhân sự, phòng ăn nhân viên văn phòng: đảm bảo sự gắn kết và tiện ích cho nhân viên.
Bếp nấu + kho, WC: đầy đủ công năng hỗ trợ.
???? Đây là tầng mang tính lễ tân – hội nghị – tiếp khách, đồng thời vẫn hỗ trợ đời sống nhân viên.
Với cách phân chia công năng từng tầng trụ sở công ty rõ ràng, hợp lý, công trình không chỉ đảm bảo sự tiện nghi trong vận hành mà còn thể hiện sự chuyên nghiệp và đẳng cấp của doanh nghiệp. Từ tầng sinh hoạt, văn phòng làm việc cho đến khối lãnh đạo và phòng hội nghị, mọi không gian đều được thiết kế khoa học, tối ưu công suất sử dụng. Phối cảnh 3D hiện đại kết hợp cùng mặt bằng công năng chi tiết chính là yếu tố tạo nên một trụ sở vừa thẩm mỹ, vừa hiệu quả, góp phần khẳng định vị thế thương hiệu trên thị trường.
HÌNH ẢNH CÔNG TRÌNH THỰC TẾ
.jpg.webp)
.jpg.webp)
.jpg.webp)
Chúng tôi tự hào khi đã hoàn thành một công trình kiến trúc bulding độc đáo, đáp ứng mọi yêu cầu của khách hàng. Công trình này không chỉ là một công trình kiến trúc mà còn là một tác phẩm nghệ thuật, một biểu tượng của sự thành công.
Nếu bạn cũng đang có nhu cầu thiết kế và thi công nội ngoại thất cho không gian làm việc của mình, hãy liên hệ ngay với chúng tôi để được tư vấn và hỗ trợ tốt nhất.
Tham khảo thêm 1 số mẫu thiết kế về văn phòng, trụ sở theo link:https://kientruccb.vn/du-an-kien-truc-pj557/loc-khach-san---building.html
Thiết kế & thi công trọn gói – Kiến Trúc CB cam kết mang đến những công trình đẹp – bền vững – xứng tầm giá trị!
Hotline: 0977 29 4656 – 0337 000 168
Website: KientrucCB.vn
Facebook: https://web.facebook.com/KienTrucCB
Thông tin và nội dung bạn gửi cho chúng tôi càng cụ thể, nội dung tư vấn cho bạn càng tối ưu và chi tiết.