Chuyên viên đã sẵn sàng hỗ trợ!
Tư vấn hoàn toàn miễn phí
Bạn đã bao giờ mơ về một ngôi nhà không chỉ là nơi để ở, mà còn là nơi để bạn tận hưởng cuộc sống, thể hiện phong cách và tạo dựng những kỷ niệm đẹp bên gia đình? Biệt thự hiện đại 3 tầng dưới đây chính là câu trả lời hoàn hảo cho những mong muốn đó.
Ngay từ những ngày đầu tiếp xúc với gia chủ, chúng tôi đã cảm nhận được sự tinh tế và yêu cầu cao về thẩm mỹ của họ. Với mong muốn tạo nên một không gian sống vừa hiện đại, sang trọng, vừa ấm cúng và tiện nghi, chúng tôi đã cùng nhau xây dựng nên một ngôi nhà độc đáo, mang đậm dấu ấn cá nhân.



Quá trình thiết kế và thi công được triển khai tỉ mỉ, chuyên nghiệp, với sự kết hợp giữa vật liệu cao cấp và những đường nét kiến trúc tinh tế, tạo nên một không gian sống sang trọng và đẳng cấp. Hệ thống cửa kính lớn mở ra nguồn sáng tự nhiên dồi dào, mang thiên nhiên đến gần hơn với từng góc nhà.
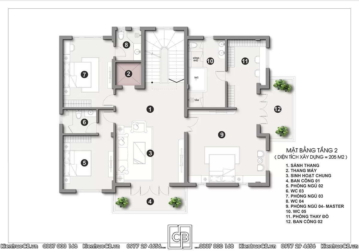
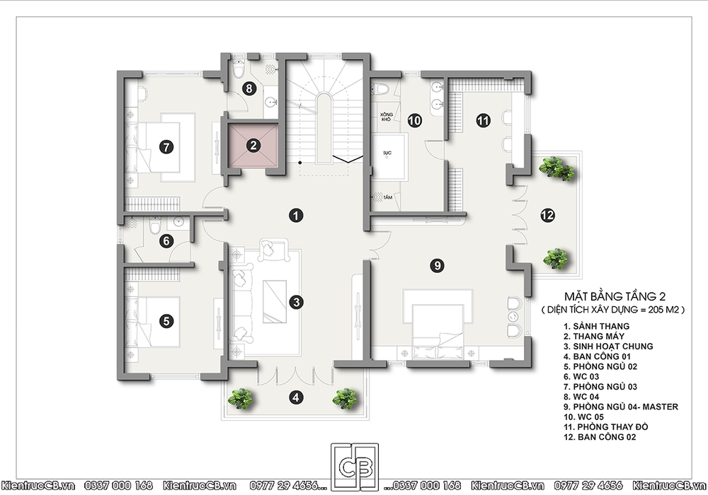
Từ những phối cảnh 3D thể hiện trọn vẹn vẻ đẹp kiến trúc hiện đại, bước tiếp theo là khám phá mặt bằng công năng chi tiết. Bản vẽ sẽ giúp gia chủ hình dung rõ cách sắp xếp không gian sinh hoạt, đồng thời cảm nhận được sự tiện nghi và hợp lý trong từng khu vực của biệt thự
.jpg.webp)
.jpg.webp)




Với chúng tôi, niềm vui và sự hài lòng của gia chủ chính là thành công lớn nhất. Khi nhìn thấy nụ cười và hạnh phúc trên gương mặt họ, chúng tôi hiểu rằng mình đã hoàn thành trọn vẹn sứ mệnh. Mời bạn cùng chiêm ngưỡng công trình được kiến tạo từ tâm huyết và bàn tay của đội ngũ thiết kế – thi công C&B.













Nếu bạn cũng đang ấp ủ những ý tưởng về ngôi nhà mơ ước, hãy liên hệ ngay với chúng tôi. Với kinh nghiệm và sự tận tâm, chúng tôi cam kết sẽ mang đến cho bạn một không gian sống hoàn hảo nhất.
Các bạn có thể tham khảo thêm nhiều mẫu biệt thự hiện đại đẹp khác dưới các link bài viết dưới đây:
>>> Mẫu biệt thự 2 mặt tiền theo phong cách hiện đại ở TP. Hòa Bình
>>> Mẫu biệt thự 2 tầng mái Nhật hiện đại sang trọng ở Sóc Sơn, Hà Nội
_________________________________
CÔNG TY CỔ PHẦN TƯ VẤN KIẾN TRÚC NỘI THẤT C&B
Hotline: 0337 000 168
Địa chỉ: Số 02, Đường 10, Phân khu Sunrise K, Khu đô thị The Manor Central Park, Quận Hoàng Mai, Hà Nội
Website: https://kientruccb.vn
Youtube: https://www.youtube.com/c/Ki%E1%BA%BFntr%C3%BAcN%E1%BB%99ith%E1%BA%A5tCB
Facebook: https://web.facebook.com/KienTrucC
Thông tin và nội dung bạn gửi cho chúng tôi càng cụ thể, nội dung tư vấn cho bạn càng tối ưu và chi tiết.