x
KHẢO SÁT VÀ TƯ VẤN MIỄN PHÍ
KHẢO SÁT VÀ TƯ VẤN MIỄN PHÍ

Hãy để lại thông tin dưới đây để nhận được khảo sát trực tiếp và tư vấn miễn phí từ 

Kiến trúc - Nội thất C&B

Hay phone_cal

Ấn tượng mẫu biệt thự 2 tầng mang phong cách Pháp

0
1764
Tổng quan
Chủ đầu tư
Anh Hùng
Địa điểm
Tp. Thái Bình
Số tầng
2 tầng
Diện tích đất
170m2
Mã công trình
BTT43
Đơn vị thực hiện
Công ty tư vấn kiến trúc nội thất C&B
Ưu điểm ngôi nhà

Biệt thự 2 tầng từ lâu đã trở thành một trong những thiết kế kiến trúc có tính ứng dụng cao. Tổng thể công trình hài hòa và thích hợp với mọi phong cách kiến trúc, như: hiện đại, tân cổ hay cổ điển… Bạn yêu thích mẫu nhà ấm cúng này? Vậy phong cách kiến trúc nào sẽ hoàn hảo nhất với nó? Dưới đây, là gợi ý của kiến trúc sư C&B về mẫu biệt thự 2 tầng mang phong cách Pháp đầy tinh tế: 

Ấn tượng thiết kế mẫu biệt thự 2 tầng mang phong cách Pháp

Tính năng nổi bật:

  • Không mang tính bề thế, đồ sộ của kiểu biệt thự 3-5 tầng hay lâu đài. Kiểu biệt thự 2 tầng là mẫu thiết kế hoàn toàn phù hợp với mục đích sử dụng của gia chủ. Nó thỏa mãn lối sống ấm cúng, không gian sống vừa đủ, thích hợp cho kiểu gia đình hạt nhân, vợ chồng trẻ, cặp đôi trung tuổi…
  • Cách xây dựng cũng như thiết kế mẫu nhà này cũng bắt kịp xu hướng và lối sống mới, hiện đại. Nó vừa tiết kiệm chi phí, không gian sống vừa đủ hợp lí. Đồng thời phù hợp với cuộc sống gia đình trẻ hiện nay khi không sinh quá nhiều con và sống riêng với thế hệ trước. Hơn thế, nó còn thích hợp với lối sống của những cặp đôi trung niên ngày nay, nghỉ hưu muốn an dưỡng, nghỉ ngơi tuổi già…

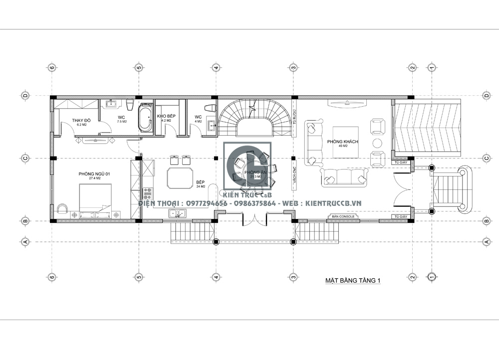
Mặt bằng công năng của mẫu biệt thự 2 tầng:

TẦNG 1:

Ấn tượng thiết kế mẫu biệt thự 2 tầng mang phong cách Pháp

  • thiết kế bởi hệ thống cầu thang lát đá ở cả 2 mặt tiền.
  • Tại sảnh chính, cầu thang lên xuống nối liền với hệ thống thức cột và mái vòm của sảnh. Chân cầu thang này được bố trí 2 trụ vuông chắc chắn. Nó nối liền với hệ thống con tiện thanh lịch ôm lấy phần thang lên xuống.
  • Điểm nhấn mang phong cách tân cổ thật đậm nét qua hệ thống mái vòm sảnh chính. Vòm dáng cong với nét chỉ, chi tiết đắp nổi cầu kì nhưng tinh tế. Đặc biệt là thức cột Ionic cổ điển châu Âu được bố trí ở đây. Thức cột mang vẻ đẹp mảnh dẻ, nữ tính nhưng kết cấu trụ bao tròn lại vô cùng chắc chắn.
  • Mặt nhà bên cũng được thiết kế bậc thang 2 lối lên xuống thuận tiện. Điểm khác biệt của mặt tiền này là sử dụng thức cột vuông.-> Tránh tính lặp, tạo dấu ấn cho mỗi mặt của căn biệt thự 2 tầng.
  • Cửa chính được chọn là loại cửa gỗ kính. Một sự pha trộn hoàn hảo giữa sự mộc mạc và hiện đại. Hệ thống cửa phụ và cửa sổ được phân bổ đều, hợp lí ở cả 2 mặt của biệt thự.

TẦNG 2:

Ấn tượng thiết kế mẫu biệt thự 2 tầng mang phong cách Pháp

Thiết kế ban công của mẫu biệt thự 2 tầng:

  • Ban công mặt phụ thiết kế rộng rãi, kết cấu tương đương với phần sảnh tầng 1 tương ứng. -> Tạo tính hài hòa mặt đứng công trình. Qua đó, gia tăng tính thẩm mỹ cao của lối kiến trúc tân cổ.
  • Ban công mặt chính chỉ là một phần diện tích nhỏ phía ngoài cửa sổ. -> Phù hợp để trồng loại cây, hoa nhỏ nhắn để trang trí. Kiến trúc sư C&B đã thật tinh tế đan cài,trang trí thêm kiểu vòng đan sắt nghệ thuật ở phần ban công nhỏ hẹp này. Thế mới biết, mỗi công trình của kiến trúc C&B được chăm chút kĩ lưỡng từng chi tiết đến như thế nào!
  • Dù diện tích thiết kế không quá rộng rãi nhưng các kiến trúc sư vẫn dành một khoảng không xinh xắn tầng 2 cho gia chủ. Đây là không gian cần thiết, nguồn sinh khí cho ngôi nhà. Gia chủ có thể cải tạo, trồng thêm cây, chậu hoa để tạo thành vườn thượng uyển nho nhỏ nơi ban công. Một địa điểm nghỉ ngơi lý tưởng, trong lành trong chính ngôi nhà của bạn.

Mái Thái:

Hệ thống mái Thái được áp dụng thiết kế trong ngôi biệt thự 2 tầng của gia đình anh Hùng. Loại mái này đang là mẫu mái mới nhất và thịnh hành trong giới kiến trúc và xây dựng. Bởi tính thẩm mỹ cao, giá thành hợp lí, công năng che mưa nắng hiệu quả,…

Bạn muốn tìm hiểu thêm về kiến trúc và nội thất, vui lòng truy cập:

->>>> Thiết kế mẫu biệt thự 3 tầng Vinhomes Riverside

->>>> Biệt thự 5 tầng kiến cố tích hợp kinh doanh

->>>> Mẫu biệt thự 2 tầng phong cách Pháp ấn tượng

CÔNG TY TƯ VẤN KIẾN TRÚC NỘI THẤT C&B

Số 168 Nguyễn Xiển - Thanh Xuân - Hà Nội

Hotline:  0977294656 – 0986375864.

Email: KIENTRUCCB@GMAIL.COM.

 

Kiến trúc C&B - Tinh tế đến từng chi tiết
1
Thiết kế sáng tạo, chuyên nghiệp
Uy tín, trách nhiệm, đảm bảo khách hàng hài lòng 100%
2
Kinh nghiệm lâu năm
Đội ngũ kiến trúc sư chuyên nghiệp, nhiệt tình, sáng tạo
3
Hồ sơ đầy đủ
Bản vẽ rõ ràng và đầy đủ các hạng mục, dễ thi công
Đánh giá - Bình luận
0 bình luận, đánh giá về Ấn tượng mẫu biệt thự 2 tầng mang phong cách Pháp
Nhấn vào đây để đánh giá
Thông tin người gửi
Liên hệ tư vấn
Liên hệ tư vấn

Chuyên viên đã sẵn sàng hỗ trợ!

Tư vấn hoàn toàn miễn phí

Gửi yêu cầu tư vấn miễn phí
Tìm kiếm nhanh
Nội dung cần tư vấn

Thông tin và nội dung bạn gửi cho chúng tôi càng cụ thể, nội dung tư vấn cho bạn càng tối ưu và chi tiết.

Đính kèm
Chưa chọn tệp nào
Chúng tôi có thể hỗ trợ bạn!
0.09517 sec| 1241.875 kb