Chuyên viên đã sẵn sàng hỗ trợ!
Tư vấn hoàn toàn miễn phí
Thực tế trong thiết kế biệt thự có rất nhiều phong cách khác nhau. Để giúp bạn đọc có thêm thông tin bổ ích về các mẫu biệt thự được ưa chuộng nhất hiện nay, chúng tôi xin phép giới thiệu về mẫu biệt thự 3 tầng mái Thái hai mặt tiền- tinh túy của vẻ đẹp thời đại.

Với diện tích xây dựng 120m2, được gia đình chị Hoa yêu cầu thiết kế kiểu biệt thự 3 tầng. Các kiến trúc sư C&B đã bắt tay ngay vào công việc để vừa thỏa mãn yêu cầu của gia chủ đồng thời đảm bảo tính thẩm mỹ trong thiết kế và tính công năng trong sử dụng…
Ưu điểm nổi bật của mẫu thiết kế là không gian 3 tầng rộng rãi, phù hợp với gia đình có đông thành viên, thích hợp với cả người lớn và trẻ nhỏ. Tone trắng trang nhã làm chủ đạo kết hợp hệ thống gạch thẻ ở phần mái tạo sự phá cách mới lạ mà phong cách.
Cấu trúc tầng 1 gồm: 1 phòng khách, 1 phòng ngủ, 1 phòng bếp, sảnh chính- phụ, cầu thang đi lên, nhà vệ sinh.

Thiết kế là sự tổng hòa giữa phong cách hiện đại và nét tân cổ điển nhẹ nhàng. Tính hiện đại thể hiện qua tính mở- sự phân bố nhiều cửa sổ, cửa ra vào.-> Nhằm thu được một lượng lớn ánh sáng tự nhiên, cũng như luồng gió, không khí thoáng đãng từ ngoài vào trong căn nhà…. Nhờ vậy, có thể tiết kiệm được khoản lớn chi phí tiền điện trong sinh hoạt.
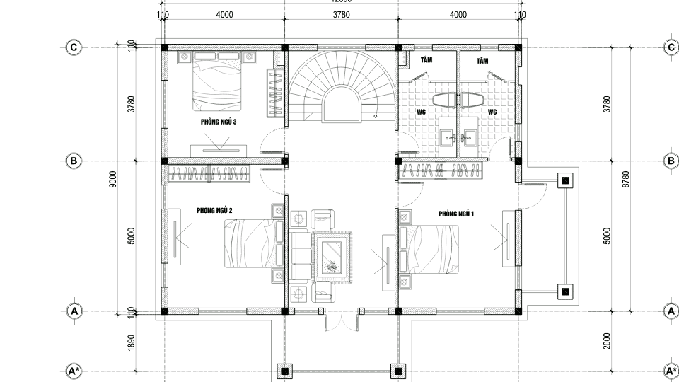
Cấu trúc tầng 2 gồm: 3 phòng ngủ, 2 phòng tắm, cầu thang lên xuống.

Phần mái Thái của biệt thự 3 tầng được coi là thiết kế thân thiện với môi trường, với giá thành vật liệu phải chăng, công năng tích hợp được với nhiều mẫu nhà; độ dốc mái hợp lí sẽ giúp dễ dàng trong việc dọn dẹp và vệ sinh.
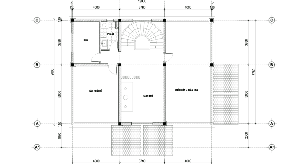
Cấu trúc tầng 3 gồm: 1 sân phơi đồ, 1 gian thờ, khu vườn hoa- giàn cây, phòng kho.

Điểm nổi bật khác cần phải nói đến trong thiết kế là chi tiết nan bê tông được thêm vào ở tầng 3. Nan bê tông tiết chế nét cứng cáp trong hệ thống cột và khối vuông góc cạnh. Đồng thời sở hữu nhiều công năng vô cùng hữu ích:
Đội ngũ kiến trúc C&B hi vọng với những chia sẻ, phân tích về mẫu kiến trúc biệt thự 3 tầng mái Thái trên sẽ giúp bạn đọc có thêm những gợi ý, thông tin về mẫu nhà này. Bạn có thắc mắc cần được giải đáp và thắc mắc về kiến trúc và nội thất? Hãy liên hệ ngay với chúng tôi để có được giải đáp nhanh chóng, cụ thể nhất!
Bạn muốn tìm hiểu thêm về kiến trúc và nội thất, vui lòng truy cập:
->>>>> Mẫu biệt thự tân cổ Riverside sang trọng, đẳng cấp
->>>>> Thiết kế biệt thự 2 tầng mang phong cách Pháp
->>>>> Biệt thự 5 tầng kiến cố phong cách tân cổ điển
CÔNG TY TƯ VẤN KIẾN TRÚC NỘI THẤT C&B
Số 168 Nguyễn Xiển - Thanh Xuân - Hà Nội
Hotline: 0977294656 – 0986375864
Email: KIENTRUCCB@GMAIL.COM
Thông tin và nội dung bạn gửi cho chúng tôi càng cụ thể, nội dung tư vấn cho bạn càng tối ưu và chi tiết.