Chuyên viên đã sẵn sàng hỗ trợ!
Tư vấn hoàn toàn miễn phí
Mẫu biệt thự 3 tầng mang phong cách hiện đại, mái Nhật với diện tích khoảng 160m2 mỗi sàn. Cùng Kiến Trúc C&B tham khảo công năng ngôi nhà qua bài viết dưới đây.
Những mẫu thiết kế biệt thự 3 tầng phong cách hiện đại đang trở thành xu hướng thiết kế nhà mới nhất hiện nay rất được các chủ đầu tư hướng tới. Ưu điểm của những mẫu nhà biệt thự đó chính là không gian rộng rãi, chỉ từ 100m2 trở lên là gia chủ có thể có được một thiết kế nhà đẹp hoàn hảo. Hơn nữa với phong cách hiện đại, gia chủ có thể lựa chọn vô vàn những kiểu dáng nhà khác nhau, hệ mái cũng có thể dụng kiểu Thái, Nhật, mái bằng hoặc mái hộp... Bạn có thể tham khảo thêm 1 số kiểu khác trong bài: Những kiểu mái thường sử dụng khi thiết kế biệt thự.
Mẫu biệt thự 3 tầng đẹp này mang nét đẹp hiện đại, trẻ trung, rất sang trọng và thể hiện sự nam tính mạnh mẽ thông qua kiểu mái Nhật cùng tone màu ghi xám rất trang nhã của phần sơn ngoại thất.

Phối cảnh tổng thể mẫu biệt thự 3 tầng
Nhìn bao quát không gian bên ngoài bạn sẽ cảm nhận được không gian rất mở và thoáng của ngôi biệt thự với những khối hộp được thiết kế rất khỏe khoắn, mạnh mẽ. Rất nhiều diện tích được bố trí cửa kính trong suốt để lấy ánh sáng tự nhiên đồng thời phô được nội thất bên trong ngôi nhà. Ở trong nhà hay thậm chí nằm ngủ trên giường gia chủ cũng có thể ngắm nhìn được khung cảnh thơ mộng bên ngoài. Hệ lan can bằng kính cũng tạo cho tầm nhìn của ngôi nhà rất đẹp, mở.
Bên cạnh đó, tầng 2 và tầng 3 có lô gia, ban công với diện tích khá lớn để gia chủ trồng cây, làm vườn treo, mang lại không khí trong lành cũng như không gian xanh cho ngôi nhà. Đây cũng là xu hướng thiết kế nhà biệt thự nhà thường thấy trong tương lai. Rất nhiều các mẫu biệt thự 2 tầng, 3 tầng được Kiến Trúc C&B thiết kế cũng có nhiều không gian để gia chủ trồng cây, làm sân vườn, bạn có thể xem thêm trong bài Tổng hợp những mẫu thiết kế biệt thự đẹp 2 tầng, 3 tầng

Mẫu biệt thự phong cách hiện đại
Một trong những điểm nhấn độc đáo chính của ngôi nhà là toàn bộ phần tường ngoại thất đều dược ốp gạch ceramic hoặc sử dụng đá nếu gia chủ có điều kiện. Việc ốp gạch có rất nhiều tác dụng như chống ẩm, mốc, tăng tuổi thọ cho ngôi nhà, đồng thời tạo nên nét đẹp độc đáo riêng có, thể hiện quyền lực và vị thế của gia chủ. Tuy nhiên với phương án thiết kế nhà này sẽ khiến gia chủ tốn kém một khoản kinh phí khá lớn.
Mặt tiền chính và mặt bên của nhà cũng tạo được sự khác biệt bằng việc ốp gạch thẻ màu nâu đen thể hiện sự mạnh mẽ, nam tính, rất phù hợp với cá tính của gia chủ. Ở mặt tiền chính ngôi nhà còn thiết kế biển tên để gia chủ đắp tên theo nhu cầu như Huy's Villa...
Mẫu nhà biệt thự sử dụng hệ mái Nhật có độ dốc vừa phải. Nếu bạn không thích kiểu mái này, có thể sử dụng mái bằng hoặc mái Thái thay thế.
Xem thêm mẫu biệt thự mái Thái: Mẫu thiết kế biệt thự 3 tầng phong cách hiện đại
Xem mẫu biệt thự mái bằng:
>>> Mẫu biệt thự hiện đại 4 tầng kết hợp cho thuê
>>> Mẫu thiết kế biệt thự hiện đại 3 tầng đẹp
Tổng diện tích của mẫu biệt thự 3 tầng này là khoảng 400m2 với 3 tầng. Công năng các tầng sẽ được bố trí cụ thể như sau:
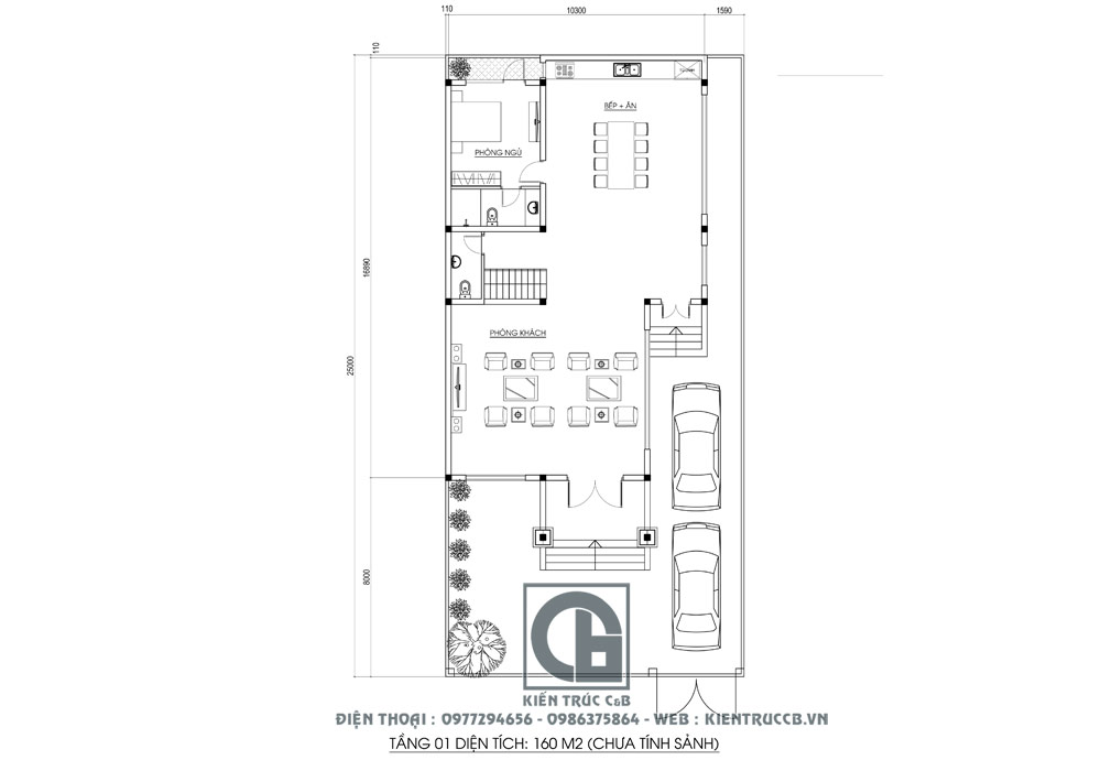
Mặt bằng Tầng 1: Khu vực tiền sảnh, Phòng khách, phòng bếp + ăn, phòng ngủ khép kín và 01 WC dưới gầm cầu thang.
Mặt bằng Tầng 2: 03 phòng ngủ với 1 phòng Master có phòng thay đồ riêng
Mặt bằng Tầng 3: Phòng thờ, phòng ngủ khép kín, phòng giặt phơi và sân chơi.

Phương án mặt bằng công năng tầng 1
Các khu vực phòng chức năng được bố trí khá hợp lý và tiết kiệm diện tích. Ngoài sảnh chính thì ở mặt bên ngôi nhà còn có cửa phụ với hệ bậc tam cấp rất tiện lợi trong sinh hoạt. Cửa này đặt đối diện bếp nên giúp khu vực nơi đây thoáng đãng, không bị ẩm thấp.

Phương án mặt bằng tầng 2
Tầng 2 ngoài 03 phòng ngủ được bố trí gọn gàng và hợp lý thì còn một khoảng diện tích nhỏ ở sảnh cầu thang làm lối đi lại cũng như ra ban công để ngắm cảnh, trồng cây. Các thành viên trong gia đình có thể đặt ghế, bàn bar ngồi uống cà phê, đọc sách hoặc thưởng trà và chăm sóc cây cối cũng rất thi vị.

Phương án mặt bằng tầng 3
Khu vực tầng 3 cũng được thiết kế xen kẽ các lô gia, ban công kết hợp vườn treo để trồng cây, phòng thờ cũng nhìn ra mặt tiền rất thoáng, khi thắp hương vào những ngày lễ tết có thể mở cửa cho thoáng, rất hợp lý và tiện lợi. Nếu bạn cũng thích các mẫu biệt thự kết hợp vườn treo có thể tham khảo thêm tại link sau: /mau-thiet-ke-biet-thu-ket-hop-vuon-treo-an-tuong/
Xem thêm: Tổng hợp các mẫu thiết kế biệt thự 3 tầng đẹp và ấn tượng nhất 2020
Với mẫu biệt thự đẹp 3 tầng này, ngoài ở anh Huy còn có thể sử dụng để cho thuê cũng rất hợp lý vì nó đảm bảo đủ điều kiện nhiều phòng nghỉ, thích hợp cho nhóm người. Không gian xung quanh cũng rất thân thiện, nhiều khu vực phù hợp cho việc thư giãn, nghỉ dưỡng.
Hiện nay thiết kế biệt thự đơn lập và song lập cho thuê cũng rất phổ biến, được nhiều chủ đầu tư lựa chọn để sinh lời. Hiểu hơn về 2 loại biệt thự này, bạn có thể Xem thêm Tại đây.
Trên đây là một mẫu biệt thự hiện đại được thiết kế bởi Kiến Trúc C&B. Nếu bạn không thích phong cách hiện đại có thể tham khảo các mẫu biệt thự tân cổ điển khác như:
>>> Thiết kế biệt thự tân cổ điển mái hộp kiểu Pháp nguy nga và cổ kính
Ngoài ra, chúng tôi còn chuyên thiết kế nhà ống, thiết kế nhà vườn, nhà phố, thiết kế khách sạn, thiết kế lâu đài... tại Hà Nội và các tỉnh lân cận như Hưng Yên, Hải Dương, Phú Thọ, Bắc Ninh, Quảng Ninh... Để tham khảo mẫu thiết kế nhà đẹp và tư vấn thiết kế nhà miễn phí, bạn vui lòng gọi điện tới Hotline, gửi nội dung tư vấn qua Email, zalo, Fanpage Kiến Trúc Nội Thất C&B hoặc tham khảo các mẫu nhà của chúng tôi tại Youtube: https://www.youtube.com/channel/UC3xpr7xslIFhkBRiH38orVg?view_as=subscriber
Thông tin và nội dung bạn gửi cho chúng tôi càng cụ thể, nội dung tư vấn cho bạn càng tối ưu và chi tiết.