Chuyên viên đã sẵn sàng hỗ trợ!
Tư vấn hoàn toàn miễn phí
Sử dụng tone màu trắng kết hợp vàng nhạt cùng mái ngói đỏ vàng tươi giúp mẫu biệt thự 3 tầng phong cách tân cổ điển dưới đây trở nên sang trọng, thanh thoát.
Sự thành công của đội ngũ kiến trúc sư đó chính là sáng tạo nên một ngôi nhà được gia chủ ưng ý và hài lòng. Nó đến từ việc KTS thấu hiểu nhu cầu gia chủ, từ đó phân chia công năng hiệu quả, đảm bảo tiện lợi trong quá trình sinh hoạt. Ngoài ra một mặt tiền biệt thự đẹp cũng là yếu tố cần thiết để chinh phục gia chủ.
Cùng Kiến Trúc C&B tham khảo mẫu biệt thự 3 tầng dưới đây của chủ đầu tư: ông Bà Sang tọa lạc tại Tp. Ninh Nình để hiểu hơn ý đồ thiết kế cũng như công năng của mẫu biệt thự tân cổ điển này.

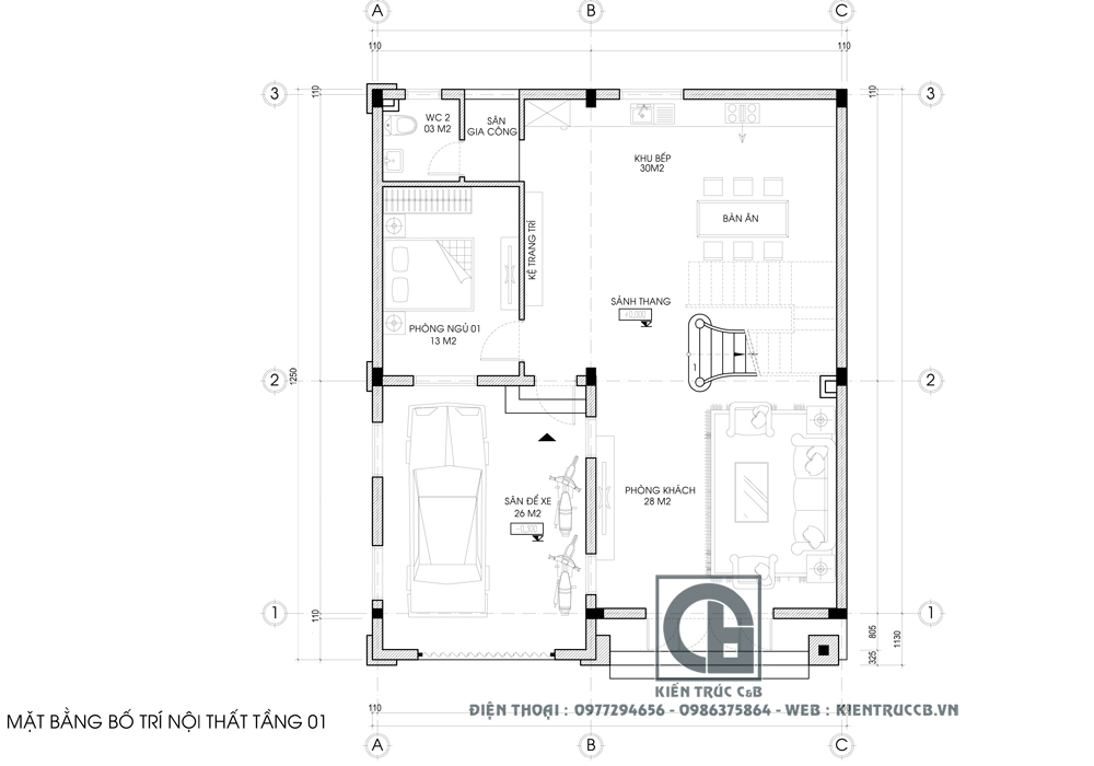
Tổng diện tích thiết kế khoảng 130m2. Ông Bà Sang quyết định xây nhà gồm 3 tầng chính và 1 tầng mái. Mỗi tầng đều có công năng và diện tích sử dụng khác nhau. Để không gian sống trở nên yên bình, mát mẻ và không bí bách thì tầng 2 và 3 không xây hết mà được thiết kế thành ban công và vườn treo với mái kính. Mặt bằng các tầng được bố trí như sau:
Tầng 1: Gara để xe, 01 phòng khách, 01 phòng bếp, 01 phòng ngủ, 01 WC.
Tầng 2: 01 phòng ngủ Master, 02 phòng ngủ phụ và sân chơi.
Tầng 3: Phòng thờ, phòng ngủ, phòng tập gym, sân phơi đồ
Tấng mái: Kho chứa đồ
Phía trên vườn treo là tấm kính cường lực vừa có tác dụng chắn nắng mưa cho ban công tầng 2 vừa có lấy ánh sáng phản chiếu cho tầng 3 hiệu quả. Việc không thiết kế phòng ngủ ở phía trên vườn treo sẽ tạo ra không gian thoáng đãng, tầm nhìn đẹp ra mặt phố.

Để có một mặt tiền và ngoại thất đẹp, chủ đầu tư và kiến trúc sư phải tham khảo cũng như phác thảo khá nhiều mẫu biệt thự khác, đồng thời định hình phong cách như mình muốn.
Ông Sang là người khá năng động, thoải mái nên khá thích những phong cách thiết kế biệt thự hiện đại. Nhưng để mẫu nhà không bị lỗi thời theo thời gian ông muốn nó phải mang hơi hướng tân cổ điển một chút. Đó cũng chính là lý do mà kiến trúc sư của C&B sử dụng các chi tiết gờ, phào trang trí ở cột và cửa chính, cửa sổ một cách đơn giản, không quá cầu kỳ nhưng vẫn toát lên vẻ đẹp hiện đại, tinh tế.
Thay vì sử dụng các bức phù điêu hoa văn thạch cao, kiến trúc sư đã tạo điểm nhấn vào hệ lan can sắt hoa văn uốn lượn ở ban công. Chất liệu này vừa dễ thực hiện, tiết kiệm chi phí mà gia chủ cũng có thể thay đổi tùy theo sở thích.
Toàn bộ cửa chính, cửa phòng ngủ ra ban công đều được làm từ chất liệu gỗ với màu nâu cánh gián sang trọng. Nó cũng góp phần tạo nên sự sang trọng, đẹp mắt, có khả năng cách nhiệt tốt và gần gũi với thiên nhiên.

Sử dụng mái Thái trong thiết kế biệt thự tân cổ điển hoặc biệt thự hiện đại là lựa chọn phổ biến hiện nay. Với nhiều ưu điểm về khả năng che chắn, chi phí thi công cũng như đa dạng lựa chọn cho chủ đầu tư, kiểu mái này đang khá thịnh hành. Thực tế cũng cho thấy hiệu quả mà nó mang lại cho gia chủ là khá rõ ràng.
Với mẫu biệt thự đẹp này, kiến trúc sư cũng sử dụng kiểu mái Thái nhưng thiết kế dạng vuông góc và lờm ra bên ngoài khá nhiều để chắn nắng và làm mát ngôi nhà. Sử dụng màu gạch vàng đỏ tươi hợp tone với ngoại thất cũng giúp ngôi nhà sáng sủa và nổi bật hơn.
Xem thêm:
>>> Những kiểu mái nhà sử dụng khi thiết kế kiến trúc biệt thự
>>> Những mẫu thiết kế biệt thự mái Thái đẹp đang “làm mưa làm gió” năm nay

Ngay từ khi bản thiết kế bắt đầu hoàn thiện và bàn giao, chủ đầu tư đã tiến hành thi công phần móng để đảm bảo tiến độ công trình. Việc thi công được đội ngũ kiến trúc sư giám sát sát sao để đảm bảo chất lượng công trình. Toàn bộ số lượng vật tư đều được thống kê đầy đủ về số lượng và yêu cầu chất lượng. Vì thế chủ đầu tư có thể hoàn toàn yên tâm về ngôi nhà của mình.
Dưới đây là 1 số hình ảnh Kiến Trúc C&B ghi lại được từ công trình.



Hiện trạng thi công tháng 8/2020:


Để có một ngôi nhà đẹp bạn cần phải tìm được đơn vị thiết kế nhà uy tín, có tâm và kinh nghiệm. Kiến Trúc C&B tự hào là công ty thiết kế kiến trúc nội thất hàng đầu tại Hà Nội. Chúng tôi chuyên thiết kế biệt thự, nhà phố, nhà hàng, khách sạn, nhà cổ... Với đội ngũ kiến trúc sư chuyên nghiệp, tận tình, chúng tôi tin tưởng mang tới cho khách hàng những công trình hoàn hảo và ấn tượng nhất, mang dấu ấn riêng của gia chủ.
Hãy gọi ngay cho chúng tôi vào Hotline, gửi email, inbox qua Fanpage hoặc tới trực tiếp văn phòng của chúng tôi để được tư vấn và tham khảo nhà miễn phí.
Thông tin và nội dung bạn gửi cho chúng tôi càng cụ thể, nội dung tư vấn cho bạn càng tối ưu và chi tiết.