Chuyên viên đã sẵn sàng hỗ trợ!
Tư vấn hoàn toàn miễn phí
Tông màu trắng thanh thoát kết hợp hài hòa với mái Thái ghi xanh mang đến cho mẫu biệt thự 4 tầng mái Thái phong cách tân cổ điển vẻ đẹp hiền hòa, lãng mạn. Cùng Kiến trúc C&B khám phá kiệt tác kiến trúc tân cổ này nhé.

Tổng thể bên ngoài biệt thự là một màu trắng tinh khôi với lối kiến trúc tân cổ vô cùng tinh tế và lãng mạn. Tầng 1 được các KTS thiết kế 2 sảnh cân xứng ở 2 mặt tiền. Thức cột Ionic dáng tròn, thon gọn được sử dụng ở tiền sảnh làm tăng thêm sự uy nghi, vững chãi cho công trình. Từ tầng 2 lên tầng 3 là hệ cột trụ vuông kéo dài với đầu cột đắp phù điêu và hoa văn cổ điển ấn tượng.
Bậu cửa và phào trang trí trên cửa cũng mang nét đặc trưng của kiến trúc tân cổ. Màu trắng được KTS sử dụng triệt để cả ở cửa sổ và toàn bộ ngôi nhà. Ưu điểm của nó là mang tới sự phóng khoáng, thanh thoát cũng như giúp ngôi nhà trở nên nổi bật, lung linh hơn.
Cầu thang lên nhà cũng được thiết kế với các đường nét uyển chuyển, mềm mại. Ngay từ cái nhìn đầu tiên, bạn chắc chắn sẽ có thiện cảm và bị chinh phục hoàn toàn. Bởi ngôi biệt thự trông giống như một nàng công chúa thướt tha khoe mình trong cảnh sắc muôn màu.
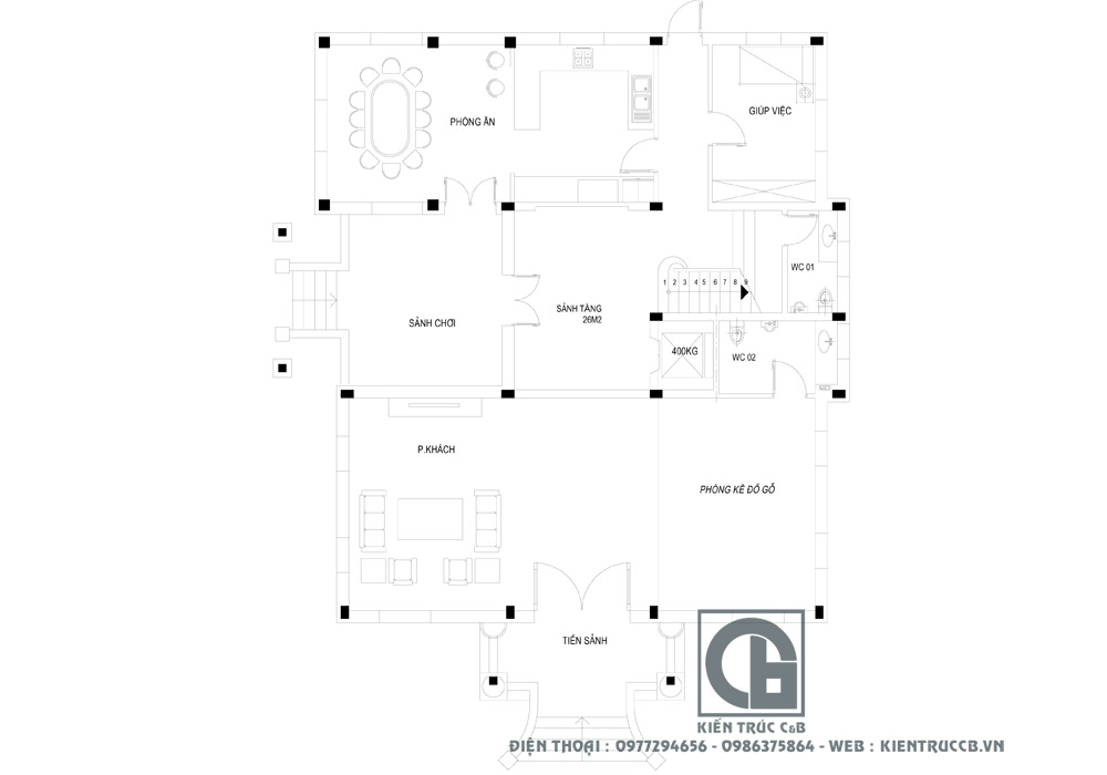
Biệt thự được chia thành 4 tầng:
Mỗi tầng được KTS khéo léo phân chia diện tích và bố trí các phòng khác nhau. Vừa đảm bảo tận dụng tối đa diện tích sử dụng vừa mang lại cảm giác rộng rãi và thoáng mát, không bị thiếu ánh sáng hay bí bách.

Còn rất nhiều mẫu biệt thự tân cổ, nhà phố tân cổ được Kiến trúc sư C&B kiến trúc, bạn có thể tham khảo thêm dưới link sau:
->>>>> Sự sang trọng và đẳng cấp trong mẫu biệt thự 4 tầng mái Thái tân cổ
Liên hệ ngay với chúng tôi để được tư vấn miễn phí thiết kế kiến trúc và nội thất:
CÔNG TY TƯ VẤN KIẾN TRÚC NỘI THẤT C&B
Số 168 Nguyễn Xiển – Thanh Xuân – Hà Nội
Hotline: 0977294656 – 0986375864
Email: KIENTRUCCB@GMAIL.COM
Website: Kientruccb.vn
Fanpage: https://www.facebook.com/KienTrucCB/
Thông tin và nội dung bạn gửi cho chúng tôi càng cụ thể, nội dung tư vấn cho bạn càng tối ưu và chi tiết.