Chuyên viên đã sẵn sàng hỗ trợ!
Tư vấn hoàn toàn miễn phí
Hiện đại mà vẫn cổ kính. Mẫu biệt thự tân cổ 4 tầng kết hợp mái Thái mang phong cách Pháp dưới đây sẽ khiến bạn vô cùng mê mẩn.

Yếu tố cổ điển và hiện đại được kết hợp hài hòa trong kiểu biệt thự tân cổ này. Điểm nhấn chính của ngôi nhà là những trụ cột được thiết kế từ tầng 1 lên tầng 3. Ban công cũng được bố trí khá nhiều. Tạo nên một kiến trúc cổ kính, xuyên suốt. 2 cột chính ở tiền sảnh được đắp phù điêu hoa văn ấn tượng. Các cột giả cũng được kiến thạo theo lối cổ đại xưa cũ.
Ngoài ra các chi tiết phù điêu, họa tiết trang trí cũng được đặt trên mái vòm cửa sổ nhưng không quá cầu kỳ.Tất cả mang đến cho công trình một vẻ đẹp cổ điển. Màu sắc trắng hơi vàng kết hợp cùng mái Thái màu đỏ mang đến nét hiện đại cho ngôi nhà.

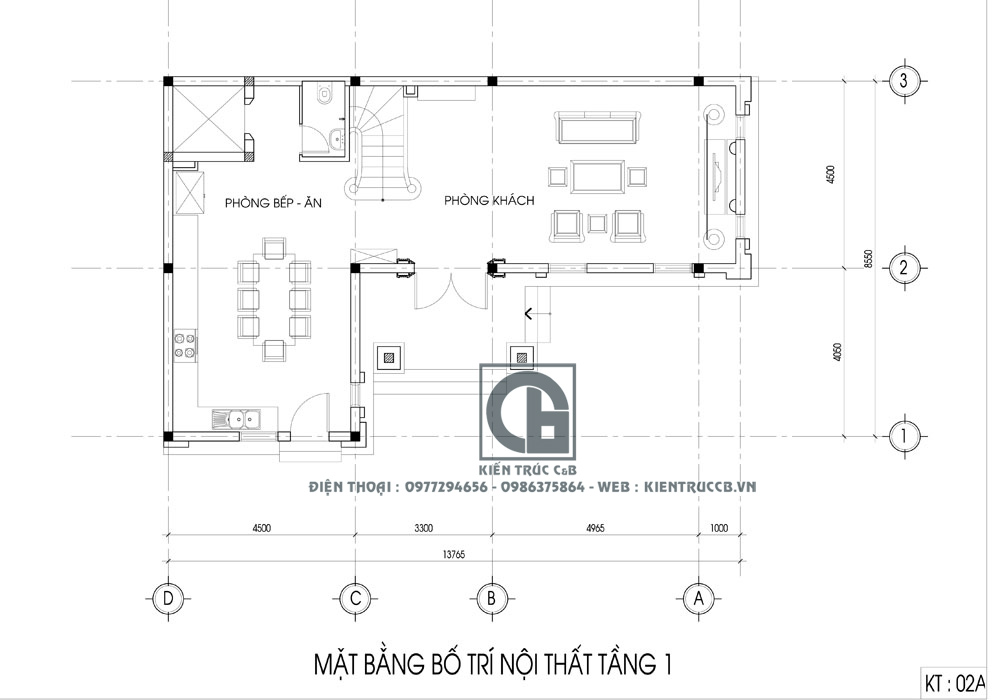
Mảnh đất có diện tích hình vuông. Nhưng để tận dụng tối đa công năng của nó, các KTS C&B đã thiết kế biệt thự với hình chữ L. Ở góc làm thêm khu vực ban công liên thông lên tầng 3. Đây cũng là nét phá cách mới mẻ của công trình. Như vậy ngôi nhà sẽ có rất nhiều mặt tiền để gia chủ thỏa sức phô bày sự giàu có và quyền uy của ngôi nhà.
Những khoảng không gian còn lại là dành cho sân chơi và tiểu cảnh. Khu vực giữa nhà được bố trí bàn trà, ô che nắng để chủ nhà có thể tiếp khách ngoài trời. Hoặc nhâm nhi ly cà phê vào buổi sáng cũng rất lãng mạn và thi vị.
Một không gian xanh mát, kết hợp hài hòa giữa kiến trúc tân cổ và thiên nhiên cây cảnh. Đây sẽ là ngôi nhà mà nhiều người mơ ước. Nếu bạn cũng mong muốn có một ngôi biệt thự riêng của mình, hãy liên hệ ngay với Kiến trúc C&B nhé.
Xem thêm các bài viết khác của chúng tôi:
->>>>> Thiết kế biệt thự vườn vô cùng độc đáo chỉ có trong giấc mơ
->>>>> Mẫu biệt thự 3 tầng kết hợp hài hòa giữa cổ điển và hiện đại
CÔNG TY TƯ VẤN KIẾN TRÚC NỘI THẤT C&B
Số 168 Nguyễn Xiển – Thanh Xuân – Hà Nội
Hotline: 0977294656 – 0986375864
Email: KIENTRUCCB@GMAIL.COM
Thông tin và nội dung bạn gửi cho chúng tôi càng cụ thể, nội dung tư vấn cho bạn càng tối ưu và chi tiết.