x
KHẢO SÁT VÀ TƯ VẤN MIỄN PHÍ
KHẢO SÁT VÀ TƯ VẤN MIỄN PHÍ

Hãy để lại thông tin dưới đây để nhận được khảo sát trực tiếp và tư vấn miễn phí từ 

Kiến trúc - Nội thất C&B

Hay phone_cal
Mục lục nội dung

MẪU THIẾT KẾ BIỆT THỰ 2 TẦNG TÂN CỔ ĐIỂN MÁI THÁI CỦA GIA ĐÌNH CÔ HẠNH

2 - 3 tỷ
0
853
Tổng quan
Chủ đầu tư
Gia đình cô Hạnh
Địa điểm
Hà Nội
Số tầng
2
Diện tích đất
160
Mã công trình
BT101623
Kích thước
16 x 10
Đơn vị thực hiện
Kiến trúc - Nội thất C&B
Năm thi công
2023
Công năng

 

Ưu điểm ngôi nhà
Mục lục nội dung
[xem]

Chủ sở hữu hôm nay mong muốn một không gian sống thể hiện địa vị và gu thẩm mỹ tinh tế của mình. Không chỉ đề cao sự bề thế, gia chủ còn ưu tiên tạo ra một môi trường sống ấm cúng và thoải mái cho cả gia đình. Tối ưu hóa không gian để đáp ứng toàn diện các hoạt động sinh hoạt hàng ngày là điều được đặt lên hàng đầu.

Đội ngũ kiến trúc sư đã cùng gia chủ lên ý tưởng thiết kế chi tiết, từ việc lựa chọn phong cách cổ điển, đến việc bố trí các không gian chức năng. Mỗi chi tiết nhỏ nhất đều được chăm chút tỉ mỉ, từ hệ thống cửa sổ, ban công đến các đường nét hoa văn trang trí. Căn biệt thự cổ điển này không chỉ là một thành quả của đội ngũ kiến trúc sư mà còn là minh chứng cho sự hợp tác thành công giữa chúng tôi và gia chủ.

 

Biệt thự mái Thái 2 tầng ấn tượng
Biệt thự mái Thái 2 tầng ấn tượng

 

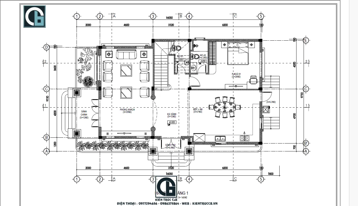
Công năng tầng 1 của mẫu biệt thự mái Thái
Công năng tầng 1 của mẫu biệt thự mái Thái
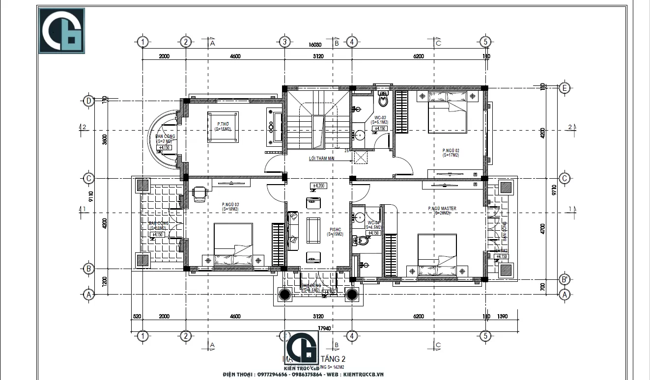
Công năng tầng 2 của mẫu biệt thự mái Thái
Công năng tầng 2 của mẫu biệt thự mái Thái

Tham khảo thêm các mẫu biệt thự đẹp tại đây.


Liên hệ với chúng tôi:

Kiến trúc C&B - Tinh tế đến từng chi tiết
1
Thiết kế sáng tạo, chuyên nghiệp
Uy tín, trách nhiệm, đảm bảo khách hàng hài lòng 100%
2
Kinh nghiệm lâu năm
Đội ngũ kiến trúc sư chuyên nghiệp, nhiệt tình, sáng tạo
3
Hồ sơ đầy đủ
Bản vẽ rõ ràng và đầy đủ các hạng mục, dễ thi công
Đánh giá - Bình luận
0 bình luận, đánh giá về MẪU THIẾT KẾ BIỆT THỰ 2 TẦNG TÂN CỔ ĐIỂN MÁI THÁI CỦA GIA ĐÌNH CÔ HẠNH
Nhấn vào đây để đánh giá
Thông tin người gửi
Liên hệ tư vấn
Liên hệ tư vấn

Chuyên viên đã sẵn sàng hỗ trợ!

Tư vấn hoàn toàn miễn phí

Gửi yêu cầu tư vấn miễn phí
Tìm kiếm nhanh
Nội dung cần tư vấn

Thông tin và nội dung bạn gửi cho chúng tôi càng cụ thể, nội dung tư vấn cho bạn càng tối ưu và chi tiết.

Đính kèm
Chưa chọn tệp nào
Chúng tôi có thể hỗ trợ bạn!
0.46512 sec| 1222.602 kb