Chuyên viên đã sẵn sàng hỗ trợ!
Tư vấn hoàn toàn miễn phí
Mẫu thiết kế biệt thự tân cổ điển 3 tầng thể hiện được đẳng cấp và sự giàu có của gia chủ với lối kiến trúc tinh tế kết hợp cùng mái hộp sang trọng. Cùng Kiến Trúc C&B tham khảo công năng và vẻ đẹp kiến trúc của mẫu biệt thự 3 tầng dưới đây.
So với những mẫu thiết kế biệt thự hiện đại thì những mẫu biệt thự mang phong cách tân cổ điển mang vẻ đẹp nguy nga, đồ sộ hơn, thể hiện được đẳng cấp cũng như sự giàu có hay vị thế của gia chủ. Vì thế, những người có khả năng tài chính cũng như có "gu" thẩm mỹ sẽ lựa chọn thiết kế biệt thự tân cổ điển.
Mẫu thiết kế biệt thự 3 tầng của gia đình anh Huy dưới đây mang vẻ đẹp chuẩn mực và những nét đặc trưng vốn có của phong cách tân cổ điển với hình khối được xây dựng vô cùng vững chãi, uy nghi, khỏe khoắn, vuông vức. (Xem thêm: Ấn tượng thiết kế biệt thự 3 tầng tân cổ mẫu mực)

Tiền sảnh chính bố trí 2 trụ cột vuông đối xứng với những chi tiết trang trí đầu cột theo kiểu cổ điển đặc trưng khá ấn tượng kết hợp cùng các đường gờ chỉ dọc cột tinh tế, trang nhã. Phía trên là bức phù điêu HUY'S VILLA với mái vòm đẹp mắt. Xung quanh nhà còn được bố trí các cột giả đắp nổi, những đường phào chỉ trang trí trên cửa sổ, ban công rất tinh xảo, mang tính thẩm mỹ cao.
Hệ thống cửa sổ vuông tròn từ tầng 1 lên tầng 3 được kết hợp rất đồng điệu và hài hòa, đây cũng là quy định và niêm luật cần tuân thủ khi thiết kế nhà đẹp theo phong cách tân cổ điển hoặc tân cổ. Cửa sử dụng chất liệu kính mang đến sự sang trọng, hiện đại cũng như giúp ngôi nhà đón ánh sáng tự nhiên.
Với mỗi ngôi nhà thì phần mái được xem là một bộ phận khá quan trọng quyết định tới vẻ đẹp tổng thể của ngôi nhà, tạo ra phong cách kiến trúc đặc trưng, thể hiện cá tính của gia chủ. Nó có thể quyết định tới vẻ đẹp của ngôi nhà trang nhã nhẹ nhàng hay nguy nga đồ sộ. Tùy theo sở thích của gia chủ, quy mô diện tích ngôi nhà mà gia chủ có thể lựa chọn kiểu mái phù hợp. Bạn có thể tham khảo thêm các loại mái biệt thự thường được sử dụng Tại link sau: /nhung-kieu-mai-nha-su-dung-khi-thiet-ke-kien-truc-biet-thu/

Mẫu biệt thự 3 tầng này sử dụng hệ mái hộp màu ghi xanh vuông vức với cửa sổ mái vòm rất ăn nhập và cân xứng tạo nên vẻ đẹp tổng thể vô cùng ấn tượng, sang trọng. Các góc mái được bố trí các cột thu lôi không chỉ đẹp mà còn giúp đảm bảo an toàn cho ngôi nhà. Viền mái được trang trí các chi tiết hoa văn rất độc đáo và tinh xảo, tạo điểm nhấn cuốn hút cho ngôi nhà. Kiểu mái hộp cũng được sử dụng rất phổ biến khi thiết kế biệt thự đẹp hiện nay.
Ngoài ra, kiểu biệt thự mái Thái, mái Nhật cũng được rất nhiều khách hàng ưa chuộng, bạn có thể tham khảo thêm một số mẫu nhà khác như:
>>> Mẫu biệt thự 3 tầng phong cách hiện đại (MSP: BT092001)
>>> Mẫu thiết kế biệt thự hiện đại 3 tầng đẹp (MSP: BT082008)
>>> Mẫu thiết kế biệt thự 3 tầng phong cách hiện đại, năng động
Đây cũng là một trong những mẫu biệt thự rất gần gũi với thiên nhiên, nhiều không gian xanh với sân vườn, vườn treo, đáp ứng nhu cầu thư giãn, nghỉ dưỡng của gia chủ.
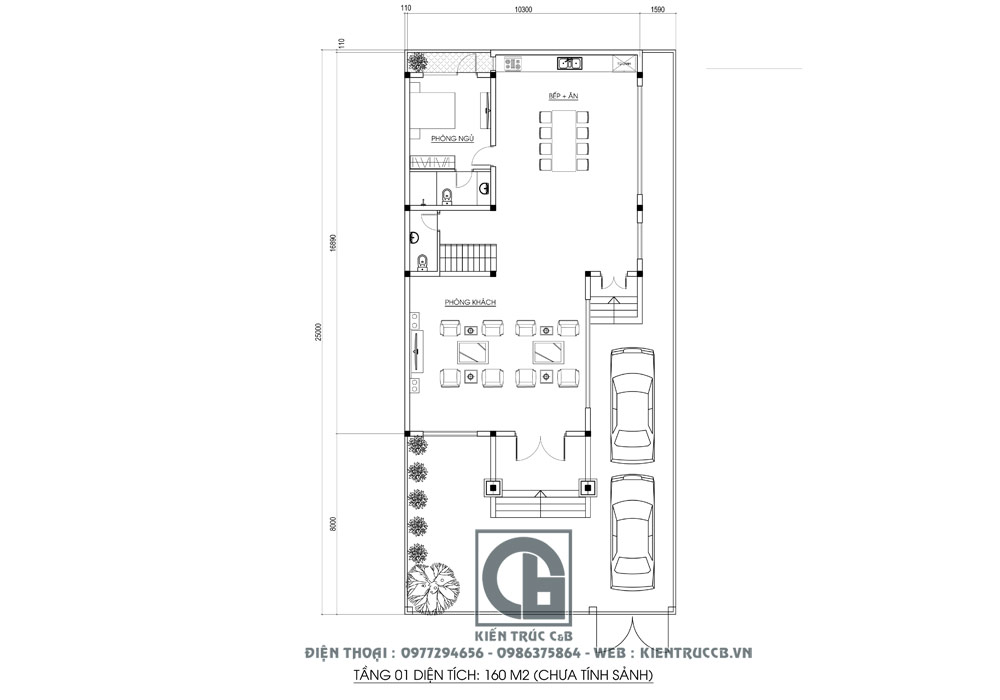
Với tổng diện tích khoảng 250m2, mẫu biệt thự của anh Huy được xây với mặt tiền khoảng 10m, sâu khoảng 16m. Công năng các phòng được bố trí như sau:
Mặt bằng tầng 1: Phòng khách, phòng bếp + ăn, phòng ngủ khép kín, WC vệ sinh
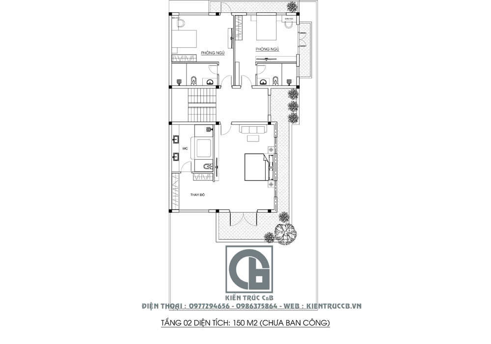
Mặt bằng Tầng 2: 03 phòng ngủ với 1 phòng Master có phòng thay đồ riêng
Mặt bằng Tầng 3: Phòng thờ ở phía trước, phòng ngủ khép kín, phòng giặt phơi và sân chơi.

Mặt bằng tầng 1

Mặt bằng tầng 2

Mặt bằng tầng 3
Trên đây là một trong những mẫu biệt thự 3 tầng tân cổ điển mà Kiến Trúc C&B muốn giới thiệu tới bạn.Chúng tôi còn rất nhiều các mẫu thiết kế biệt thự 3 tầng khác theo phong cách tân cổ điển và hiện đại, bạn có thể xem thêm trong bài viết: Tổng hợp các mẫu thiết kế biệt thự 3 tầng đẹp và ấn tượng nhất 2020
Ngoài thiết kế biệt thự, chúng tôi còn chuyên thiết kế nhà vườn, thiết kế nhà ống đẹp, thiết kế lâu đài, nhà phố... tại Hà Nội, Hưng Yên, Hải Dương... Để nhận mẫu nhà đẹp và tư vấn thiết kế nhà miễn phí, hãy gọi tới Hotline, gửi nội dung tư vấn qua email, zalo, Fanpage Kiến Trúc Nội Thất cho chúng tôi hoặc tới trực tiếp văn phòng của chúng tôi. (Tham khảo kênh Youtube Tại đây).
Với đội ngũ kiến trúc sư kinh nghiệm, nhiệt huyết và không ngừng nỗ lực học hỏi, chúng tôi tự tin sẽ mang tới cho bạn ngôi nhà như mơ ước. Hãy trao cho chúng tôi cơ hội để được đồng hành cùng bạn trên con đường chinh phục ngôi nhà lý tưởng.
Thông tin và nội dung bạn gửi cho chúng tôi càng cụ thể, nội dung tư vấn cho bạn càng tối ưu và chi tiết.