Chuyên viên đã sẵn sàng hỗ trợ!
Tư vấn hoàn toàn miễn phí
Mẫu nhà ống đẹp 5 tầng được thiết kế theo phong cách hiện đại, dạng khối hộp rất phong cách và cá tính. Mẫu nhà được gia chủ thuê thiết kế để kết hợp cho thuê. Cùng Kiến Trúc C&B tham khảo kiến trúc và công năng của mẫu nhà này.
Mẫu nhà ống đẹp được thiết kế theo phong cách hiện đại rất phổ biến hiện nay. Đây là xu hướng thiết kế nhà được nhiều gia chủ lựa chọn trong thời hiện đại. Chính vẻ đẹp đơn giản, phóng khoáng mang nét phá cánh sáng tạo đã mang đến vẻ đẹp cuốn hút cho các thiết kế nhà ống hiện nay.

Mẫu nhà ống 5 tầng này được thiết kế theo dạng khối hộp khá vuông vắn, kết cấu vững chãi với điểm nhấn nhá khá ấn tượng ở mặt tiền. Toàn bộ mảng tường và cột ở tầng 1 được ốp gạch ceramic vân đá hoa cương màu đậm rất sang trọng, tạo nên sự kiên cố và khỏe khoắn cho tổng thể ngôi nhà.
khu ban công tầng 4 được thiết kế khối hộp đua ra nhằm tăng diện tích và không gian sử dụng cho gia chủ, đồng thời tạo điểm nhấn cho mặt tiền nhà ống. Các tầng khác cũng được thiết kế ban công rất rộng, thoáng để gia chủ có thể ngắm cảnh, trồng hoa mang lại không gian sống xanh cho cả gia đình.

Ban công các tầng sử dụng hệ lan can sắt nhỏ gọn, thanh mảnh mà vẫn đẹp và đầy tính nghệ thuật. Một trong những điểm đặc biệt nữa của mặt tiền chính các mảng tường ốp gạch thẻ giả đá ở phần dầm, xung quanh cửa ban công khá bắt mắt. Dù chiếm diện tích không nhiều nhưng nó lại chính là điểm khác biệt làm nên dấu riêng của ngôi nhà.
Đây là một trong những mẫu nhà ống mặt tiền hẹp đã được đôi bàn tay Kiến Trúc sư C&B bằng sự sáng tạo không giới hạn của mình tạo nên. Còn rất nhiều thiết kế nhà ống đẹp khác có mặt tiền từ 4-5m, bạn có thể tham khảo thêm trong bài: Những mẫu thiết kế nhà phố đẹp có mặt tiền hẹp
Để có được một phương án công năng hoàn hảo, đáp ứng nhu cầu thì cần phải có sự hợp tác và thấu hiểu của gia chủ và đội ngũ kiến trúc sư. Bên cạnh đó còn phải căn cứ vào diện tích cũng như mục đích xây dựng của gia chủ.
Gia đình anh Trương muốn xây nhà ống để kết hợp ở và kinh doanh. Vì thế mặt bằng các tầng được KTS bố trí như sau:
Mặt bằng tầng 1: Tầng 1 được thiết kế với không gian mở để kinh doanh, do đó toàn bộ không gian để trống, phía cuối là khu vực thang máy, thang bộ và WC.

Mặt bằng tầng 2: Tầng 2 cũng được gia chủ làm văn phòng cho thuê nên cũng bố trí 1WC, khu vực thang máy, thang bộ.

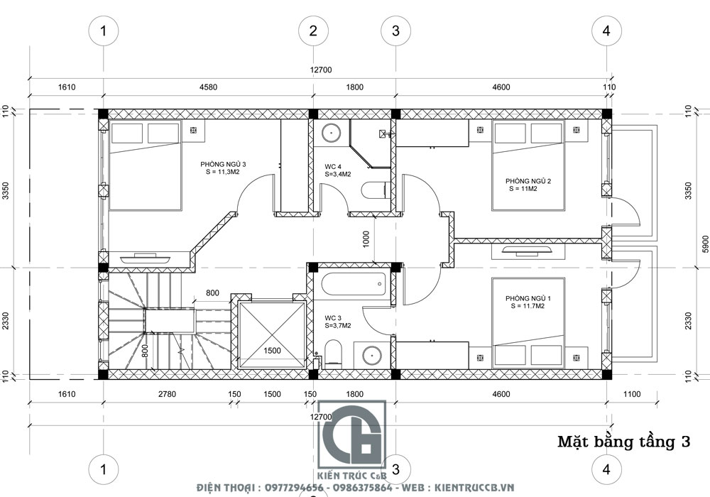
Mặt bằng tầng 3: Tầng 3 gồm 3 phòng ngủ, 1 phòng Master và 02 phòng WC chung. Sự bố trí hợp lý giúp tối ưu không gian sử dụng cho ngôi nhà.

Mặt bằng tầng 4 : Tầng 4 được bố trí phòng khách, phòng bếp + ăn. Đây sẽ là không gian sinh hoạt của cả gia đình. Các không gian rương đối rộng và bố trí khoa học.

Mặt bằng tầng 5: Tầng 5 gồm 01 phòng thờ, 01 phòng ngủ với WC khép kín, sân phơi, phòng giặt. Gia chủ vẫn có không gian để trồng cây và phơi phóng đồ.
Xem thêm: Mẫu nhà ống đẹp 4 tầng 2 mặt tiền (MSP: NO082018)
Trên đây là mẫu thiết kế nhà ống hiện đại 5 tầng. Nếu bạn muốn mặt tiền ngôi nhà có thêm những đường gờ, phào chỉ trang trí có thể xem thêm các mẫu nhà phố tân cổ điể được Kiến Trúc C&B thiết kế như Mẫu thiết kế nhà ống 5 tầng tân cổ điển (MSP: NOT092001)
Với hơn 10 năm kinh nghiệm thiết kế biệt thự, nhà ống, thiết kế nhà vườn đẹp, thiết kế lâu đài... Chúng tôi tin tưởng sẽ mang tới cho gia đình bạn một ngôi nhà hoàn hảo, đáp ứng công năng sử dụng cũng như một không gian sống lý tưởng đậm chất cá nhân.
Thông tin và nội dung bạn gửi cho chúng tôi càng cụ thể, nội dung tư vấn cho bạn càng tối ưu và chi tiết.
