Chuyên viên đã sẵn sàng hỗ trợ!
Tư vấn hoàn toàn miễn phí
Mẫu thiết kế nhà ống đẹp 4 tầng 1 tum của nhà anh Kiệt - Đông Anh được thiết kế theo phong cách tân cổ điển chuẩn mực, với đường nét hoa văn trang trí tỉ mỉ, tinh tế và sang trọng. Nhà anh Kiệt là mẫu nhà ống tân cổ điển được nhiều khách hàng yêu thích. Hãy cùng Kiến trúc Nội Thất C&B tìm hiểu chi tiết về mẫu nhà này:
Phong cách tân cổ điển là sự kết hợp hoàn hảo giữa lối kiến trúc cổ điển và hiện đại. Lấy cảm hứng từ vẻ đẹp quý phái, đồ sộ của những tòa nhà cổ điển và nét phóng khoáng của phong cách hiện đại. Sự ra đời của kiến trúc tân cổ điển chính là giải pháp tinh tế, hiệu quả trong việc tinh giản các họa tiết, phù điêu từ phong cách kiến trúc cổ điển.
Với niềm yêu thích phong cách tân cổ điển, không còn phân vân hay đắn đo gì nữa, gia chủ đã lựa chọn ngay lối kiến trúc này. Nhận thấy được những mong muốn của khách hàng, đội ngũ Kiến Trúc Nội Thất C&B đã tạo nên một mẫu thiết kế đẹp và hợp xu hướng cho gia đình anh chị.

Cái nhìn đầu tiền về ngôi nhà của anh chị là tone màu trắng của phần sơn ngoại thất với sự kết hợp của các đường nét hoa văn trang trí cực kỳ tinh xảo, đẹp mắt và thu hút người nhìn. Thức cột hai bên được đắp nổi, những đường phào chỉ được thiết kế tinh tế khiến cho ngôi nhà thêm chắc chắn, vững chãi, nhưng vẫn rất thanh thoát.
Tầng 4 của mẫu thiết kế nhà ống đẹp này được đắp phù điêu khá ấn tượng cùng với trụ cột thấp 2 bên tạo sự cân đối và hài hòa cho ngôi nhà. Ở mẫu nhà này được sử dụng hệ cửa hình vuông ở tầng 2 và 3 và hệ cửa vòm ở khu vực tầng 4. Đó là một sự kết hợp không thể thiếu trong lối kiến trúc tân cổ điển. Ở đây, gia chủ sử dụng hệ cửa sổ màu trắng làm bằng chất liệu kính cho ngôi nhà, đảm bảo thu sáng tốt và cũng là cách để khoe được vẻ đẹp nội thất.
Điểm nhấn độc đáo ở tầng 1 là lớp gạch ốp marble màu vàng nhẹ, đây là loại được sử dụng phổ biến hiện nay và được ưa chuộng rộng rãi. Loại gạch này vừa mang đến cho ngôi nhà vẻ đẹp vô cùng sang trọng, đẩm bảo tính thẩm mỹ cao mà lại tiết kiệm chi phí. Gạch marble có tuổi thọ sử dụng cao và không bị phai màu, cộng thêm độ hút nước thấp nên hạn chế được sự phát triển của rong rêu, nấm mốc và dễ dàng vệ sinh trong suốt quá trình sử dụng.
Hệ cửa đường và lan can các tang được sử dụng chất liệu sắt và bố trí thưa với tone màu đen sang trọng và quý phái, hài hòa với tone trắng của tổng thể ngôi nhà và màu vàng của phần ốp gạch tầng 1, khiến người qua đường có thể ngắm nhìn được nội thất bên trong. Ở mỗi ban công, gia chủ có thể tận dụng để trồng thêm cây cảnh để tạo không gian xanh cho toàn bộ ngôi nhà.
Kiến Trúc Nội Thất C&B còn rất nhiều mẫu nhà ống theo phong cách tân cổ điển đẹp bạn có thể tham khảo qua các bài viết dưới đây:
>>> Thiết kế nhà ống đẹp 3 tầng 1 tum tân cổ nhẹ nhàng (MSP: NT100801)
>>> Thiết kế nhà ống 3 tầng 1 tum tân cổ điển (MSP: NT190801)
Tổng thể ngôi nhà là sự kết hợp hoàn hảo với tone màu trắng chủ đạo, sự pha trộn màu vàng của gạch ốp và màu đen của lan can càng giúp cho ngôi nhà trông nổi bật hơn. Sự sang trọng, quý phái và sự giao thoa sự kiến trúc tân cổ và phong cách hiện đại tạo nên một mẫu thiết kế nhà ống đẹp hoàn hảo. Với diện tích mỗi sàn là hơn 73m2, gia đình anh Kiệt bố trí công năng các tầng như sau:
Mặt bằng tầng 1: Để trống thông vào nhà cũ
Mặt bằng tầng 2: Phòng khách, phòng bếp và ăn
Mặt bằng tầng 3: Hai phòng ngủ khép kín
Mặt bằng tầng 4: Hai phòng ngủ khép kín
Mặt bằng tầng tum: Phòng tập thể dục, sân phơi, WC
Ở tầng 1, gia chủ để không gian trống hoàn toàn và lối đi sau để vào nhà cũ và một lối thang bộ bên hông phải nhà để lên mặt bằng tầng 2. Ở khu này, gia chủ làm nơi để các phương tiện đi lại và tự thiết kế theo nhu cầu sáng tạo nội thất trang trí bên trong.

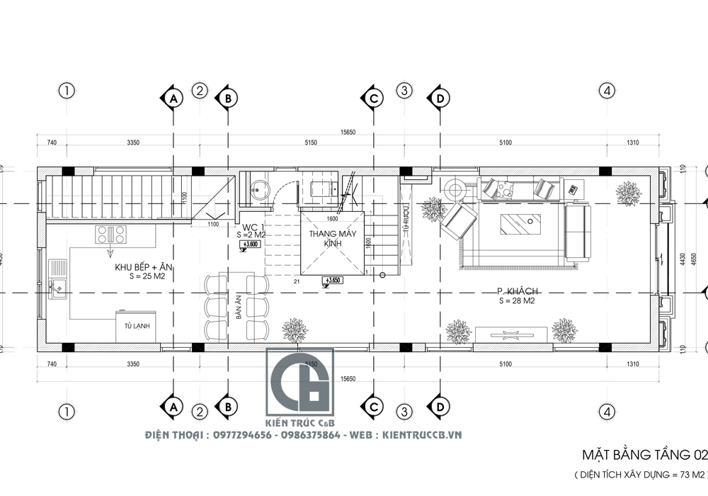
Khu vực tầng 2 gia đình anh bố trí thang máy để di chuyển cho thuận tiện, phù hợp với gia đình có người cao tuổi và trẻ nhỏ. Ở khu vực phía trước gia đình anh bố trí phòng khách rộng khoảng 20m2 với hệ ban công trước và cửa sổ hai bên kệ tivi để lấy ánh sáng tự nhiên tốt đồng thời tạo không gian thoáng đãng cho toàn bộ phòng khách. Ở đây gia đình anh cũng bố trí thêm nhiều loại cây cảnh để trang trí, tạo không khí trong lành, xanh mát. Phòng bếp được đẩy về sau với hai hệ cửa lớn giúp thoát mùi tốt và tạo không gian thoải mái mỗi lần gia đình ăn cơm.

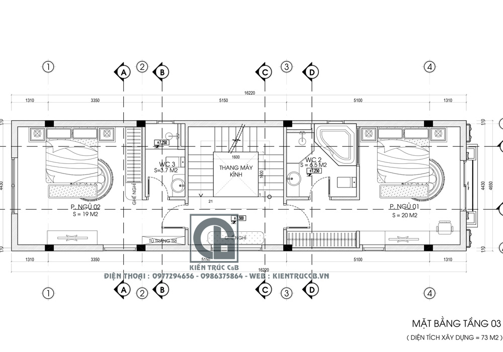
Khu vực tầng 3, gia đình anh chị bố trí hai phòng ngủ, một phòng master với đầy đủ các thiết bị vệ sinh như bồn tắm lớn, tắm đứng… Phòng này cũng có ban công phía trước, anh chị dùng không gian này để trồng các loại hoa nhỏ trang trí. Phòng ngủ phía sau cũng được anh chị thiết kế vệ sinh khép kín với 3 cửa sổ được bố trí hợp lý để lấy sáng cho căn phòng, tránh bí bách.

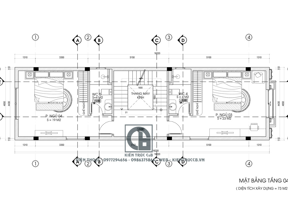
Ở mặt bằng tầng 4 gia đình anh chị cũng bố trí công năng sử dụng như khu vực tầng 3 với 2 phòng ngủ khép kín. Với diện tích lần lượt là 23m2 và 19m2. Hệ cửa sổ cũng được thiết kế hợp lý nhằm tối ưu lượng ánh sáng tự nhiên vào nhà.

Tầng tum được anh chị thiết kế 1 phòng thể dục thể thao với diện tích khoảng 14m2, đây sẽ là không gian luyện tập và thư giãn cho mỗi thành viên trong gia đình. Tầng này được thiết kế một nhà vệ sinh rất rộng rãi. Phía trước là sân chơi, nơi anh chị có thể thỏa sức sáng tạo, bày biện bàn ghế theo gu thẩm mỹ kết hợp làm khu nướng BBQ. Mỗi dịp lễ Tết hay có các buổi tụ tập bạn bè, sân chơi tầng 4 luôn là một không gian lý tưởng, vừa mát mẻ, không khí trong lành lại tiêng tư, thoải mái.
Kiến Trúc Nội Thất C&B còn có rất nhiều mẫu thiết kế biệt thự kết hợp không gian xanh và khu sân chơi rộng cho gia chủ có thể sáng tạo theo sở thích của mình. Các bạn có thể tham khảo qua các bài viết sau đây.
>>> Mẫu biệt thự 3 tầng hiện đại mái Thái theo phong cách năng động.
>>> Mẫu biệt thự hiện đại theo nhiều phương án khác nhau.
Trên đây là mẫu thiết kế nhà ống tân cổ điển 4 tầng 1 tum mà Kiến Trúc Nội Thất C&B muốn giới thiệu tới bạn. Ngoài ra chúng tôi còn chuyên thiết kế các mẫu biệt thự hiện đại, tân cổ điển, tân cổ, thiết kế nhà vườn đẹp, thiết kế lâu đài, thiết kế văn phòng, trụ sở… Với đội ngũ kiến trúc sư hơn 10 năm kinh nghiệm trong nghề, chúng tôi luôn mong muốn mang đến cho bạn những sản phẩm hoàn hảo nhất và làm hài lòng tất cả các hách hàng để luôn tin tưởng và ủng hộ Kiến Trúc Nội Thất C&B. Các bạn có thể liên hệ với chúng tôi thông qua các kênh sau đây:
Thông tin và nội dung bạn gửi cho chúng tôi càng cụ thể, nội dung tư vấn cho bạn càng tối ưu và chi tiết.