Chuyên viên đã sẵn sàng hỗ trợ!
Tư vấn hoàn toàn miễn phí
Mẫu Thiết Kế Tòa Nhà Tân Cổ Điển Kết Hợp Kinh Doanh Và Nhà Ở Đẳng Cấp – Diện Tích 220m²
Mẫu nhà phố tân cổ điển kết hợp kinh doanh đang trở thành xu hướng được nhiều gia chủ lựa chọn tại các đô thị lớn. Không chỉ đáp ứng nhu cầu sinh hoạt tiện nghi, mô hình này còn tối ưu mặt bằng để phục vụ hoạt động kinh doanh, giúp gia chủ vừa an cư vừa gia tăng giá trị thương mại của ngôi nhà.
Công trình được thiết kế theo phong cách tân cổ điển châu Âu sang trọng, với bố cục mặt tiền cân đối, hệ cột lớn vững chắc cùng các chi tiết phào chỉ tinh xảo. Sự kết hợp giữa kiến trúc cổ điển và đường nét hiện đại tạo nên vẻ đẹp đẳng cấp, thu hút ánh nhìn ngay từ lần đầu tiên.
Thông tin tổng quan công trình
Phong cách kiến trúc: Tân cổ điển châu Âu
Quy mô: 5 tầng
Diện tích xây dựng: 220m² / sàn
Công năng: Kinh doanh + nhà ở + phòng sinh hoạt
Thiết kế: Tối ưu ánh sáng, thông gió và tính thương mại
Công trình được thiết kế theo phong cách tân cổ điển châu Âu sang trọng, với bố cục mặt tiền cân đối, hệ cột lớn vững chắc cùng các chi tiết phào chỉ tinh xảo. Sự kết hợp giữa kiến trúc cổ điển và đường nét hiện đại tạo nên vẻ đẹp đẳng cấp, thu hút ánh nhìn ngay từ lần đầu tiên.
.jpg.webp)
Mặt tiền công trình gây ấn tượng mạnh với hệ cột trụ Corinthian cao lớn, kết hợp cùng các chi tiết phù điêu, hoa văn trang trí tinh tế. Gam màu trắng chủ đạo giúp tôn lên vẻ đẹp thanh lịch và sang trọng đặc trưng của kiến trúc tân cổ điển.
Các ban công được thiết kế cong mềm mại, lan can sắt nghệ thuật mạ vàng tạo điểm nhấn nổi bật cho tổng thể công trình. Hệ cửa kính lớn giúp tăng khả năng đón ánh sáng tự nhiên, đồng thời tạo sự thông thoáng cho không gian bên trong.
Tầng trệt được bố trí mặt tiền rộng rãi với cửa cuốn lớn, thuận tiện cho việc trưng bày và kinh doanh, đồng thời vẫn đảm bảo tính thẩm mỹ tổng thể của ngôi nhà.

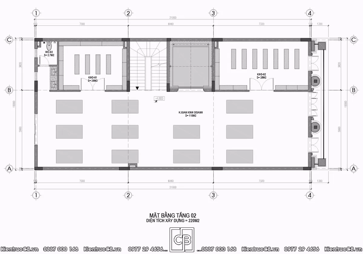
Tầng 1 được thiết kế với mục đích chính là khai thác kinh doanh hoặc cho thuê mặt bằng thương mại. Nhờ lợi thế mặt tiền rộng và thiết kế kiến trúc nổi bật, khu vực này rất phù hợp để làm:
Showroom trưng bày sản phẩm
Văn phòng giao dịch
Cửa hàng thời trang
Spa, thẩm mỹ viện
Quán café hoặc nhà hàng nhỏ
Không gian tầng 1 được bố trí mở và thông thoáng, giúp dễ dàng tùy biến theo từng loại hình kinh doanh khác nhau. Hệ cửa kính lớn phía trước vừa giúp tận dụng tối đa ánh sáng tự nhiên, vừa tạo sự kết nối trực quan với không gian bên ngoài, tăng khả năng thu hút khách hàng.
Bên cạnh khu vực kinh doanh chính, tầng 1 cũng có thể bố trí thêm khu lễ tân, quầy thu ngân, phòng kho hoặc khu vệ sinh, đảm bảo đáp ứng đầy đủ nhu cầu vận hành.
Việc đặt khu vực kinh doanh tại tầng trệt không chỉ thuận tiện cho khách hàng tiếp cận mà còn giúp tối ưu giá trị khai thác thương mại của công trình.


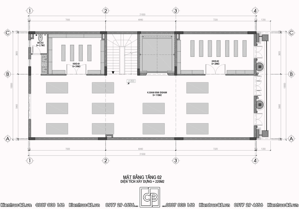
Hai tầng này có thể linh hoạt bố trí thành khu văn phòng làm việc, phòng dịch vụ hoặc căn hộ cho thuê, tùy theo nhu cầu của chủ đầu tư.
Thiết kế mặt bằng được tổ chức theo hướng không gian mở, giúp dễ dàng chia nhỏ thành các phòng chức năng khác nhau. Nhờ đó, chủ nhà có thể sử dụng các tầng này cho nhiều mục đích như:
Văn phòng công ty
Phòng đào tạo
Trung tâm tư vấn
Căn hộ dịch vụ cho thuê
Studio làm việc sáng tạo
Hệ cửa sổ lớn cùng ban công phía trước giúp các phòng luôn đón được ánh sáng tự nhiên và thông gió tốt, tạo môi trường làm việc thoải mái và chuyên nghiệp.
Ngoài ra, việc bố trí thang bộ và thang máy ở vị trí trung tâm giúp việc di chuyển giữa các tầng trở nên thuận tiện, đồng thời tạo sự tách biệt tương đối giữa khu kinh doanh và khu sinh hoạt gia đình phía trên.

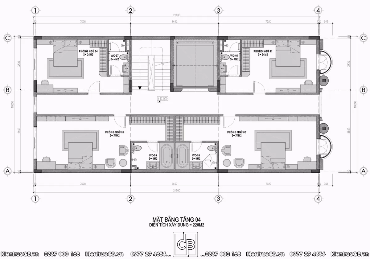
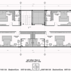
Tầng 4 được dành riêng cho không gian nghỉ ngơi của các thành viên trong gia đình, mang lại sự riêng tư và yên tĩnh cần thiết sau một ngày làm việc bận rộn.
Mặt bằng tầng này được bố trí gồm:
4 phòng ngủ rộng rãi
4 phòng vệ sinh riêng
Hành lang trung tâm kết nối các phòng
Mỗi phòng ngủ đều được thiết kế với diện tích thoải mái, có cửa sổ hoặc ban công riêng nhằm đảm bảo ánh sáng tự nhiên và khả năng lưu thông không khí.
Không gian nội thất được bố trí gọn gàng và tiện nghi, bao gồm:
Giường ngủ lớn
Tủ quần áo âm tường
Bàn làm việc hoặc bàn trang điểm
Kệ trang trí
Việc bố trí nhà vệ sinh riêng cho từng phòng mang lại sự tiện lợi tối đa cho các thành viên, đồng thời nâng cao chất lượng sinh hoạt trong gia đình.
Nhờ cách sắp xếp khoa học, tầng 4 trở thành khu vực nghỉ ngơi yên tĩnh và tách biệt hoàn toàn với khu kinh doanh bên dưới.

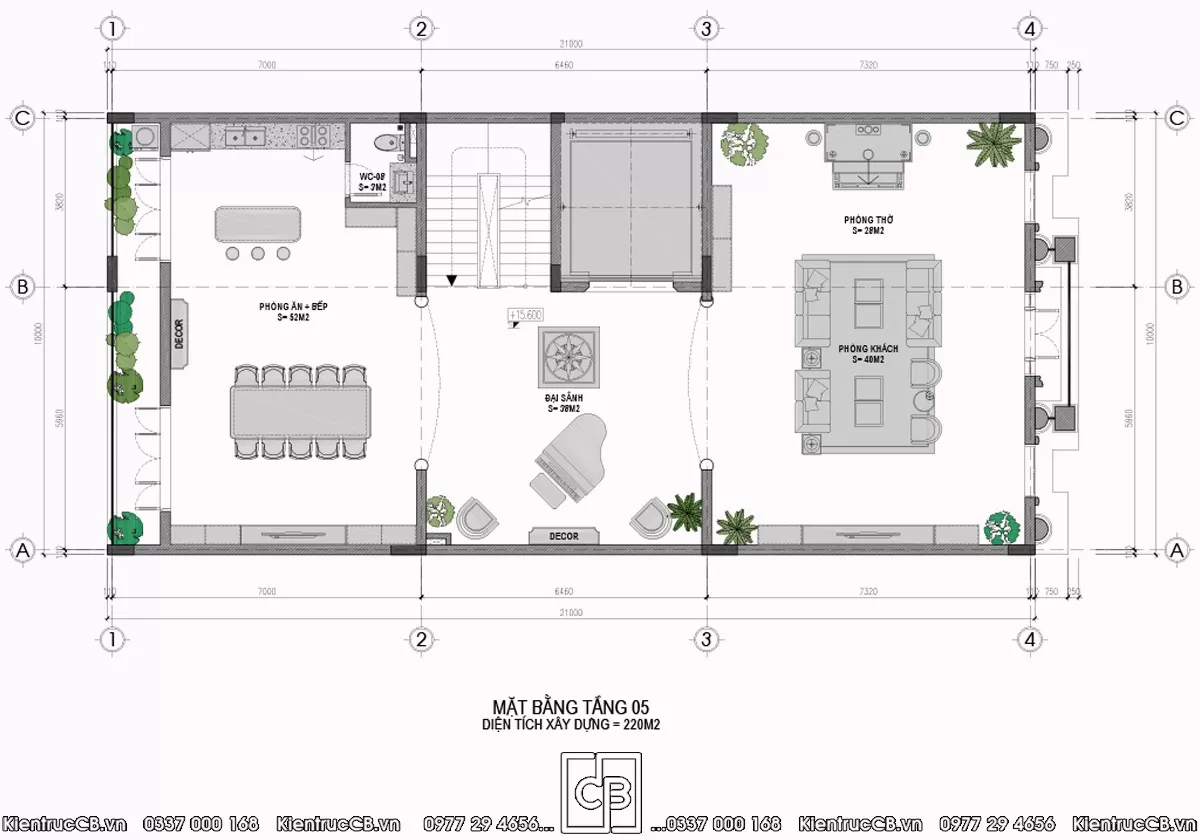
Tầng 5 được thiết kế như khu sinh hoạt chung của cả gia đình, nơi diễn ra các hoạt động sum họp, tiếp khách và thư giãn.
Phòng khách được đặt tại vị trí trung tâm với diện tích rộng rãi, tạo nên không gian tiếp đón trang trọng. Nội thất được bố trí hài hòa với:
Bộ sofa lớn
Bàn trà trung tâm
Tivi treo tường
Thảm trang trí
Hệ cửa kính và ban công giúp không gian luôn tràn ngập ánh sáng, đồng thời mở ra tầm nhìn thoáng đãng ra bên ngoài.
Đây không chỉ là nơi tiếp khách mà còn là không gian sinh hoạt, trò chuyện và thư giãn của các thành viên trong gia đình.
Khu bếp và phòng ăn được bố trí liền kề với phòng khách theo phong cách không gian mở, giúp tạo cảm giác rộng rãi và thuận tiện trong sinh hoạt.
Thiết kế bếp bao gồm:
Hệ tủ bếp hiện đại
Đảo bếp tiện lợi
Thiết bị bếp đầy đủ
Bàn ăn lớn cho 8–10 người
Không gian này rất phù hợp cho những bữa cơm gia đình ấm cúng hoặc các buổi tiệc nhỏ tiếp đón bạn bè, người thân.
Phòng thờ được bố trí tại vị trí trang trọng và yên tĩnh nhất của tầng, tách biệt tương đối với khu sinh hoạt chung.
Không gian thờ được thiết kế theo phong cách truyền thống với:
Bàn thờ gỗ tự nhiên
Hệ trang trí đơn giản nhưng trang nghiêm
Ánh sáng nhẹ nhàng
Cách bố trí này giúp đảm bảo yếu tố phong thủy, sự tôn kính và nét đẹp văn hóa truyền thống của gia đình Việt.
Với kinh nghiệm trong lĩnh vực thiết kế và thi công nhà phố, biệt thự tân cổ điển, Kiến Trúc C&B luôn mang đến những giải pháp kiến trúc tối ưu, phù hợp với nhu cầu và phong cách sống của từng gia chủ.
Chúng tôi không chỉ thiết kế một ngôi nhà đẹp mà còn tạo nên không gian sống giá trị và bền vững theo thời gian.
Thông tin liên hệ:
Website:https://kientruccb.vn/
Facebook: https://web.facebook.com/KienTrucCB?locale=vi_VN
Hottline: 0977 29 4656 - 0337 000 168.
Bạn có thể tham khảo thêm 1 số mẫu của các bài sau:
-https://kientruccb.vn/mau-thiet-ke-ket-hop-kinh-doanh-theo-phong-cach-tan-co-dien-dpj11802.html
-https://kientruccb.vn/mau-nha-ong-2-mat-tien-ket-hop-cho-thue-kinh-doanh-msp-no012102-dpj10175.html
Thông tin và nội dung bạn gửi cho chúng tôi càng cụ thể, nội dung tư vấn cho bạn càng tối ưu và chi tiết.