Chuyên viên đã sẵn sàng hỗ trợ!
Tư vấn hoàn toàn miễn phí
Mẫu thiết kế nhà ống 5 tầng của gia đình anh Trung được thiết kế theo phong cách hiện đại, năng động với diện tích khoảng 65m2/sàn. Ngôi nhà được thiết kế kiểu khối hộp, có thể dùng để ở kết hợp cho thuê. Để tìm hiểu mặt bằng công năng cũng như vẻ đẹp kiến trúc của mẫu nhà ống hiện đại này, mời bạn tham khảo qua bài viết dưới đây của chúng tôi.
Hiện nay, xu hướng thiết kế nhà phố kinh doanh đang được rất nhiều gia chủ ưa chuộng. Những kiểu nhà này thường thích hợp với mặt phố nhỏ dẹp, mặt tiền nhỏ muốn tận dụng không gian để vừa ở, vừa kinh doanh, tăng thu nhập. Hiểu được điều này, Kiến Trúc C&B đã cho ra đời mẫu thiết kế nhà phố hiện đại 5 tầng.

Cơ bản, mẫu nhà ống đẹp này được thiết kế theo dạng khối hộp - phong cách được rất nhiều gia chủ ưa chuộng hiện nay. Toàn bộ mặt tiền được chăm chút rất tỉ mỉ và tinh tế với các mảng tường ốp gạch thẻ tối màu. Để tạo sự vững chãi, đồ sộ cho ngôi nhà thì tầng 1 sẽ được ốp gạch men tối màu sang trọng, sạch sẽ. Đây cũng là một trong những mẫu nhà phố có mặt tiền hẹp nhưng rất đẹp. Bạn có thể tham khảo thêm các mẫu khác trong bài: Những mẫu nhà phố đẹp có mặt tiền 5m

Ngôi nhà cũng được làm khá nhiều ban công và lô gia trên tầng 2, 4, 5 để tăng không gian xanh mát cho ngôi nhà. Một trong những ý tưởng hay mà Kiến Trúc sư đưa ra chính là tạo các khối hộp nhô ra so với mặt đất để tăng diện tích sử dụng, đồng thời mang lại mặt tiền ấn tượng.

Toàn bộ cửa sổ của ngôi nhà được sử dụng cửa kính cường lực trong suốt để lấy ánh sáng cho không gian trong nhà cũng như giúp gia chủ khéo léo khoe thiết kế nội thất bên trong bao gồm rèm cửa, bàn ghế sofa...
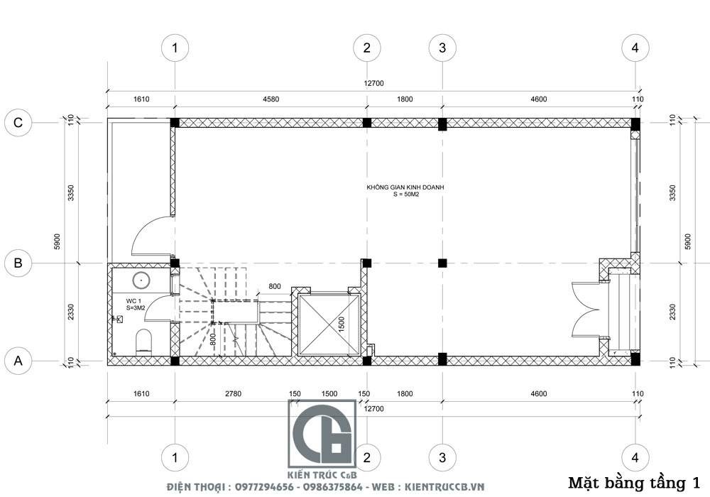
Mục đích xây nhà ống 5 tầng của anh Trung là để kết hợp ở và cho thuê kinh doanh tầng 1, 2. Do đó toàn bộ mặt bằng tầng 1 và 2 sẽ được để trống với không gian mở để cho thuê.

Tầng 1 được thiết kế thêm WC có diện tích 3m2. Ngoài ra còn có khu vực thang máy, thang bộ.

Tầng 2 có không gian cho thuê 46m2, ngoài ra còn WC 4m2 và khu vực thang máy, thang bộ

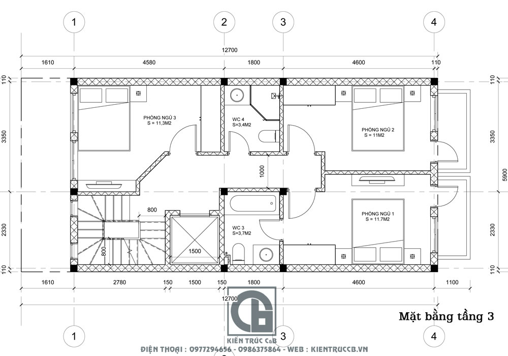
Mặt bằng tầng 3 gồm: 1 phòng ngủ khép kín, 2 phòng ngủ nhỏ có WC chung. Tầng này được gia chủ dùng để cho thuê làm nhà nghỉ hoặc chung cư mini nên các phòng có diện tích tương đối nhỏ, từ 11 - 15m2.

Tầng 4 và 5 được gia chủ thiết kế làm nơi sinh hoạt, nghỉ ngơi của cả gia đình. Trong đó Tầng 4 gồm phòng khách + phòng bếp có tổng diện tích 46m2 với 1 WC. Tầng 5 gồm phòng ngủ, phòng thờ, sân phơi và sân giặt. Với cách phân chia không gian và phương án mặt bằng này, gia chủ có thể để ở, cho thuê rất hợp lý.

Trên đây là một trong những mẫu thiết kế nhà phố đẹp được KTS của Kiến Trúc C&B nghiên cứu khá kỹ lưỡng dựa vào nhu cầu và mong muốn của gia chủ. Nếu bạn cũng dự định thiết kế nhà lô phố hiện đại kết hợp ở cho thuê, bạn cần nắm được nhiều vấn đề như diện tích thiết kế phù hợp, phong cách của ngôi nhà, chi phí thiết kế nhà phố... Những vấn đề này đã được Kiến Trúc C&B tổng hợp trong bài viết: Những điều cần lưu ý khi thiết kế nhà lô phố hiện đại – mẫu nhà lô phố đẹp hoặc xem thêm trong bài 10 mẫu nhà ống ấn tượng – Kinh nghiệm thiết kế nhà ống đẹp không thể bỏ qua.
Ngoài thiết kế nhà ống đẹp, chúng tôi còn chuyên thiết kế nhà vườn, thiết kế biệt thự đẹp, thiết kế khách sạn, thiết kế lâu đài, thiết kế nội thất biệt thự... Với hơn 10 năm kinh nghiệm trong ngành, chúng tôi đã mang đến cho hàng trăm khách hàng những công trình ấn tượng, độc đáo, mang dấu ấn riêng của từng gia chủ. Đến với Kiến Trúc C&B, bạn sẽ được tư vấn một cách nhiệt tình nhất, với chi phí tối ưu và đáp ứng nhu cầu sử dụng của gia chủ một cách hoàn hảo nhất.
Để nhận mẫu nhà đẹp và tư vấn thiết kế nhà miễn phí, bạn vui lòng liên hệ trực tiếp với chúng tôi qua Hotline, email, Fanpage Facebook Kiến Trúc Nội Thất C&B hoặc tới trực tiếp văn phòng của chúng tôi.
Thông tin và nội dung bạn gửi cho chúng tôi càng cụ thể, nội dung tư vấn cho bạn càng tối ưu và chi tiết.