Chuyên viên đã sẵn sàng hỗ trợ!
Tư vấn hoàn toàn miễn phí
Trong xu hướng kiến trúc đương đại, biệt thự tân cổ điển vẫn luôn giữ vững vị thế là lựa chọn hàng đầu cho những chủ đầu tư yêu thích vẻ đẹp tinh tế, sang trọng nhưng không quá phô trương. Hôm nay, Kiến trúc - Nội thất C&B xin giới thiệu đến quý khách hàng một siêu phẩm biệt thự phố 2 tầng với những đường nét kiến trúc đầy mê hoặc.

Ngôi biệt thự gây ấn tượng mạnh ngay từ cái nhìn đầu tiên bởi gam màu trắng sứ chủ đạo. Đây là tông màu kinh điển của phong cách tân cổ điển, không chỉ giúp công trình trông thanh thoát hơn mà còn làm nổi bật các chi tiết phào chỉ và hoa văn trang trí.
Hệ mái Nhật xanh ghi: Sự kết hợp hoàn hảo giữa kiểu dáng chữ A truyền thống và màu sắc hiện đại, giúp điều hòa không khí và chống thấm hiệu quả.
Hệ thống cửa vòm: Những khung cửa sổ và cửa ban công hình vòm bán nguyệt với khung nhôm kính đen tạo điểm nhấn mềm mại, đồng thời tối ưu hóa ánh sáng tự nhiên cho không gian nội thất.

2. Chi tiết thiết kế ấn tượng
Điểm đặc biệt của mẫu thiết kế này nằm ở sự tỉ mỉ trong từng chi tiết nhỏ:
Thay vì các loại lan can bê tông truyền thống, chúng tôi sử dụng lan can hợp kim nhôm đúc mạ vàng sang trọng. Các họa tiết hoa văn được uốn lượn tinh xảo, tạo nên vẻ đẹp quyền quý cho khu vực ban công tầng 2.
Các hệ cột vuông được thiết kế với những đường rãnh soi dọc tinh tế, tạo cảm giác bề thế, vững chãi nhưng vẫn giữ được sự thanh thoát cho tổng thể mặt tiền.
Hệ thống đèn tường trang trí mang phong cách cổ điển được bố trí dọc lối vào và các góc cột, tạo nên hiệu ứng lung linh khi về đêm. Khoảng sân nhỏ phía trước được tận dụng tối đa để trồng cây cảnh, mang lại không gian xanh mát cho ngôi nhà phố.




Một thiết kế hoàn hảo không chỉ nằm ở vẻ ngoài lộng lẫy mà còn phải đảm bảo sự tiện nghi trong quá trình sử dụng. Với mẫu biệt thự phố này, đội ngũ kiến trúc sư tại C&B đã tính toán kỹ lưỡng từng mét vuông để mang lại không gian sống thông thoáng, khoa học và hợp phong thủy cho gia chủ.
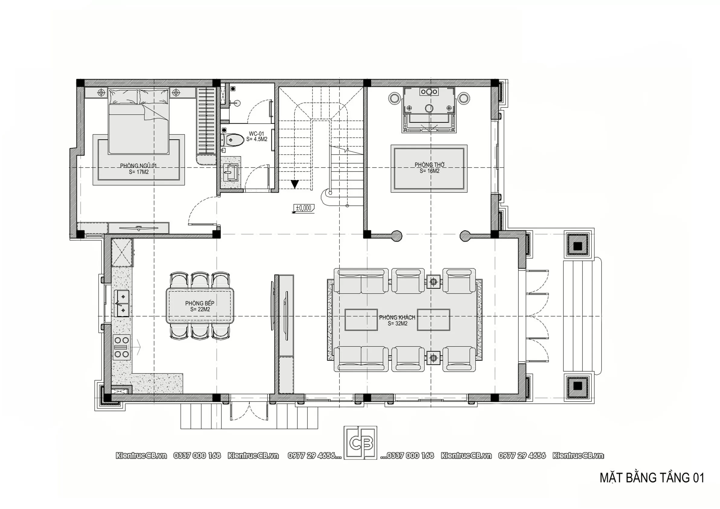
Dưới đây là chi tiết phương án bố trí mặt bằng công năng:

Tầng 1 được thiết kế là trung tâm sinh hoạt chính của gia đình, nơi đón tiếp khách quý và duy trì lửa ấm trong mỗi bữa ăn.
Phòng khách : Ngay sau sảnh chính là phòng khách rộng rãi. Với diện tích lên tới $32m^2$, không gian này đủ sức chứa những bộ sofa lớn, tạo vẻ uy nghi và sang trọng.
Phòng bếp & Ăn : Được ngăn cách tương đối với phòng khách bằng hệ kệ tivi, tạo sự riêng tư nhưng vẫn giữ được độ thoáng. Khu vực bếp nấu bố trí theo chữ L hiện đại, tối ưu dây chuyền công năng nấu nướng.
Phòng thờ : Điểm đặc biệt là phòng thờ được bố trí ngay tại tầng 1, thuận tiện cho việc thờ cúng và chăm sóc của gia chủ, đồng thời thể hiện sự tôn nghiêm.
Phòng ngủ 01 : Dành cho người lớn tuổi hoặc làm phòng ngủ dự phòng, giúp hạn chế việc di chuyển cầu thang.
Tiện ích khác: Nhà vệ sinh chung ($4.5m^2$) được đặt cạnh cầu thang, đảm bảo sự kín đáo và tiện lợi.

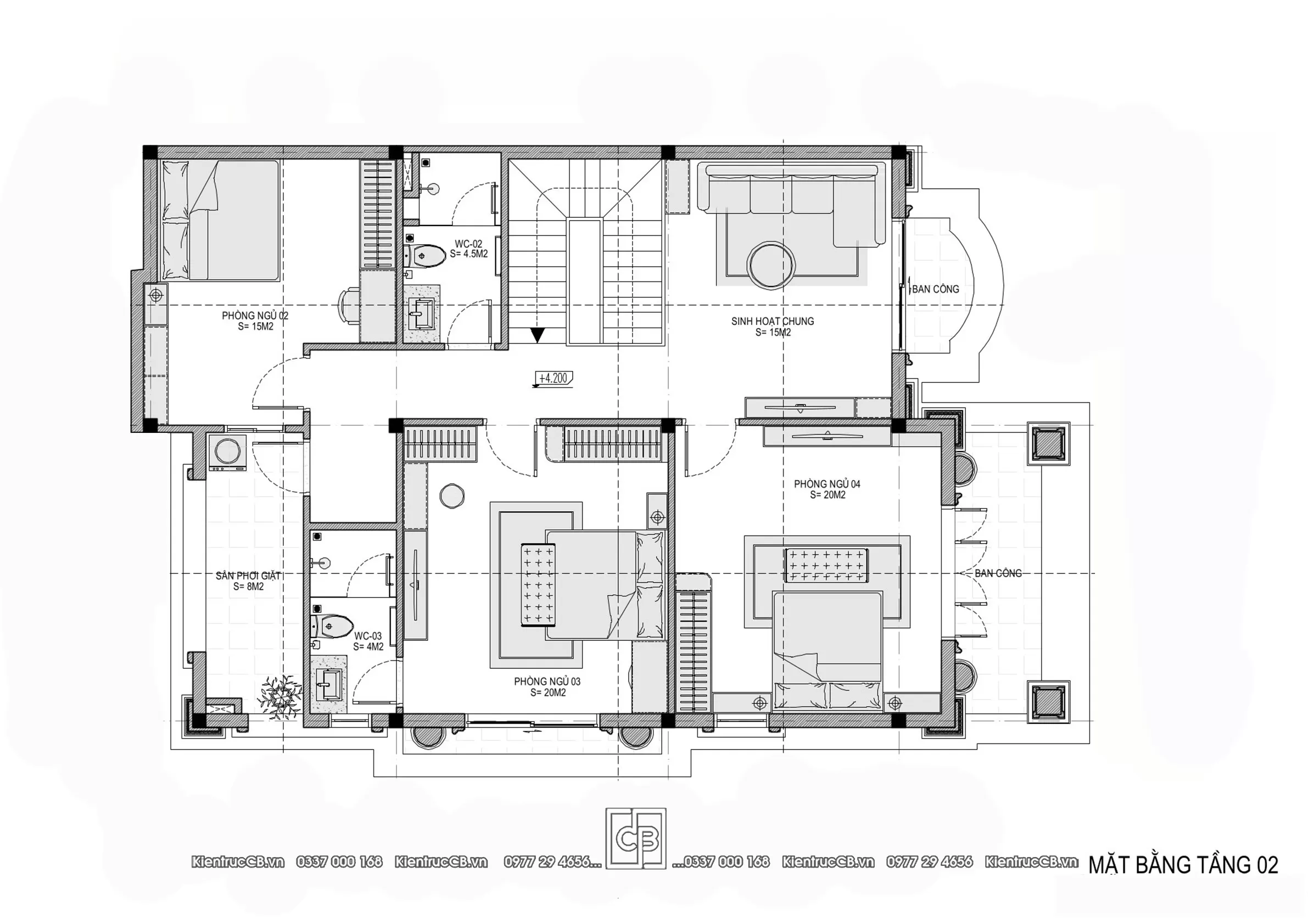
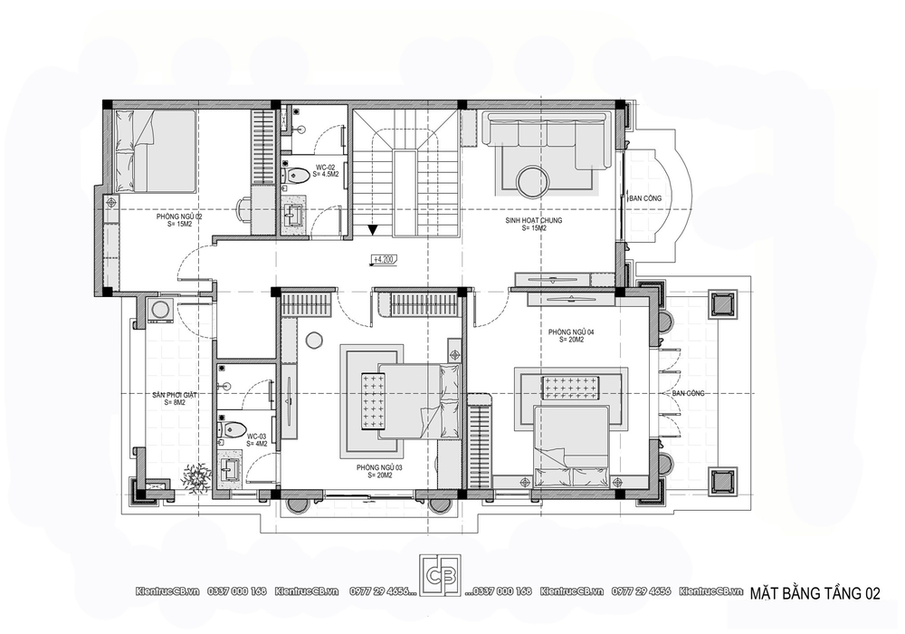
Nếu tầng 1 là nơi đối ngoại thì tầng 2 được quy hoạch hoàn toàn cho sự nghỉ ngơi và thư giãn của các thành viên.
Phòng sinh hoạt chung : Nằm ngay sảnh thang, đây là nơi gia đình quây quần trò chuyện, xem phim cùng nhau trước khi đi ngủ.
Hệ thống phòng ngủ:
Phòng ngủ 03 & 04 : Hai phòng ngủ lớn với diện tích rộng rãi, dễ dàng bố trí giường đôi, bàn làm việc và tủ quần áo kịch trần. Cả hai phòng đều sở hữu ban công riêng thoáng đãng.
Phòng ngủ 02 : Phù hợp làm phòng cho con cái với cửa sổ lớn lấy sáng tự nhiên.
Sân phơi giặt : Một khu vực không thể thiếu trong nhà phố, được bố trí phía sau vừa đảm bảo công năng vừa giữ thẩm mỹ cho mặt tiền.
Hệ thống WC: Tầng 2 sở hữu 02 nhà vệ sinh ($4m^2$ - $4.5m^2$) được phân bổ thông minh để phục vụ nhu cầu sinh hoạt nhanh chóng cho các phòng ngủ.
Một ngôi nhà đẹp không chỉ dừng lại ở bản vẽ, mà là sự tổng hòa giữa thẩm mỹ tinh tế và công năng sử dụng hoàn hảo. Với mẫu thiết kế biệt thự tân cổ điển 2 tầng này, Kiến trúc - Nội thất C&B tự hào mang đến một giải pháp không gian sống đẳng cấp, đáp ứng trọn vẹn mong muốn của gia chủ. Hãy để chúng tôi đồng hành cùng bạn trên hành trình kiến tạo tổ ấm mơ ước.
Liên hệ ngay hôm nay để nhận tư vấn chuyên sâu và báo giá ưu đãi nhất!
Mẫu nhà tham khảo thêm:
Thông tin và nội dung bạn gửi cho chúng tôi càng cụ thể, nội dung tư vấn cho bạn càng tối ưu và chi tiết.