Chuyên viên đã sẵn sàng hỗ trợ!
Tư vấn hoàn toàn miễn phí
Mẫu nhà ống tân cổ điển được thiết kế 3 tầng khá bắt mắt với màu trắng tinh khiến của mặt tiền cùng hệ mái Thái màu ghi xám. Cùng Kiến Trúc C&B tìm hiểu rõ hơn về nét đẹp Kiến Trúc và công năng của ngôi nhà.
Thiết kế nhà ống tân cổ điển cũng là một trong những xu hướng thiết kế nhà hiện nay, nó cũng là dòng nhà khá "kén" gia chủ bởi nó đòi hỏi con mắt thẩm mỹ tinh tế, khả năng tài chính vững vàng cũng như đội ngũ kiến trúc sư cần phải chuyên nghiệp và có khả năng sáng tạo vượt trội.
Mẫu nhà ống 3 tầng phong cách tân cổ điển của chị Thoa dưới đây đã được Kiến Trúc C&B dành rất nhiều tâm huyết, công sức và được gia chủ rất ưng ý.

Ngôi nhà sử dụng kiểu mái Thái màu ghi xám khá phổ biến hiện nay, nó cũng thường sử dụng khi thiết kế biệt thự hiện đại hoặc biệt thự tân cổ điển, thiết kế nhà vườn (Xem thêm: Những mẫu thiết kế biệt thự mái Thái đẹp đang “làm mưa làm gió” năm nay). Mái có độ dốc tiêu chuẩn giúp chắn nắng, làm mát và tạo form cho ngôi nhà.
Mặt tiền của ngôi nhà khoảng 8m được chia thành 2 khối chính và phụ rất chắc chắn, sang trọng, phân khu rõ ràng. Khối chính và khối phụ được tách rời nhưng lại rất ăn nhập với nhau nhờ các đường nét kiến trúc tối giản, những đường gờ phào chỉ trên cột và dầm đồng nhất với nhau, cùng với màu trắng hiện đại, tân thời.
Ngoài ra, hệ ban công hoa văn sắt ấn tượng kết hợp cùng vườn treo ở phía trên ngôi nhà cũng được thiết kế rất bắt mắt, là nơi gia chủ có thể thỏa mãn sở thích trồng cây cũng như ngắm cảnh, thưởng trà. Những khoảng trống trước mặt tiền và trên ban công được tận dụng tối đa để trồng vây, mang lại không gian sống xanh cho ngôi nhà. Bạn có thể tham khảo thêm các mẫu Biệt thự kết hợp vườn treo Tại đây.
Với diện tích khoảng 90m2/sàn, gia chủ có nhu cầu bố trí công năng các tầng như sau:
Tầng 1: Phòng khách, phòng bếp + ăn, phòng ngủ, WC chung.
Tầng 2: 03 phòng ngủ
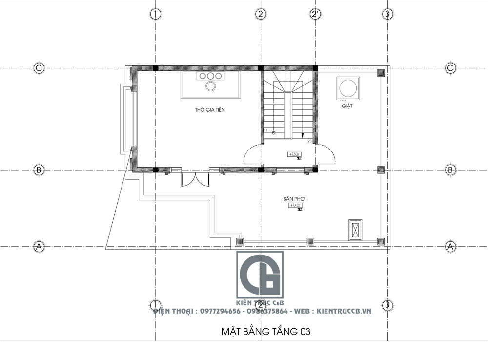
Tầng 3: Phòng thờ, phòng giặt phơi, sân chơi.
Phương án mặt bằng tầng 1

Phương án mặt bằng tầng 2

Phương án mặt bằng tầng 3

Việc đưa ra phương án mặt bằng phù hợp với nhu cầu của gia chủ có vai trò khá quan trọng, không chỉ giúp gia chủ tối ưu diện tích sử dụng mà còn đảm bảo sự tiện lợi cho sinh hoạt sau này.
Trên đây là một trong những mẫu nhà ống 3 tầng được thiết kế theo phong cách tân cổ điển ấn tượng đã được Kiến Trúc C&B dồn khá nhiều tâm huyết. Nếu bạn cũng thích xây nhà ống theo phong cách này, có thể tham khảo thêm nhiều mẫu nhà ống đẹp tại Link sau: /du-an/nha-pho/
Ngoài ra, chúng tôi còn chuyên thiết kế biệt thự, thiết kế nhà vườn, thiết kế khách sạn, lâu đài, thiết kế nhà ống hiện đại... Để nhận mẫu thiết kế nhà đẹp và tư vấn miễn phí, bạn vui lòng gọi tới Hotline của công ty, gửi nội dung tư vấn qua Email, Zalo, Fanpage Kiến Trúc Nội Thất C&B hoặc tới trực tiếp văn phòng của chúng tôi.
Thông tin và nội dung bạn gửi cho chúng tôi càng cụ thể, nội dung tư vấn cho bạn càng tối ưu và chi tiết.
