Chuyên viên đã sẵn sàng hỗ trợ!
Tư vấn hoàn toàn miễn phí
Mẫu nhà ống 3 tầng 1 tum của gia đình chị Huyền tại Đông Anh, Hà Nội được thiết kế theo phong cách hiện đại với mặt tiền khoảng 3,5m. Cùng Kiến Trúc C&B tham khảo công năng của mẫu nhà phố đẹp này qua bài viết dưới đây của Kiến Trúc C&B.
Mẫu nhà ống 3 tầng 1 tum của gia đình chị Huyền được thiết kế theo phong cách hiện đại trẻ trung. Với diện tích xây nhà khoảng hơn 50m2 cùng mặt tiền khá nhỏ chỉ 3,5m, đội ngũ Kiến trúc sư đã phải rất khéo léo trong việc thiết kế mặt tiền làm sao cho cảm giác không gian và diện tích được nới rộng.

Phối cảnh mặt tiền mẫu nhà ống 3 tầng
Theo đó, Kiến Trúc C&B đã đưa ra 2 phương án phối cảnh mặt tiền để gia chủ có nhiều lựa chọn hơn trong việc lựa chọn ngôi nhà trong tương lai của mình.
Ở phương án 1: Tầng 1 được ốp gạch ceramic vân đá màu tối rất sang trọng. Trong khi tầng 2 và 3 lựa chọn màu trắng tương phản nhưng lại có sự tương đồng về tone màu nên khi nhìn vào người nhìn sẽ không có cảm giác bị mỏi hay chóe mắt. Mảng tường tầng 2 cũng rất thu hút với gạch thẻ được ốp xung quanh cửa sổ rất nền nã, thanh lịch.
Khu vực tầng 3 được tạo điểm nhấn bằng sân vườn với lan can ban công sắt cùng các lan gỗ trang trí rất đẹp mắt. Đây cũng là một trong những mẫu nhà ống đẹp có mặt tiền khá hẹp. Nếu mảnh đất của gia đình bạn có mặt tiền khoảng 4-5m, có thể tham khảo thêm các Mẫu thiết kế nhà phố đẹp mặt tiền 5m hoặc Mẫu nhà ống đẹp 4 tầng phong cách hiện đại (MSP: NO082016)

Với phương án phối cảnh 2 chỉ thay đổi trong cách bố trí cửa sổ, cửa ban công. Với sự phá cách một chút của cửa chính, hình dạng cửa sổ cũng như cách trang trí mặt tiền đã tạo nên sự mới mẻ, lạ lẫm cho mặt tiền nhà ống.
Xem thêm: Ngắm những mẫu thiết kế mặt tiền nhà ống đẹp
Đối với các mẫu nhà ống có mặt tiền hẹp, sâu thì việc phân chia công năng bên trong rất quan trọng. Nó đòi hỏi trình độ cũng như kinh nghiệm của kiến trúc sư trong việc phân chia diện tích, bố trí phòng hợp lý, khoa học để không gian bên trong không bị bí bách và thiếu sáng.
Căn cứ vào nhu cầu thực tế của gia chủ và diện tích thiết kế nhà ống, kiến trúc sư C&B đã đưa ra phương án thiết kế nhà ống lệch tầng. Ưu điểm của việc xây nhà ống lệch tầng là giúp nới rộng không gian rất hiệu quả, tối ưu diện tích sử dụng, giúp không gian nhà rất thoáng, có thể nhìn thông nhau từ tầng nọ xuống tầng kia. Đây cũng là một lợi thế để gia chủ có thể trưng bày đồ nội thất đẹp, tạo điểm nhấn trong nhà. Bạn có thể tham khảo thêm thông tin trong bài viết Có nên thiết kế nhà ống lệch tầng?

Công năng các tầng cụ thể như sau:
Mặt bằng tầng 1: Tầng 1 được bố trí khu vực sân trước, tiếp theo là lối vào phòng khách, cuối nhà là khu bếp + phòng ăn. WC được bố trí ở cuối nhà rất hợp lý. Ngoài ra để lấy gió và ánh sáng thì cuối nhà KTS đã bố trí thêm giếng trời nhỏ. Thiết kế giếng trời trong nhà phố cũng là lựa chọn của khá nhiều gia chủ khi mặt bằng mỗi sàn không rộng. Nếu bạn cũng dự định xây giếng trời, có thể tham khảo thêm bài viết Kinh nghiệm xây giếng trời trong các mẫu thiết kế nhà phố hiện đại

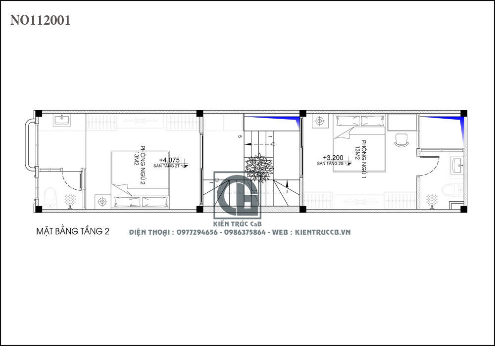
Mặt bằng tầng 2: Tầng 2 được bố trí 2 phòng ngủ với diện tích khoảng 13m2 mỗi phòng, có WC khép kín.

Mặt bằng tầng 3: Gồm 01 phòng ngủ khép kín, phòng thờ có diện tích khoảng 10m2 cùng sân ban công khoảng 7m2.

Mặt bằng tầng tum: Tầng tum được thiết kế làm sân chơi, sân phơi cũng như khu vực để téc nước hoặc dàn nước nóng năng lượng mặt trời.

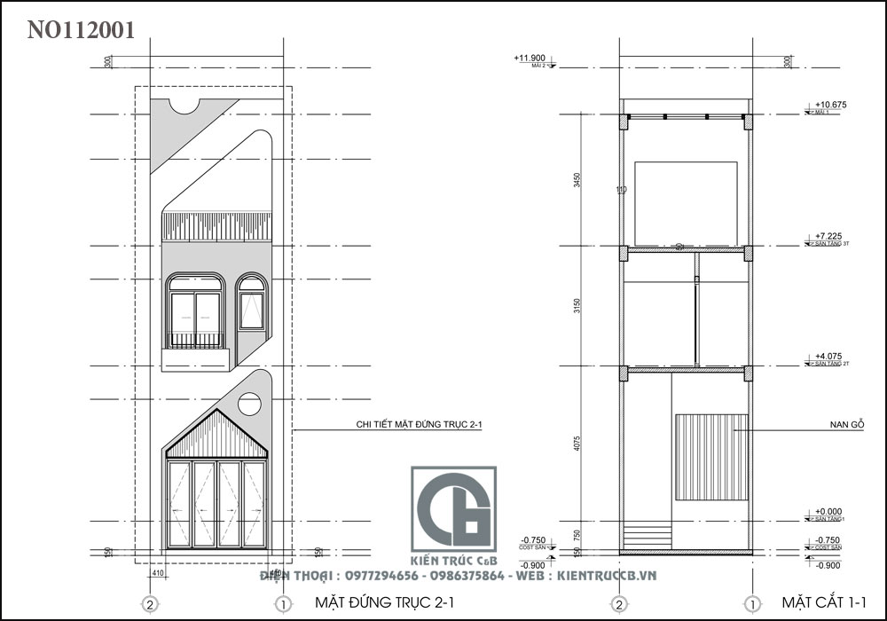
Mặt cắt ngang của mẫu nhà ống

Mặt đứng của mẫu nhà ống
Trên đây là mẫu nhà ống đẹp 3 tầng 1 tum được thiết kế lệch tầng. Ngoài nhà ống, Kiến Trúc C&B còn chuyên thiết kế biệt thự, thiết kế nhà vườn, thiết kế lâu đài, khách sạn, nhà hàng, thiết kế nhà lô phố... Với hơn 10 năm kinh nghiệm trong ngành kiến trúc - nội thất, Kiến Trúc C&B đã tạo nên hàng trăm công trình chất lượng, ấn tượng, mang đậm dấu ấn riêng của từng gia chủ.
Hãy liên hệ ngay với Kiến Trúc C&B qua Hotline, Email, Zalo, Fanpage Kiến Trúc Nội Thất C&B hoặc kênh Youtue của chúng tôi để được tham khảo các mẫu thiết kế nhà đẹp và tư vấn thiết kế nhà miễn phí.
Thông tin và nội dung bạn gửi cho chúng tôi càng cụ thể, nội dung tư vấn cho bạn càng tối ưu và chi tiết.