Chuyên viên đã sẵn sàng hỗ trợ!
Tư vấn hoàn toàn miễn phí
Mẫu nhà ống 3 tầng đẹp được thiết kế theo phong cách hiện đại với hệ mái bằng lệch rất cá tính và đặc biệt. Cùng Kiến Trúc C&B tìm hiểu rõ hơn phương án mặt bằng và ý đồ của kiên trúc sư trong mẫu nhà này.
Với diện tích khoảng 95m2/sàn, mẫu nhà ống đẹp này được thiết kế gồm 3 tầng với công năng các tầng được phân chia cụ thể như sau:

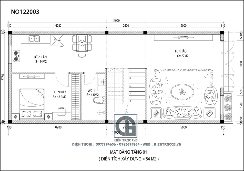
Mặt bằng tầng 1: Bước vào cửa nhà là phòng khách có diện tích khoảng 27m, tiếp đó là khu cầu thang bộ ngăn cách không gian phòng khách với khu vực bên trong. Bên cạnh cầu thang bố trí WC có diện tích 4,5m, kế bên là phòng ngủ nhỏ có diện tích 13m2. Bên phải là khu bếp và phòng ăn.

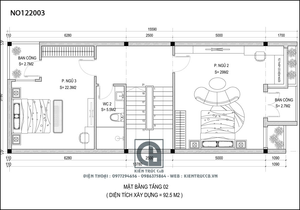
Mặt bằng tầng 2: Tầng 2 được bố trí 2 phòng ngủ có diện tích lần lượt là 29m2 và 22m2 với WC chung. Để không gian bên trong nhà không bị thiếu ánh sáng, bí bách hay ngột ngạt, kiến trúc sư đã bố trí thêm logia và ban công ở cả 2 phòng ngủ. Thiết kế nhà có không gian xanh cũng đang là xu hướng kiến trúc mới nhất khi thiết kế biệt thự, thiết kế nhà vườn hiện nay. Bạn có thể tham khảo thêm Tổng hợp các mẫu thiết kế biệt thự kết hợp vườn treo ấn tượng

Mặt bằng tầng tum: Tầng tum gia chủ dùng để bố trí phòng thờ có diện tích khoảng 7,9m, phía trước là sân vườn để gia chủ có thể trồng cây cảnh, hoa, làm sân chơi hoặc đặt bàn trà. Phí sau là khu giặt phơi.

Mẫu nhà này được thiết kế thêm giếng trời. Việc bố trí thêm giếng trời mang đến rất nhiều lợi ích như giúp nhà thông thoáng, lấy ánh sáng và gió tự nhiên, tạo điểm nhấn cho ngôi nhà. Tuy nhiên trước khi xây giếng trời gia chủ cũng cần cân nhắc những ưu nhược điểm, tìm đến sự tư vấn của kiến trúc sư để có lựa chọn hợp lý.
Xem thêm: Kinh nghiệm xây giếng trời trong các mẫu thiết kế nhà phố hiện đại
Ưu điểm của những mẫu thiết kế nhà ống hiện đại là vẻ đẹp năng động, phóng khoáng của mặt tiền. Các đường nét trang trí hầu như rất đơn giản, không rườm rà nhưng lại khá thanh thoát và thể hiện được sự sang trọng, tối giản, phù hợp với xu hướng hiện đại. Bạn có thể tham khảo thêm Tổng hợp mẫu nhà ống ấn tượng – Kinh nghiệm thiết kế nhà ống đẹp không thể bỏ qua.

Tầng 1 của ngôi nhà được ốp gạch thẻ màu nâu tối rất sang trọng và thanh lịch, sử dụng cửa kính trong suốt giúp gia chủ phô bày nội thất bên trong. Lên tầng 2 là khối hộp đua ra tạo điểm nhấn cho mặt tiền của ngôi nhà. Khối nhô ra dạng hộp sử dụng tone màu trắng kết hợp rất hài hòa cùng tone màu nâu trầm. Phương án kiến trúc này cũng giúp tăng diện tích không gian sử dụng cho ngôi nhà.

Mặt tiền của ngôi nhà còn trở nên vô cùng thu hút và ấn tượng với phần mái lệch cùng các dải bê tông dạn nan trang trí vừa lấy gió và ánh sáng vừa decor cho ngôi nhà thêm sinh động và đặc biệt hơn. Đây có thể là không gian vô cùng ấn tượng để gia chủ thư thái nghỉ ngơi, thư giãn sau mỗi ngày làm việc vất vả.
Mặc dù có mặt tiền khá hẹp, chỉ khoảng 6m nhưng gia chủ đã có một ngôi nhà ưng ý và khác biệt. Bạn cũng có thể tham khảo thêm các mẫu nhà ống đẹp có mặt tiền hẹp được Kiến Trúc C&B thiết kế Tại đây.
Ngoài nhà ống, nhà lô phố, Kiến Trúc C&B còn có hơn 10 năm kinh nghiệm thiết kế biệt thự đẹp, thiết kế nhà vườn đẹp, thiết kế lâu đài, khách sạn, nhà hàng... Với đội ngũ kiến trúc sư giàu kinh nghiệm, nhiệt huyết, tận tâm và không ngừng nỗ lực sáng tạo, chúng tôi tin tưởng sẽ mang đến cho khách hàng một mẫu nhà đẹp mang đậm phong cách riêng của từng gia chủ.
Hãy liên hệ với chúng tôi bằng cách gọi tới Hotline, gửi nội dung cần tư vấn qua email, zalo, Fanpage Kiến Trúc Nội Thất C&B hoặc để lại lời nhắn bằng cách điền theo mẫu dưới đây:
Thông tin và nội dung bạn gửi cho chúng tôi càng cụ thể, nội dung tư vấn cho bạn càng tối ưu và chi tiết.