Chuyên viên đã sẵn sàng hỗ trợ!
Tư vấn hoàn toàn miễn phí
Mẫu nhà ống đẹp 4 tầng của gia đình anh Hùng được thiết kế theo phong cách tân cổ điển với những đường nét trang trí mẫu mực đến từng đường nét, họa tiết dưới bàn tay tài hoa của đội ngũ Kiến trúc sư C&B. Cùng chúng tôi khám phá vẻ đẹp của ngôi nhà này trong bài viết dưới đây:
Thiết kế nhà theo phong cách tân cổ điển chính là sự kết hợp hoàn hảo giữa phong cách cổ điển và phong cách hiện đại năng động. Sự kế thừa những nét đẹp kiến trúc cổ điển khi được kết hợp và dung hòa với vẻ đẹp hiện đại mang đến những tác phẩm kiến trúc nghệ thuật độc đáo, đi vào lòng người và chinh phục được ánh nhìn của bất cứ ai ghé qua.
Hiểu được điều đó và nắm bắt xu hướng thiết kế nhà hiện nay, gia đình anh Hùng và chị Hà ở La Phù (Hà Nội) đã quyết định lựa chọn phong cách tân cổ điển cho ngôi nhà của mình.
Ngay từ khi nhìn vào mặt tiền của ngôi nhà, người nhìn sẽ thấy vô cùng ấn tượng và choáng ngợp với những đường nét hoa văn trang trí điêu luyện, tinh xảo. Thức cột giả đắp nổi ở hai bên tạo lên phong thái vững chãi và tôn lên sự bề thế, đồ sộ cho ngôi nhà.
Thêm nữa, với sự kết hợp ăn ý giữa màu trắng của sơn ngoại thất với màu vàng sáng của lan can ban công đã tạo nên hiệu ứng đặc biệt, giúp ngôi nhà trở nên nổi bật và đem lại cảm giác danh gia vọng tộc.

Tầng 4 của mẫu nhà ống tuyệt đẹp này được đắp phù điêu cùng trụ cột thấp 2 bên tạo nên nét cân đối và hài hòa cho ngôi nhà. Sự kết hợp giữa cửa sổ vuông và cửa sổ mái vòm cũng là đặc điểm không thể thiếu khi sử dụng phong cách kiến trúc tân cổ điển trong kiểu thiết kế này. Bạn có thể tham khảo thêm đặc điểm này trong các thiết kế nhà ống đẹp khác của Kiến Trúc C&B như:
>>> Thiết kế nhà ống 3 tầng 1 tum tân cổ điển (MSP: NT090401)
>>> Mẫu nhà ống đẹp 5 tầng 2 mặt tiền tân cổ điển (MSP: NT200501)
Về tổng thể ngôi nhà, nó giống như một căn biệt thự phố xa hoa tráng lệ, và có thể không quá lời khi ví ngôi nhà mang vẻ đẹp của một nàng hoàng hậu mang trên mình vương miện kiêu sa, quyền quý.
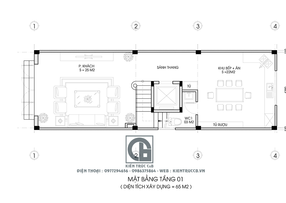
Mẫu thiết kế nhà ống tân cổ điển tuyệt đẹp 4 tầng này được xây dựng trên diện tích là 65m2. Các tầng được bố trí như sau:

Mặt bằng tầng 1: tầng 1 được bố trí gồm phòng khách có diện tích 25m2, khu phòng ăn và phòng bếp có diện tích 22m2, phần còn lại là tủ đồ và sảnh thang, với 1 WC dưới gầm.

Mặt bằng tầng 2 được bố trí 2 phòng ngủ có diện tích 18-19m2 với WC chung để tiết kiệm diện tích. Khu vực còn lại là sảnh thang máy và thang bộ.

Mặt bằng tầng 3 được bố trí giống như công năng của tầng 2 để đảm bảo các trục vệ sinh và điện, nước.

Mặt bằng tầng 4 được bố trí phòng tắm massage, xông sục và phòng thờ với diện tích 18,5m2. Tầng 4 cũng được bố trí 1 WC chung cho cả tầng.

Tầng tum gia chủ dành để bố trí khu giặt phơi, sân chơi ở phía trước và sân phơi ở phía sau. Đây sẽ là nơi gia chủ tổ chức các bữa tiệc ngoài trời hoặc tập thể thao, hít thở không khí trong lành vào buổi sáng.

Để tiết kiệm chi phí thi công và tối ưu diện tích sử dụng, gia đình anh Hùng đã lựa chọn kiểu mái bằng. Kiểu mái này cũng rất phổ biến khi thiết kế nhà ống, thiết kế biệt thự hiện nay. ngoài mái bằng, gia chủ có thể lựa chọn các kiểu mái khác như mái Nhật, Mái lệch, mái Thái, mái hộp... Tùy theo khả năng tài chính, sở thích, nhu cầu công năng cũng như hiện trạng và diện tích thiết kế nhà mà lựa chọn kiểu mái phù hợp. Bạn có thể tham khảo thêm các mẫu nhà ống đẹp khác như
>>>Thiết kế nhà ống 3 tầng 1 tum tân cổ điển mái Thái (MSP: NO032101)
>>> Mẫu nhà phố 4 tầng 1 tum phong cách cổ điển mái hộp (MSP: NOT082002)
Để tham khảo thêm các mẫu nhà đẹp khác và tư vấn thiết kế biệt thự, thiết kế nhà lô phố, thiết kế nhà vườn, nhà ống... Bạn vui lòng liên hệ với Kiến Trúc C&B qua Hotline, Email, Zalo, Fanpage Kiến Trúc Nội Thất C&B hoặc tới trực tiếp văn phòng của chúng tôi.Hoặc tìm hiểu thêm về các mẫu nhà đẹp của chúng tôi qua kênh Pinterrest. Sự hiện diện của bạn chính là niềm vinh hạnh và động lực để chúng tôi nỗ lực và cố gắng hoàn thiện mình hơn nữa, mang tới những dịch vụ tốt và những ngôi nhà đẹp phục vụ khách hàng. Đến với chúng tôi bạn sẽ có được một ngôi nhà đẹp, mang đậm dấu ấn phong cách cá nhân và khẳng định cá tính, gu thẩm mỹ riêng của mình!
Thông tin và nội dung bạn gửi cho chúng tôi càng cụ thể, nội dung tư vấn cho bạn càng tối ưu và chi tiết.