Chuyên viên đã sẵn sàng hỗ trợ!
Tư vấn hoàn toàn miễn phí
Với mặt tiền mang vẻ đẹp độc đáo, ấn tượng, mẫu thiết kế nhà ống 4 tầng đã chinh phục được nhiều khách hàng cực kỳ khó tính. Không chỉ ở phong cách kiến trúc mà còn cả ở công năng, mẫu nhà này thực sự là một gợi ý không thể bỏ qua cho các gia chủ đang có ý định thiết kế nhà.
Sự kết hợp của hiện đại cùng một chút phong cách mộc mạc giản dị đã mang đến cho ngôi nhà vẻ đẹp ấn tượng khó quên ngay từ cái nhìn đầu tiên. Sự phá cách trong việc bố trí cửa ban công, cửa kính hình cung vòm khá đặc biệt và rất ít thấy trong các thiết kế nhà ống đẹp hiện nay.

Tầng 1 của ngôi nhà được ốp gạch thẻ với màu đen xám rất rắn giỏi và thể hiện sự sang trọng, lịch lãm. Việc phối kết hợp giữa vật liệu cũng như màu sắc mang lại sự vững chãi và chắc chắn cho ngôi nhà.
Toàn bộ mặt tiền từ tầng 2 lên tầng 4 cũng sử dụng tone màu trắng đồng nhất rất đẹp mắt, đồng thời tạo điểm nhấn bằng cách ốp gạch thẻ. Đặc biệt là là khối bê tông bên phải được ốp gạch giả đá mang nét hoài cổ, rất hợp xu hướng xây dựng hiện nay. Bạn có thể tham khảo thêm mẫu biệt thự có phong cách tương tự: Mẫu biệt thự đẹp 2 tầng mái Nhật (MSP: BT112002)

Nhìn tổng thể ngôi nhà, chúng ta có thể cảm thấy sự nhẹ nhàng, tinh tế và rất trẻ trung, mới mẻ của mặt tiền ngôi nhà. Với chiều dài mặt tiền khoảng 6m, ngôi nhà trở nên vô cùng nổi bật, ấn tượng và thu hút. Đây cũng chính là những lợi thế kinh doanh giúp gia chủ hút khách.
Nếu bạn cũng đang dự định thiết kế nhà phố kinh doanh, kết hợp cho thuê, hãy tham khảo thêm Top 10 mẫu thiết kế nhà phố kinh doanh ấn tượng năm 2020.
Sau khi tìm hiểu mục đích xây dựng, nhu cầu gia chủ cũng như thống nhất ý kiến, kiến trúc sư của Kiến Trúc C&B đã đưa ra phương án mặt bằng các tầng như sau:

Mặt bằng tầng 1: Tầng 1 được gia chủ thiết kế với không gian mở để cho thuê kinh doanh với diện tích khoảng 48m2. Phần diện tích còn lại sẽ là khu vực thang máy, thang bộ, WC và khu sân sau, có thể kết hợp làm tiểu cảnh.

Mặt bằng tầng 2: Tầng 2 được chia thành 2 phòng ngủ với WC khép kín. Ngoài ra còn có khu vực sảnh thang bộ và thang máy.

Tầng 3 được sử dụng làm phòng khách với diện tích 25m2 và phòng bếp + ăn với diện tích 17,4m, WC chung có diện tích khoảng gần 3m. Ở khu vực gần thang máy còn được thiết kế khu vực làm tủ trang trí khá gọn gàng và đẹp mắt.

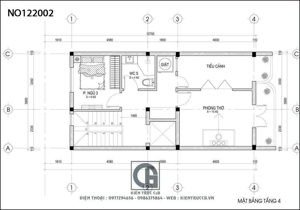
Mặt bằng tầng 4 được bố trí làm phòng thờ có diện tích khoảng 15m2, phòng ngủ có Wc có diện tích khoảng 9m. Ngoài ra không gian còn lại dùng làm khu vực giặt phơi, sân vườn, tiểu cảnh.

Để tạo không gian sống xanh, phía trên tầng mái gia chủ cũng không quên bố trí thêm khu vực tiểu cảnh để tăng diện tích trồng cây cảnh.
Mẫu nhà ống 4 tầng theo phong cách hiện đại khá đẹp và được nhiều gia chủ lựa chọn, đó cũng là xu hướng thiết kế nhà trong tương lai. Chúng tôi còn rất nhiều mẫu nhà đẹp khác, bạn có thể tham khảo thêm trong bài: Tổng hợp mẫu nhà ống ấn tượng
Ngoài thiết kế nhà phố, nhà ống, Kiến Trúc còn chuyên Thiết kế biệt thự, thiết kế nhà vườn, nhà hàng, khách sạn, thiết kế lâu đài.... Với đội ngũ kiến trúc sư chuyên nghiệp, tận tình cùng kinh nghiệm hơn 10 năm trong ngành kiến trúc - nội thất, chúng tôi luôn mong muốn mang đến cho khách hàng những ngôi nhà đẹp và độc, thể hiện dấu ấn riêng của mỗi người.
Hãy liên hệ với chúng tôi bằng cách gọi tới Hotline, gửi email, gửi tin nhắn qua zalo, Fanpage Kiến Trúc Nội Thất C&B hoặc tới trực tiếp văn phòng của chúng tôi. Ngoài ra bạn có thể để lại nội dung tư vấn theo mẫu dưới đây:
Thông tin và nội dung bạn gửi cho chúng tôi càng cụ thể, nội dung tư vấn cho bạn càng tối ưu và chi tiết.