Chuyên viên đã sẵn sàng hỗ trợ!
Tư vấn hoàn toàn miễn phí
Với diện tích khoảng 60m2, gia đình anh Dũng đã có một mẫu thiết kế nhà ống 3 tầng 1 tum khá nổi bật ngay trên mặt đường với phong cách hiện đại, trẻ trung và phá cách. Đây cũng là một trong những xu hướng thiết kế nhà phố đang được ưa chuộng hiện nay.
Ngày nay việc thiết kế nhà ống hiện đại được rất nhiều gia chủ lựa chọn bởi những ưu điểm và lợi thế mà nó mang lại. Ngoài việc tiết kiệm chi phí đầu tư, gia chủ còn có thể lựa chọn rất nhiều phong cách, kiểu dáng thiết kế nhà khác nhau phù hợp với sở thích và nhu cầu sử dụng của mình. Đồng thời phong cách thiết kế hiện đại cũng đáp ứng công năng và mang đến cho gia chủ một không gian sống rất mở, tiện nghi.

Mẫu thiết kế nhà ống đẹp 3 tầng của gia đình anh Dũng cũng được Kiến Trúc C&B thiết kế theo phong cách hiện đại, năng động, bắt kịp xu hướng thiết kế nhà ống hiện nay. Với diện tích khoảng 60m2, gia đình anh Dũng quyết định xây nhà ống 3 tầng 1 tum. Ngôi nhà sử dụng kiểu mái bằng để tận đụng tầng tum, giúp không gian tầng tum thoáng và tiết kiệm chi phí. Loại mái này cũng được sử dụng phổ biến khi thiết kế biệt thự, thiết kế nhà ống. Ngoài ra cũng có khá nhiều các mẫu thiết kế nhà ống mái Nhật hoặc mái Thái được nhiều gia chủ lựa chọn, bạn có thể tham khảo thêm như Mẫu nhà ống 3 tầng mái Nhật phong cách hiện đại (MSP: 022104) hay Mẫu nhà ống 3 tầng đẹp mái lệch (MSP: NO122003)
Để tạo điểm nhấn cho mặt tiền của nhà phố, kiến trúc sư đã cố ý tạo những đường gờ phẳng nối liền viền tường của tầng 1 và 2 thành hình số 2 và dùng sơn màu xanh dương làm nổi bật điểm nhấn đó. Các mảng tường còn lại được ốp gạch thẻ màu ghi xám rất thanh lịch và sang trọng, giúp làm nổi bật màu xanh dương mà vẫn giúp ngôi nhà trở nên khỏe khoắn và vững chãi.
Hệ lan can ban công tầng 2 và 3 cũng được sử dụng rất đơn giản mà không cầu kỳ. Nó chỉ là những thanh sắt trơn bố trí theo chiều dọc và cách thưa để mặt tiền hẹp trở nên thoáng và rộng hơn khi nhìn vào.
Trên tầng tum là khu vực khá rộng gia chủ có thể bố trí bàn trà, làm sân phơi hoặc sân vườn. Mặc dù ngôi nhà có mặt tiền nhỏ hẹp nhưng gia chủ cũng ưu tiên khá nhiều diện tích để trồng cây cảnh, mang lại không gian sống xanh cho gia đình.

Phương án thiết kế nhà ống 6 tầng 1 tum
Với những mẫu nhà ống 3 tầng có diện tích sàn nhỏ, mặt tiền hẹp thì việc phân chia công năng thường gặp khó khăn. Bởi kiến trúc sư phải bố trí các khu chức năng vừa đảm bảo sinh hoạt lại phải vừa hợp phong thủy và không gian bên trong phải thoáng. Thông thường trong những trường hợp này thì giếng trời sẽ là giải pháp hoàn toàn hợp lý. Nếu bạn chưa hiểu giếng trời là gì, kinh nghiệm thiết kế và xây giếng trời thì có thể tham khảo thêm trong bài Kinh nghiệm xây giếng trời trong các mẫu thiết kế nhà phố hiện đại.
Sau quá trình trao đổi thông tin và thống nhất với chủ nhà, phương án công năng được bố trí như sau:
Mặt bằng tầng 1: Tầng 1 có tổng diện tích là 61.5m, trong đó phân chia làm phòng khách 15m2, phòng bếp kết hợp phòng ăn là 17.7m2, đi sâu vào cuối nhà là khu thang bộ, thang máy và phòng ngủ với WC khép kín. Tầng 1 còn được bố trí thêm WC chung dưới gầm cầu thang rất hợp lý và tiện lợi.

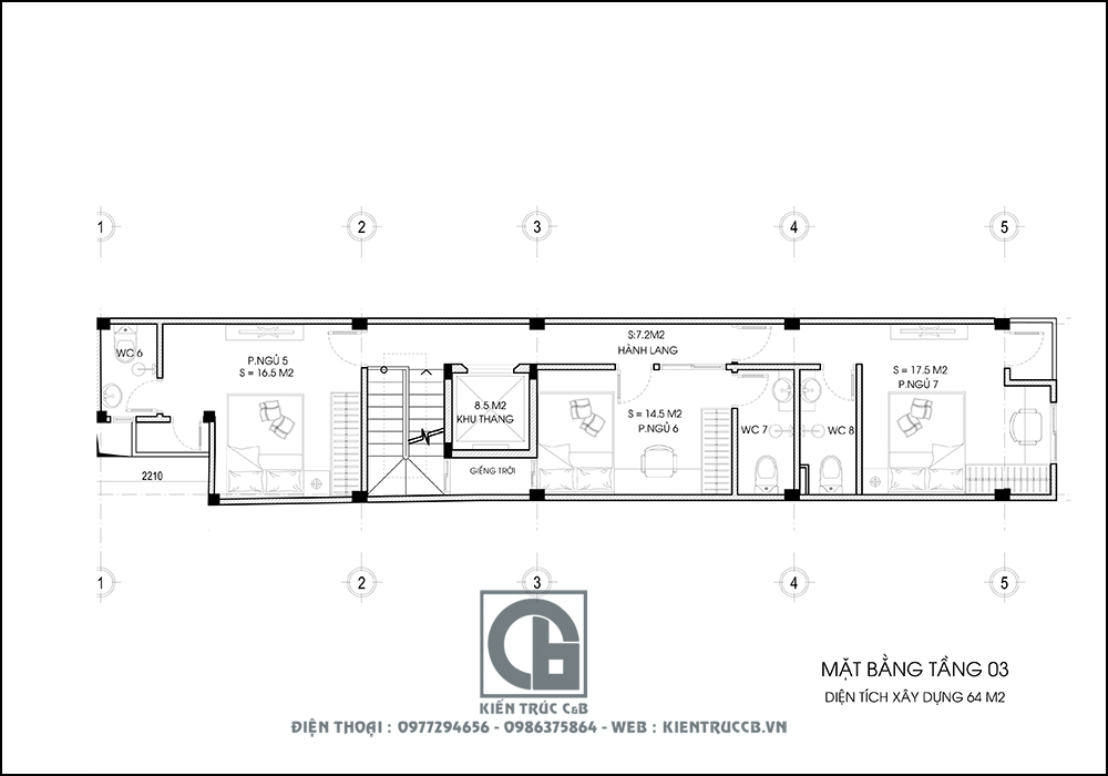
Mặt bằng tầng 2 có tổng diện tích là 64m2. Tầng 2 được phân chia làm 3 phòng ngủ có diện tích từ 14 đến 17.5m2, các phòng đều có WC kín. Diện tích còn lại là hành lang, thang máy, thang bộ và giếng trời.

Mặt bằng tầng 3 được bố trí tương tự như tầng 2 với 3 phòng ngủ có WC khép kín.

Mặt bằng tầng tum được bố trí phòng thờ có diện tích 14.5m2. Trước và sau đểu được bố trí sân chơi và sân giặt phơi rất thoáng, rộng.
Như vậy, với cách bố trí mặt bằng như vậy, gia chủ vừa tiện lợi trong sinh hoạt mà không gian trong nhà cũng không bị bí bách, thiếu sáng.
Trên đây là phương án thiết kế nhà ống 3 tầng 1 tum theo phong cách hiện đại mà Kiến Trúc C&B thiết kế cho gia đình anh Dũng. Nếu bạn cũng dự định xây nhà ống với mặt tiền hẹp mà chưa biết bố trí công năng ra sao, lựa chọn phong cách kiến trúc nào cho hợp lý và đẹp, hãy liên hệ ngay với chúng tôi bằng một trong những cách sau:
Với đội ngũ kiến trúc sư giàu kinh nghiệm, chuyên nghiệp, nhiệt tình cùng hơn 10 năm kinh nghiệm thiết kế biệt thự, thiết kế là lô phố, nhà ống, thiết kế lâu đài, thiết kế khách sạn,... Chúng tôi đã và đang kiến tạo nên những không gian sống thật hoàn hảo và đậm nét cá nhân cho hàng trăm khách hàng khắp mọi miền đất nước. Vì thế, nếu bạn mong muốn có một ngôi nhà thực sự là nhà để nghỉ ngơi và trở về mỗi ngày, hãy liên hệ ngay với chúng tôi nhé!
Thông tin và nội dung bạn gửi cho chúng tôi càng cụ thể, nội dung tư vấn cho bạn càng tối ưu và chi tiết.
