Chuyên viên đã sẵn sàng hỗ trợ!
Tư vấn hoàn toàn miễn phí
Chỉ với diện tích 60m2/sàn cùng một mặt tiền 5m khá hẹp, anh Dương đã có một bản thiết kế nhà ống 4 tầng 1 tum theo phong cách tân cổ điển hoàn hảo kết hợp cho thuê. Cùng Kiến Trúc C&B tham khảo công năng và kiến trúc của ngôi nhà.
Với những mẫu nhà phố kết hợp cho thuê thì việc sử dụng phong cách tân cổ điển là lựa chọn hợp lý. Bởi những chi tiết trang trí, họa tiết hoa văn, phào chỉ được trang trí ở mặt tiền tăng thêm sự sang trọng, quý phái cũng như thể hiện sự đẳng cấp của ngôi nhà. Đó cũng là điểm nhấn thu hút sự chú ý tăng giá trị cho ngôi nhà, giúp chủ đầu tư thu hút người thuê, gia tăng thu nhập.
Mặt tiền của mẫu nhà ống này còn được bố trí thêm các cửa sổ vuông, vòm cân đối, sử dụng cửa kính rộng để lấy ánh sáng cho không gian văn phòng phía trong. Ngôi nhà còn được thiết kế tầng tum với giàn treo để gia chủ có thể thư giãn và thỏa mãn sở thích trồng cây. Bức phù điêu kết hợp cùng lan can con tiện truyền thống màu trắng giúp tầng tum thể hiện được nét đẹp cao quý.
Thức cột giả với những rãnh xẻ sâu vừa phải, thanh mảnh kéo dài từ tầng 2 lên tầng 3 rất sang trọng và tinh tế.

Với bất cứ thiết kế biệt thự, thiết kế nhà vườn hay thiết kế nhà ống nào thì việc phân chia công năng các tầng là điều quan trọng nhất. Nó ảnh hưởng tới sự tiện lợi trong sinh hoạt, nhu cầu sử dụng hoặc cho thuê của gia chủ. Với mẫu nhà ống mặt tiền hẹp này, gia chủ muốn thiết kế cho thuê kinh doanh, vì thế mặt bằng các tầng đều phải được bố trí khu vực điện, nước, không gian hợp lý.
Xem thêm:
>>> Những mẫu thiết kế nhà phố đẹp có mặt tiền hẹp
>>> Mẫu thiết kế nhà ống mặt tiền 5m hiện đại (CĐT: Anh Vinh – Hoài Đức)
Dưới đây là công năng cụ thể của từng tầng:

Thiết kế mặt bằng tầng 01

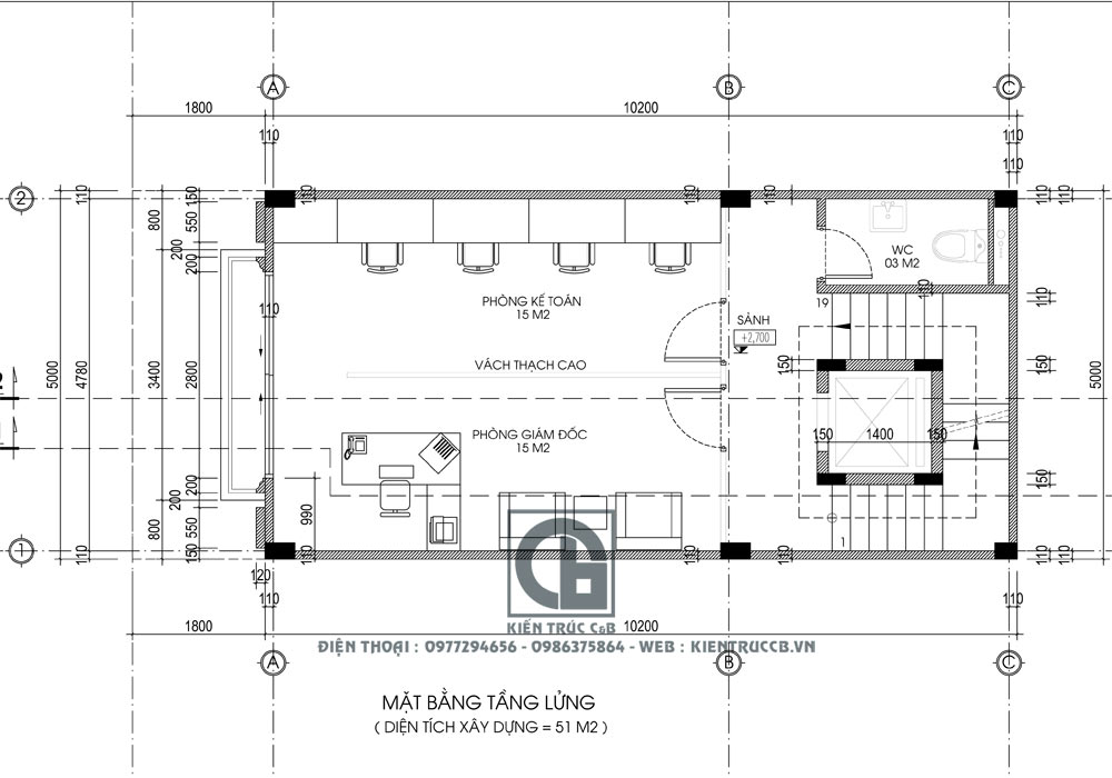
Thiết kế mặt bằng tầng lửng

Thiết kế mặt bằng tầng 02

Thiết kế mặt bằng tầng 03

Thiết kế mặt bằng tầng tum
Đây là một trong những mẫu nhà ống có mặt tiền hẹp được Kiến Trúc C&B thiết kế có kiến trúc ngoại thất ấn tượng. Để tham khảo thêm các mẫu thiết kế nhà ở đẹp khác, bạn vui lòng gọi điện tới Hotline, gửi nội dung tư vấn qua email, zalo, Fanpage Kiến Trúc Nội Thất C&B hoặc tới trực tiếp văn phòng của chúng tôi. Ngoài thiết kế nhà ống, chúng tôi còn chuyên thiết kế biệt thự đẹp, thiết kế lâu đài, thiết kế nhà vườn đẹp, thiết kế khách sạn... tại Hà Nội và các tỉnh lân cận. Với đội ngũ kiến trúc sư giàu kinh nghiệm, nhiệt huyết, chúng tôi tin tưởng sẽ mang lại cho gia chủ ngôi nhà ưng ý.
Thông tin và nội dung bạn gửi cho chúng tôi càng cụ thể, nội dung tư vấn cho bạn càng tối ưu và chi tiết.