Chuyên viên đã sẵn sàng hỗ trợ!
Tư vấn hoàn toàn miễn phí
Thiết kế nhà ống 5 tầng (MSP: NO022101) của chủ đầu tư chú Đại chỉ rộng hơn 40m2 nhưng được Kiến Trúc C&B thiết kế theo phong cách tân cổ điển rất ấn tượng để gia chủ ở kết hợp cho thuê. Cùng Chúng tôi tìm hiểu kỹ hơn về công năng và kiến trúc của ngôi nhà qua bài phân tích rất chi tiết dưới đây.
Đối với những mẫu thiết kế nhà phố tân cổ điển thì để có một mặt tiền đẹp, diện tích cũng cần đủ lớn, nếu không nó sẽ khiến cho ngoại thất ngôi nhà trở nên bí, chặt hẹp bởi những chi tiết trang trí, họa tiết hoa văn rườm rà. Thế nhưng với mẫu nhà ống 5 tầng của chú Đại, dưới đôi bàn tay khéo léo và sức sáng tạo không ngừng, chú Đại đã có một ngôi nhà hoàn hảo, đẹp đến từng centimet theo phong cách kiến trúc mà chú mong muốn.

Mặc dù mặt tiền chỉ có 3 mét, nhưng Kiến trúc sư của Kiến Trúc C&B vẫn quyết định chọn phong cách tân cổ điển cho ngôi nhà để toát lên sự sang trọng cũng như tạo điểm nhấn khác biệt so với những mẫu thiết kế nhà ống hiện đại xung quanh. Cũng bởi vì mục đích kết hợp ở và kinh doanh nên ngôi nhà này càng cần phải nổi bật và thu hút mới có thể giúp gia chủ gia tăng thu nhập và cho thuê dễ dàng.
Để áp dụng phong cách tân cổ điển, kiến trúc sư đã khéo léo tô vẽ những đường gờ phào thanh mảnh, lược bỏ các chi tiết hoa văn trang trí thường thấy trong các mẫu thiết kế nhà tân cổ điển thường thấy để mặt tiền trông được thoáng, nhẹ nhàng và thanh thoát hơn.
Hệ cột giả đắp nổi ở mặt tiền cũng được kéo dài từ tầng 3, 4 tạo nên khối nhà rất đẹp mắt, sang trọng, không hề bị thô hay nhàm chán theo kiểu thiết kế thông thường. Toàn bộ cửa mặt tiền đều sử dụng cửa kính để lấy ánh sáng tối đa, tiết kiệm chi phí cũng như mang đến nét đẹp hiện đại, tân tiến cho ngôi nhà.
Bạn có thể tham khảo thêm mẫu nhà ống đẹp tương tự: Mẫu thiết kế nhà ống 5 tầng tân cổ điển (MSP: NOT092001)

Tầng tum trên cùng được kiến trúc sư bố trí giàn treo bằng sắt. Đây là nơi gia chủ có thể trồng cây cảnh, làm vườn treo, đặt bàn trà ngắm cảnh hoặc làm sân giặt phơi cũng rất hợp lý. Phía mặt trước còn được đắp thêm bức phù điêu kiểu vòm rất ấn tượng và độc đáo, tăng thêm vẻ uy nghi, bề thế cho ngôi nhà.
Đặc biệt, ở tầng 3 và 4, kiến trúc sư tối ưu không gian sử dụng bên trong bằng cách thiết kế các ban công giả với lan can con tiện đắp nổi để vừa không chiếm diện tích sử dụng, vừa tạo ra một mặt tiền đẹp và hoàn hảo.
Với diện tích khá nhỏ, chỉ hơn 40m2 cùng mặt tiền chỉ 3m, việc bố trí công năng bên trong cũng đòi hỏi khá nhiều công sức cũng như sự tính toán kỹ lưỡng của kiến trúc sư và gia chủ để làm sao có thể tận dụng tối da diện tích sử dụng mà vẫn tạo khoogn gian thoáng cho bên trong.
Sau khi tìm hiểu và bàn bạc kỹ lưỡng với gia chủ, kiến trúc sư của C&b đã bố trí các tầng như sau:

Mặt bằng tầng 1: Toàn bộ không gian dành để cho thuê kinh doanh hoặc làm gara ô tô. Tầng 1 có bố trí thêm WC nhỏ và cầu thang.

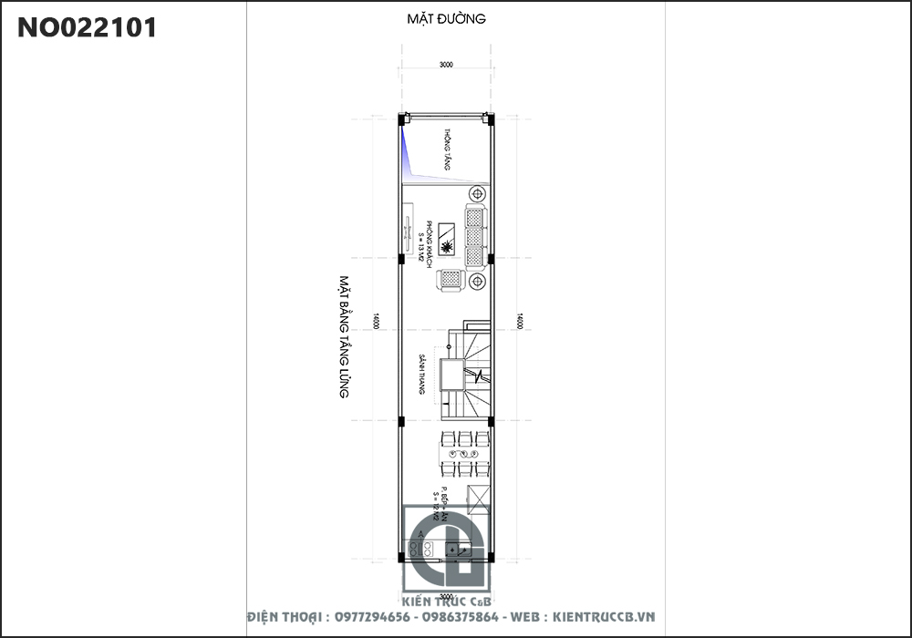
Mặt bằng tầng tum: Tầng lửng gia chủ sử dụng để bố trí phòng khách và phòng ăn, bếp rất thoáng. Khoảng thông tầng giúp không gian được nới rộng và đây sẽ là nơi để lấy không gian, tạo cảm giác rộng rãi cho ngôi nhà.

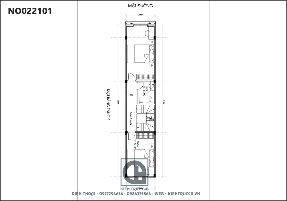
Mặt bằng tầng 2: Tầng 2 được bố trí 2 phòng ngủ có diện tích khoảng 12m2 với WC chung. Trục cầu thang và thang máy được đặt ở giữa rất hợp lý.

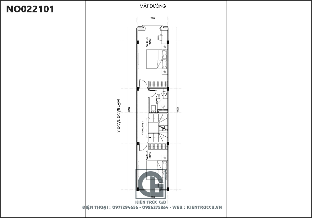
Mặt bằng tầng 3: Mặt bằng tầng 3 cũng được bố trí tương tự như tầng 2 với 2 phòng ngủ và 1 WC.

Mặt bằng tầng 4: Mặt bằng tầng 4 được bố trí phòng thờ có diện tích 10m2, khu vực sân chơi và kho chứa đồ. Phía trước phòng thờ cũng được bố trí sân để lấy không khí và ánh sáng cho phòng thờ.

Hình ảnh mặt đứng của ngôi nhà
Với diện tích nhỏ hẹp, kiến trúc C&B bằng sức sáng tạo và kinh nghiệm của mình đã tạo nên mẫu nhà ống đẹp theo phong cách tân cổ điển khiến gia chủ rất hài lòng, đặc biệt, có thể kết hợp cho thuê kinh doanh. Nếu bạn cũng đang dự định xây nhà ống kết hợp kinh doanh, có thể tham khảo thêm trong bài: Top 10 mẫu thiết kế nhà phố kinh doanh ấn tượng.
Để được tư vấn thiết kế nhà miễn phí và nhận các mẫu nhà đẹp khác, bạn vui lòng liên hệ với chúng tôi qua các kênh: Hotline, Zalo, Fanpage Kiến Trúc Nội Thất C&B, Gmail, Youtube hoặc tới trực tiếp văn phòng của chúng tôi. Với hơn 10 năm kinh nghiệm thiết kế nhà ở, thiết kế biệt thự, thiết kế lâu đài, khách sạn... chúng tôi tin sẽ mang tới cho bạn ngôi nhà hoàn hảo, đáp ứng nhu cầu về công năng và vẻ đẹp thẩm mỹ.
Thông tin và nội dung bạn gửi cho chúng tôi càng cụ thể, nội dung tư vấn cho bạn càng tối ưu và chi tiết.