Chuyên viên đã sẵn sàng hỗ trợ!
Tư vấn hoàn toàn miễn phí
Thiết kế nhà ống 6 tầng tại Bạch Mai được lấy cảm hứng từ chủ nghĩa lãng mạn trong kiến trúc tân cổ điển châu Âu. Bỏ qua yếu tố diện tích đất hẹp ngang- đặc trưng của nhà ống, lối kiến trúc sang trọng này vẫn phát huy trọn vẹn vẻ đẹp vốn có của mình. Điều này cũng tạo nên sự nổi bật, khác biệt về kiến trúc mặt tiền so với những căn nhà khác cùng dãy. Chính vì vậy, mẫu thiết kế đã nhận được sự hài lòng, ưng ý tuyệt đối từ gia đình anh Phú. Đây cũng là niềm động lực to lớn, niềm vui- tự hào của đội ngũ kiến trúc sư C&B…

Chúng ta thường biết đến vẻ đẹp của kiến trúc tân cổ hay cổ điển thông qua những công trình lớn, đô sộ trong nước và nước ngoài, đặc biệt ở các nước châu Âu. Ta có thể kể tới những công trình kiến trúc nổi tiếng như:
Ngày nay, kiến trúc tân cổ điển còn là xu hướng kiến trúc thịnh hành trong các công trình biệt thự, lâu đài, biệt phủ,.. với diện tích hàng trăm mét vuông. Vậy, liệu với quỹ đất có hạn, một căn nhà ống mặt phố có thể mang vẻ đẹp tân cổ hay không? Câu trả lời là:” Có thể.”
Xã hội ngày càng phát triển, việc chia lô bán đất trở nên ngày càng phổ biến. Đa số những mảnh đất tọa lạc trên những dãy phố đông đúc, sầm uất như Bạch Mai thì đều có kết cấu mặt ngang hẹp. Vì thế, loại hình nhà ống chiếm vai trò chủ đạo trong lối kiến trúc Việt Nam hiện nay. Phong cách kiến trúc tân cổ phù hợp ngay với cả dạng nhà ống có nhiều hạn chế này. Đó là nét đẹp pha trộn giữa cổ điển và hiện đại tạo nên sự hòa hợp, khắc chế được những yếu điểm của cấu trúc đất.
Mặt tiền của thiết kế nhà ống 6 tầng được kiến trúc sư C&B tận dụng khai thác để phô diễn nét đẹp tân cổ điển. Tông trắng tinh khiết được chọn làm gam màu chủ đạo của tổng thể công trình. Sắc trắng tinh khôi, sang trọng cũng là đặc trưng riêng có của kiến trúc tân cổ.

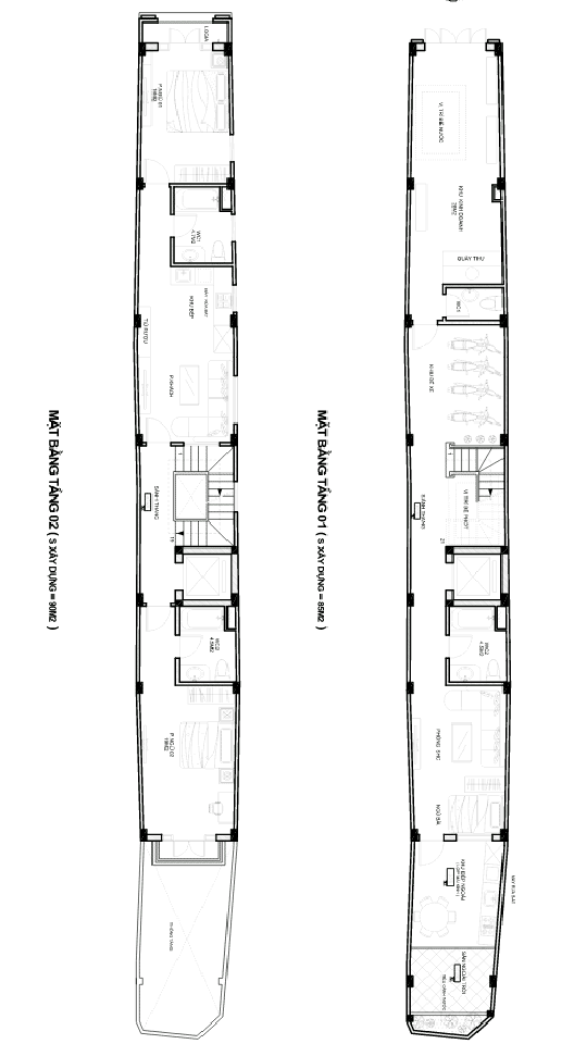
Ở tầng 1, thiết kế mặt tiền nghiêng về sự tối giản. Hai cột vuông giả ốp tường đã giản lược chi tiết phào chỉ rườm rà. Nhờ đó, mặt tiền trở nên thoáng, thanh thoát hơn. Diện tích mặt tiền từ đó cũng như rộng rãi, khoáng đạt hơn. Mặt tiền tầng 1 thiết kế gồm phần cửa kính cường lực lớn. Phần kính này là bố trí thông minh, phù hợp cho công việc kinh doanh, buôn bán của gia chủ. Nhờ phần kính này, không gian bên trong và bên ngoài như được kết nối với nhau hơn. Tại đây, các kiến trúc sư còn thiết kế riêng một diện tích nhỏ góc trên cửa kính để gia chủ thiết kế treo biển kinh doanh.

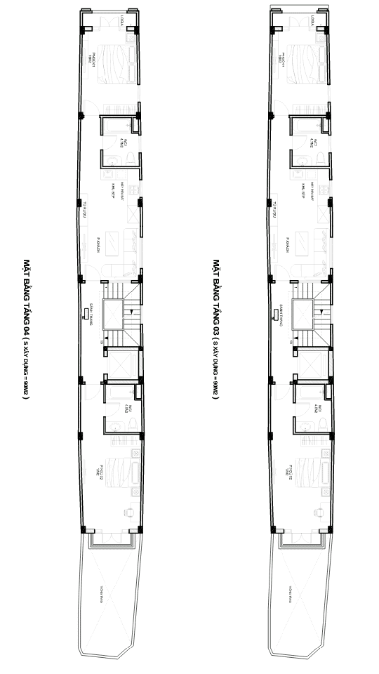
Ba tầng này có thiết kế mặt tiền giống nhau. Điều này hoàn toàn tuân thủ nguyên tắc đăng đối của kiến trúc tân cổ điển. Tính đối xứng mặt đứng đặc trưng này giúp gia tăng tính thẩm mỹ cho mặt tiền.
Để gia tăng diện tích sử dụng cho ngôi nhà, ban công được đua ra một khoảng thích hợp. Phần ban công đua ra tạo nên diện tích nhỏ, thích hợp trang trí một chậu cảnh. Chắn ban công được thiết kế bởi những hàng sắt đen tĩnh điện thiết kế đơn giản nhưng cân đối và chắc chắn. Sắc đen của song sắt kết hợp gam trắng thật hòa hợp mà quý phái.
Ở cả 3 tầng này, đều được thiết kế hệ thống cửa nhôm kính sáng và rộng. Nhờ vậy, không gian trong nhà có thể tiếp nhận lượng lớn ánh sáng mặt trời và lượng gió tự nhiên. Qua đó, thiết kế nhà ống 6 tầng sẽ giảm được tính bí, của khối nhà đồ sộ.
-
Tầng 5 của thiết kế nhà ống 6 tầng có sự bố trí mặt tiền lùi sâu 5-6m so với mặt bằng chung. Vì thế, tạo ra một khoảng ban công diện tích khá lớn. Phần chắn bao ban công vẫn sử dụng những lan sắt đen thiết kế đơn giản. Điểm nhấn của tầng này là hệ thống lan gỗ lớn che phủ bên trên phần ban công. Sự phá cách về chất liệu cũng như thiết kế tạo nên sự pha trộn vẻ đẹp hiện đại rất tinh tế.

Tầng tum cao nhất và có phần ban công lớn nhất. Phần diện tích này đáp ứng nhu cầu thiết kế vườn rau tự cấp cho gia đình hay một vườn hoa, cây cảnh mini của riêng bạn,…Thiết kế tạo khoảng không xanh này rất được ưa chuộng trong những công trình ngày nay. Đó là nhu cầu thiết yếu và hoàn toàn hợp lí trong môi trường đô thị đông đúc, chật chội. Sau những giờ làm việc vất vả, một không gian xanh giữa lòng thành phố trong chính ngôi nhà bạn là một ý tưởng tuyệt vời nhất. Một nơi nghỉ ngơi, thư giãn, tận hưởng cuộc sống lý tưởng, đáng mơ ước.
Bạn muốn tìm hiểu thêm về kiến trúc và nội thất, vui lòng truy cập:
->>>>> Thiết kế nhà ống 7 tầng tích hợp kinh doanh hiệu quả
CÔNG TY TƯ VẤN KIẾN TRÚC NỘI THẤT C&B
Số 168 Nguyễn Xiển - Thanh Xuân - Hà Nội
Hotline: 0977294656 – 0986375864
Email: KIENTRUCCB@GMAIL.COM
Thông tin và nội dung bạn gửi cho chúng tôi càng cụ thể, nội dung tư vấn cho bạn càng tối ưu và chi tiết.