Chuyên viên đã sẵn sàng hỗ trợ!
Tư vấn hoàn toàn miễn phí
Mẫu nhà ống đẹp 5 tầng tân cổ điển (MSP: NO022102) của chủ đầu tư chú Thanh (Quốc Oai - Hà Nội) mang vẻ đẹp sang trọng, quý phái và độc đáo với phong cách kiến trúc tân cổ đặc trưng. Đây là một trong những công trình thiết kế nhà phố ấn tượng mà Kiến Trúc C& đã hoàn thành vào dịp Tết Nguyên Đán 2021.
Mặc dù đã tham khảo khá nhiều đơn vị thiết kế nhà ống trên mạng internet nhưng chú Thanh đã quyết định lựa chọn Kiến Trúc C&B làm nơi để gửi gắm và trao niềm tin để xây dựng ngôi nhà mơ ước cho cả gia đình. Trong buôỉ gặp gỡ để tìm hiểu nhu cầu thiết kế nhà ở, chú Thanh cũng tâm sự đã tham khảo khá nhiều công ty thiết kế, tìm hiểu khá nhiều mẫu nhà trên mạng nhưng chú rất thích phong cách thiết kế cũng như những mẫu nhà đẹp của Kiến Trúc C&B. Chính vì vậy, chú đã quyết định liên hệ và nhờ đội ngũ kiến trúc sư tư vấn thiết kế mẫu nhà ống 5 tầng 75m2 cho gia đình.

Mặt bằng tổng thể mẫu nhà ống
Sau khi nhận được yêu cầu tư vấn, đội ngũ kiến trúc sư của C&B đã gặp trực tiếp để tìm hiểu nhu cầu, mong muốn cũng như đưa ra những giải pháp và phương án hợp lý để thiết kế công năng cho ngôi nhà. Với diện tích mỗi sàn khoảng 75m2, sau khi được sự đồng ý và hợp tác của gia chủ, các tầng đã được bố trí như sau:
Mặt bằng tầng 1: Ở mặt tiền chú Thanh muốn chừa lại khoảng 1,5m để làm sân cũng như gara ô tô. Đi thẳng vào là phòng khách có diện tích khoảng 25m2. Ngăn cách giữa phòng khách và phòng bếp + ăn là khu vực sảnh thanh máy và thang bộ. Ngoài ra, để tiết kiệm không gian, kiến trúc sư có bố trí thêm WC ở gầm cầu thang với diện tích khoảng 2,5m2.
Vì mảnh đất của chú Thanh có 2 mặt tiền khá đẹp nên Kiến trúc sư đã tận dụng nó để mở thêm cửa phụ, lấy ánh sáng và không khí cho bên trong.

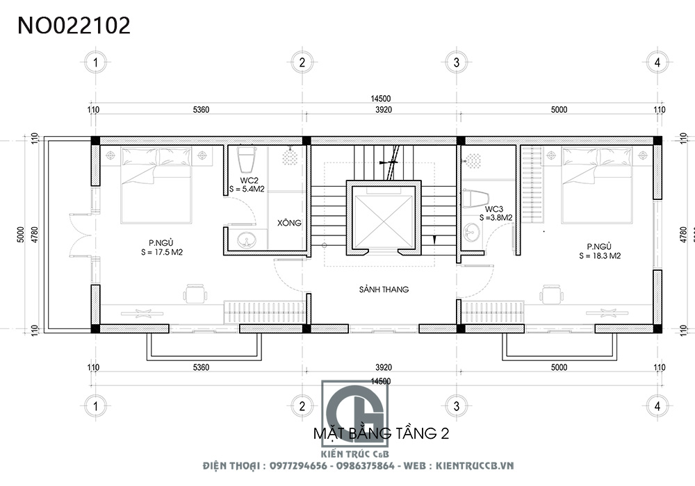
Mặt bằng tầng 2, 3: Mặt bằng tầng 2 và 3 được kiến trúc sư bố trí giống nhau với mỗi trục là một phòng ngủ khép kín có diện tích khoảng 18m2. Mỗi phòng đều có WC khép kín, phòng tắm khá rộng rãi và đầy đủ tiện nghi.

Mặt bằng tầng 2

Mặt bằng tầng 3
Mặt bằng tầng 4: Không gian tầng 4 được bố trí phòng thờ với diện tích 16,5m2 và 1 Phòng ngủ khép kín 18m2. Ngoài ra, tầng 4 còn có phòng nhỏ làm kho chứa đồ.

Mặt bằng tầng tum: Tầng tum được bố trí phòng giặt và sân phơi, ngoài ra còn thiết kế sân trước để gia chủ có thể đặt bàn ghế thưởng trà buổi sáng, hít thở không khí trong lành hoặc trồng cây cảnh thỏa mãn sở thích cũng như mang đến cho ngôi nhà không khí trong lành.

Mặt bằng tầng tu
Mẫu nhà ống 4 tầng 1 tum này được thiết kế mái bằng, trên tầng mái chú Thanh muốn lắp dàn nước nóng năng lượng mặt trời và téc nước để phục vụ nhu cầu sinh hoạt của cả gia đình.

Mặt bằng tầng mái
Hiện nay, có rất nhiều phong cách thiết kế nhà đẹp được mọi người sử dụng, trong đó phổ biến là những mẫu nhà phố tân cổ điển hay thiết kế nhà phố hiện đại. Với mỗi phong cách khác nhau, phụ thuộc vào "gu" thẩm mỹ của gia chủ, khả năng tài chính cũng như một phần nữa là diện tích xây dựng hay nhu cầu công năng của gia chủ. Bạn có thể tham khảo thêm nhiều mẫu Nhà ống tân cổ điển và Nhà phố hiện tại của Kiến Trúc C&B Tại đây để lựa chọn cho mình mẫu nhà phù hợp.
Với mong muống ngôi nhà của mình phải thật sang trọng, tinh tế, đẳng cấp và vẻ đẹp của nó phải trường tồn theo thời gian. Vì vậy, đội ngũ Kiến Trúc C&B đã tư vấn và lựa chọn phong cách tân cổ điển cho mẫu thiết kế nhà phố của gia đình chú.

Toàn bộ phối cảnh của ngôi nhà mang màu sắc rất thanh tao, màu trắng kết hợp với gạch ceramic ốp tường tầng 1 màu vàng rất sang trọng, mang phong cách hoàng gia. Sự tương phản tương đối về màu sắc càng tôn lên vẻ đẹp quý phái và bề thế của ngôi nhà.
Hệ trụ cột ban công cũng như hệ cột giả đắp nổi xung quanh ngôi nhà được bố trí một cách cân đối và hài hòa, mang tính thẩm mỹ cao, không bị phô, thô hay quá rườm rà trong cách đường nét trang trí.
Tầng 4 còn được bố trí thêm bức phù điêu rất đẹp, thể hiện được sự cao sang, quyền lực của gia chủ và sự bề thế của công trình.
Các tầng đều được thiết kế ban công với lan can sắt hoa văn rất ấn tượng và đẹp mắt, tone màu xanh đen để tạo điểm nhấn và thu hút tầm nhìn. Sự cân đối và đối xứng trong phong cách kiến trúc tân cổ điển được thể hiện ở hệ cửa vuông tròn được bố trí hài hòa, đẹp mắt. Kiểu thiết kế này cũng rất phổ biến trong các mẫu thiết kế nhà ống 3 tầng, 4 tầng, 5 tầng của Kiến Trúc C&B. Bạn có thể tham khảo thêm các mẫu nhà đẹp khác:
>>> Thiết kế nhà ống 5 tầng 40m2 tân cổ điển (MSP: NO022101)
>>> Thiết kế nhà phố 5 tầng tân cổ – Sự sang trọng đi cùng năm tháng

Phương án 2 phối cảnh 3D
Ngoài khu vực sân trước trên tầng tum, gia chủ còn rất nhiều không gian ở ban công các tầng để trồng cây cảnh, vừa hợp phong thủy, vừa mang lại sinh khí cho ngôi nhà.
Đội ngũ kiến trúc sư đã đưa ra 2 phương án phối cảnh: Phương án 1 thiết kế mái bằng, phương án 2 thiết kế mái Thái. Tuy nhiên, chú Thanh đã quyết định lựa chọn mái bằng cho ngôi nhà của mình. Còn bạn thì sao, bạn đã có hình dung gì về ngôi nhà trong tương lai của mình chưa? Hãy liên hệ ngay với Kiến Trúc C&B qua Hotline, Email, Zalo hoặc Fanpage Kiến Trúc Nội Thất C&B để được tư vấn thiết kế nhà miễn phí và nhận mẫu nhà đẹp nhé. Với kinh nghiệm hơn 10 năm thiết kế biệt thự, nhà phố, thiết kế lâu đài, khách sạn, nhà hàng, chúng tôi tự hào đã mang đến hàng trăm công trình ấn tượng, hoàn hảo, mang đậm dấu ấn riêng của từng gia chủ.
Thông tin và nội dung bạn gửi cho chúng tôi càng cụ thể, nội dung tư vấn cho bạn càng tối ưu và chi tiết.